查看完整案例

收藏

下载
来自
坂本一成研究室
该项目位于佐贺旧城的遗迹附近,周围遍布着政府办公楼和博物馆等行政及文化建筑。
基于佐贺牙医协会以培养成员技术和促进牙科发展为首要任务的核心理念,该项目在协会成立100周年之际,为构建“开放的牙医社会”提供了理想的当代建筑方案。
▼建筑外观
佐贺旧城的小巷和水道至今维持着原来的面貌,牙医协会经办的职业学校就位于其中一条街道的深处。
除了作为牙医协会的办公地点,该建筑也用于教学和租赁,大楼的主厅保持了独立,一层的体量在各个方向上都拥有宽阔的开口,便于街道上的人们进入。
▼周边环境
塔楼的体量较为紧凑,主要用于培训和办公。
独立大厅和办公塔楼通过巨大的屋面被整合为一座一体化的建筑,并通过屋檐下的门厅形成空间上的连接。
这种布局方式也从某种程度上展现了“开放的牙医社会”的理念。
▼独立大厅+办公塔楼
▼入口大厅
▼门廊
▼首层演讲厅
▼会议室
▼办公空间
▼研讨室
▼研讨室细部
各层的窗户大小各有不同,屋檐和露台的宽度也根据空间的功能而有所变化。
具体考虑的方面还有空间舒适度、与周围建筑的关系、平面布局、朝向以及热环境等。
尽管办公楼的面积十分有限,每层只有约12×12平方米,但与之相连的开放式大厅使得人们能够在这里感受到周围城市以及佐贺平原的广阔风景。
▼屋檐和露台的宽度根据空间的功能而有所变化
▼享有广阔视野的休息室
不同体量的衔接和整合解决了来自内部和外部的各种问题,例如建筑平面布局和场地环境等。
原本,这类建筑通常仅供少数的内部成员使用,如今它变得更加开放,成为了一座属于多数人的“共享建筑”。
▼檐下露台
▼建筑夜景
项目图纸
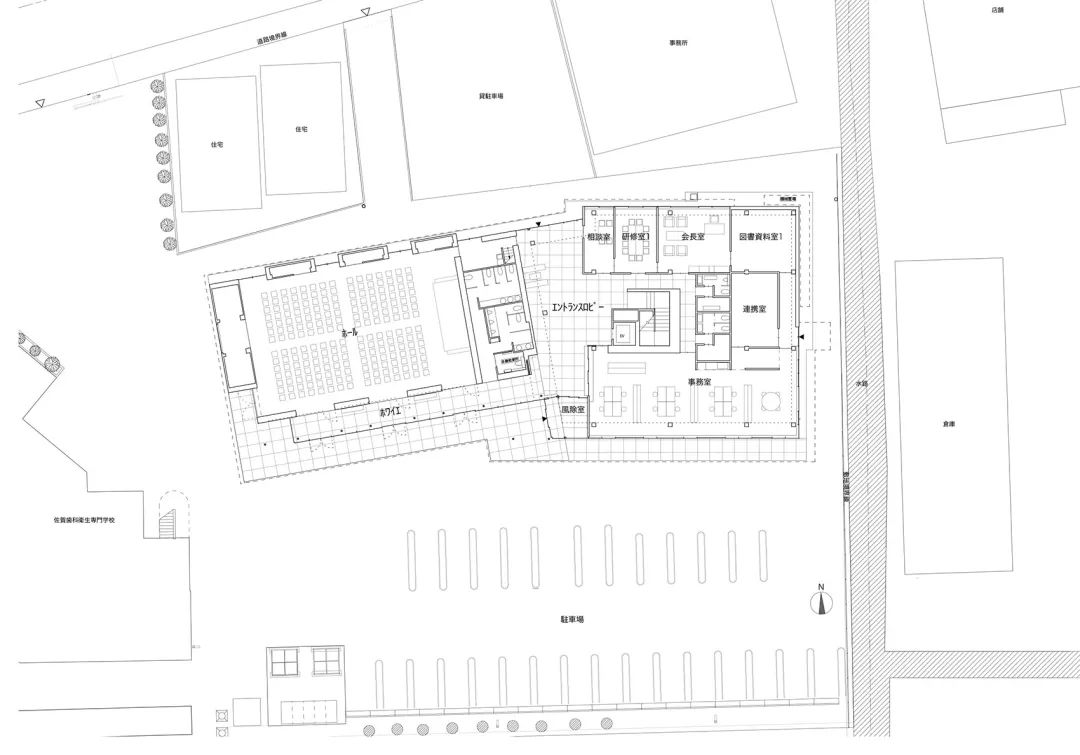
▼场地平面图
▼首层平面图
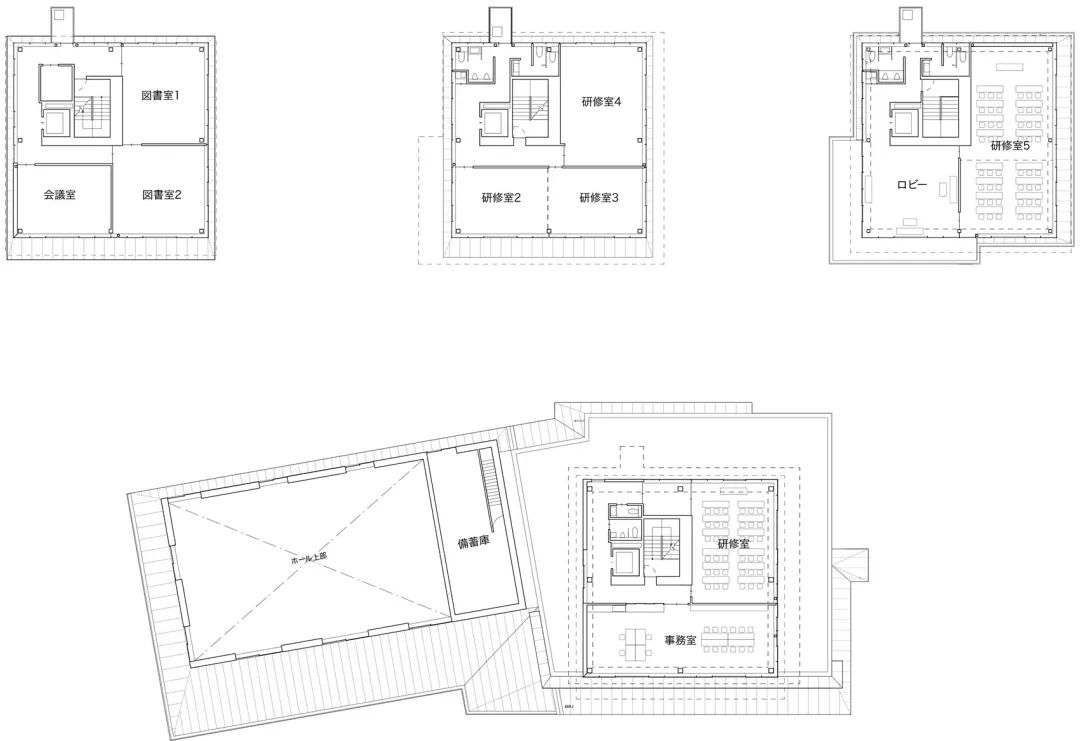
▼2-5层平面图
▼南立面图
▼剖面透视图
版权
©
▼ 网站最新24小时精彩项目集锦
客服
消息
收藏
下载
最近





























