查看完整案例

收藏

下载
©谭啸康超凡
空间的围是这次设计的出发点。从单体空间特征着手,空间可以是规则或者不规则,空间表情是硬朗或是柔软,单体和单体之间形成共存。
感谢象蝶设计
项目位于浙江桐乡,原建筑餐厅包厢位置有很好的视野和景观,业主希望尽量保持原先包厢位置、后勤办公位置和户外绿化的前提下,进行室内改造升级。
▲项目概览
©谭啸 康超凡
捏土造器,器的本质不在是土,而在它中产生了“无”的空间。空间的围是这次设计的出发点。从单体空间特征着手,空间可以是规则或者不规则,空间表情是硬朗或是柔软,单体和单体之间形成共存。
▲手绘概念
©象蝶设计
▲餐厅外观 谭啸康超凡
在满足业主的需求下,通过纤薄的黑色钢板结构制造出多一层的交通空间,提供餐厅独立的行政动线。钢板上开出的洞口,增加韵律感。行政通道和规则的长方形用餐大厅之间,置入两个类似圆形的空间区域,表皮均为灰色的水磨石,弧形墙面阳角在不规则角度的情况下显得纤细,和本身石材的厚重感形成对比。
▲纤细的墙体阳角,拉开空间层次
©谭啸 康超凡
▲黑色通道
©谭啸 康超凡
▲圆形用餐区
©谭啸 康超凡
▲圆形和方形空间连接
©谭啸 康超凡
▲半开放式用餐区 谭啸康超凡
▲室内一角
©谭啸 康超凡
弧形墙细部
©谭啸 康超凡
▲配合空间设计的椭圆桌
©谭啸 康超凡
▲家具与墙的体块感
©谭啸康超凡
通过用餐大厅,包厢过道由一面不规则弧形墙和备餐台面的体块所组成,包厢入口故意内退一些,留出缓冲的空间,空间的节奏也由此产生。
▲红色的空间构成
©谭啸 康超凡
▲用餐区
©谭啸 康超凡
▲现场制作的调料台及餐桌
©谭啸 康超凡
▲黑色体块下的卡座
©谭啸 康超凡
▲边几细部
©谭啸 康超凡
空间的感受,除了围合,设计上对光线和视线进行控制。空间中加入的黑钢的行政通道,故意遮蔽掉了一些自然光线,希望通过暗色的调性来烘托空间的氛围;而包厢外原本幽暗的走道,则选用了玻璃砖,让户外的景观和光线穿过包厢,隐约的穿透进来。
▲走廊
©谭啸 康超凡
▲包厢入口
©谭啸 康超凡
▲红色展台在室内点缀
©谭啸 康超凡
▲走廊看向包厢
©谭啸 康超凡
▲私宴包厢 1
©谭啸 康超凡
▲私宴包厢 2
©谭啸 康超凡
▲私宴包厢 3
©谭啸 康超凡
▲竖向肌理增加空间层次
©谭啸 康超凡
▲备餐柜细部©谭啸康超凡
趣味和空间的结合,来自于二维的平面插画设计,类似于在白纸上画画,但是介质有所不同,入口处屏幕上的黑色海洋,过道发光幕上的鱼,呈现视觉上的不同感官,同时点明餐厅的主题。
▲带有等候的点单区
©谭啸 康超凡
▲走道上的鱼
©谭啸 康超凡
▲边几上的石材
©谭啸 康超凡
▲包厢装饰
©谭啸 康超凡
项目图纸
▲轴测图
©象蝶设计
▲模型平面图
©象蝶设计
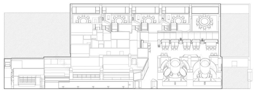
▲剖面透视图
©象蝶设计
餐桌细部图纸
©象蝶设计
设计方:象蝶设计
项目设计 & 完成年份:2021.11
主创及设计团队:杨韬,蒋蒋
项目地址:浙江 桐乡
建筑面积:600㎡
摄影版权:谭啸 康超凡
合作方-插画师:ZAMI
品牌:水磨石,不锈钢,钢板,大理石,玻璃砖,岩板,微水泥
小号小号
客服
消息
收藏
下载
最近






































