查看完整案例


收藏

下载
©任腾
俗话说“一方水土养一方人”,民宿的设计主要是让游客体验独特的当地文化和自然风光。尽管江淮地区建筑受南北两方的建筑影响都很大,存在很多相似之处,但是经过不断地发展,江淮建筑也形成了自己的特色。本次乡建项目以江淮民居在地性表达作为切入点,挖掘江淮民居在地性价值,总结设计手法,为江淮建筑设计的发展提供了微薄力量。
感谢安徽科图建筑设计院
背景
随着城镇化进程的发展,当今城市形象变化巨大,但同时伴随了乡村逐渐失去活力,出现了大量的“空心村”。圩美磨滩民宿项目是一个空心村再生实践项目,位于安徽省合肥市包河区大圩镇,北临淝河湿地公园,东临巢湖,四周农田环绕。
项目概览
©任腾
设计师通过阅读大量江淮地区的资料,从江淮地区的文化根源中获取灵感,根据当地自然气候的建造法则,以周围民居为原型进行设计。在设计过程中,不局限于传统江淮建筑的外观、体量与尺度,重新组织建筑与庭院的关系,梳理动线,并根据空间新定义考虑其使用需求,采用灵活的现代手法来丰富建筑与空间层次。
鸟瞰©任腾
江淮地区地处长江淮河之间,地形地貌多为低山、丘陵和岗地,江淮民居结合了北方中原一带的“合院式”和徽州地区“厅井楼居式”建筑特点,平面布局上更加紧密规整,建筑装饰追求简洁素朴,大部分为单层建筑,其中少部分为双层建筑。
改造前项目原状©安徽科图建筑设计院有限责任公司
民宿整体以黑白灰为主色调。墙面为白色的外墙涂料,顶面现代简洁檐口佐以小灰瓦装饰的硬山顶,既有传统的韵味又不失现代的简约气息。
黑白的建筑与天空清晰明亮
©任腾
静谧的氛围
©任腾
漫游汀步引导人们缓步而上,步入民宿之中。建筑主入口有一面浅水面,形成一个半环形廊道,通往民宿中心建筑“大堂吧”,代表着典型江淮建筑民居中的“堂屋”,演绎为当代民宿体验的一个复合型多功能的公共空间。连廊和青石板路嵌在不同空间形态和边界中,成为建筑之间活跃的媒介。依照设计师精心规划的路线游走,随着空间与时间的变化,步移景异,一步一景。
主入口 ©任腾
镜面水映衬着蓝天
©任腾
水池 ©任腾
青石板路
©任腾
白丁书吧©任腾
美术馆根据空间新定义考虑其使用需求,采用灵活的现代手法来丰富建筑与空间层次。
民宿组团内的中心建筑美术馆©任腾
美术馆内部空间©任腾
城市会客厅的中庭院落©任腾
组团内的下沉休闲空间©任腾
空间的序列关系
中国自古就有顺“势”而为的说法,以势建造在建筑设计中至关重要,“势”一方面是地势,另一方面则是人势。在地势上,一是要顺应当地气候,符合当地人的居住习惯;二是要顺应地面高差建造,减少对自然环境的破坏。在人势上,设计对应目标人群的定位,顺应目标人群的实际需求。项目所在原场地地面存在不规则高差,建筑设计在地势上完全顺应了地形的坡度。
剖面图©安徽科图建筑设计院有限责任公司
空间的表现形式在传统江淮建筑的基础上,为了避免建筑的沉闷感,在大片的墙面上开了大片玻璃长窗,使建筑内部变得通透且有变化。
玻璃长窗任腾
大堂吧
任腾
客房任腾
总结俗话说“一方水土养一方人”,民宿的设计主要是让游客体验独特的当地文化和自然风光。尽管江淮地区建筑受南北两方的建筑影响都很大,存在很多相似之处,但是经过不断地发展,江淮建筑也形成了自己的特色。本次乡建项目以江淮民居在地性表达作为切入点,挖掘江淮民居在地性价值,总结设计手法,为江淮建筑设计的发展提供了微薄力量。
施工照片
安徽科图建筑设计院有限责任公司
项目图纸和模型
工作模型 安徽科图建筑设计院有限责任公司
轴测图
安徽科图建筑设计院有限责任公司
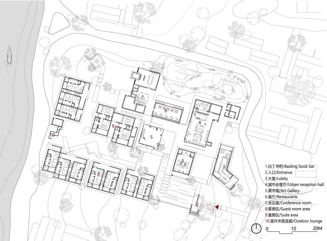
一层平面图
安徽科图建筑设计院有限责任公司
二层平面图
安徽科图建筑设计院有限责任公司
项目名称:圩美村舍
设计方:安徽科图建筑设计院有限责任公司
项目设计&完成年份:2019 年 11 月-2021 年 10 月
主创建筑师:刘雪丹,曹伟
设计团队:李裕瑶、范光颖、李寅、郭凯玥
项目地址 安徽省合肥市包河区大圩镇
建筑面积 约 3239㎡
摄影版权:任腾
合作方:上海荷丹照明设计事务所
客户:合肥滨湖投资控股集团有限公司
小号小号
客服
消息
收藏
下载
最近































