查看完整案例

收藏

下载
折叠门打开后,房间和庭院成为一个整体 ©亼建筑
感谢
亼建筑
▼庭院概览 ©亼建筑
原建筑是一座已成为危房的八十年代的平屋顶建筑。中间院落的地面低于外面被修缮过的胡同道路。北屋内两层的净高均不足两米,甚至需要低头来穿过木梁。由于胡同重建的各种要求和限制,设计成为了一个利用限制得出答案的过程。
▼改造过程 ©亼建筑
建筑高度的限制
为了给室内空间争取高度,设计降低了基地的地面高度,并利用高差,分出几个不同高度的台地。利用围墙和建筑之间的狭长空间作为模糊的过渡空间,设置分散的台阶,弱化高差感。所有的台阶也在不同的界面处起到了不同的功能作用。
▼改造前后流线变化 ©亼建筑
▼降低基地高度后的庭院 ©亼建筑
▼台阶弱化高差 ©亼建筑
▼墙面细部 ©亼建筑
相邻建筑的限制
由于施工条件的限制,重建只能采取施工更快速简便的钢结构形式。重建的钢柱基础须避让开紧密相邻的邻墙基础,而墙体的位置又无法改变,所以采取了部分墙柱分离的悬挑结构形式。房间内柱子的位置重新定义了空间布局。
▼剖面图,部分墙柱分离 ©亼建筑
面积的限制
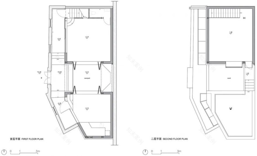
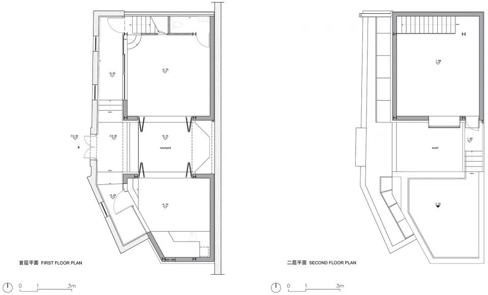
原建筑由于院落和层高的关系,被划分成了三个独立而分散的小面积房间,而由于重建功能的不确定性,需保证空间的完整及面积最大化。设计将一层两个房间面向院落的界面完全打开,通过折叠门的开关,可将南北两个房间及院落整合为一体。
▼折叠门打开后,房间和庭院成为一个整体 ©亼建筑
▼下沉的室内空间与庭院 ©亼建筑
为了利用起二层良好的视线和胡同景观,在院落内结合庭院景观设置了一座有台阶的连桥,将北屋二层和南屋的屋顶平台联系起来。连桥、屋顶、通道、室内的楼梯结合起来形成了一个新的可上上下下的空间流线,无形中放大了院落的空间感受。
▼屋顶连桥,可以欣赏胡同景观 ©亼建筑
▼二层观景窗 ©亼建筑
我们希望在这个狭小的院落空间里,通过高差、平面的组织以及界面的处理,创造出尽可能丰富的空间感受。探讨在充满限制的胡同重建条件下,如何对胡同空间使用作出新的解答。
▼纯粹的室内空间 ©亼建筑
▼楼梯和细部 ©亼建筑
▼平面图 ©亼建筑
项目名称:西文昌胡同X号院
项目类型:胡同重建
项目面积:88.2㎡
建成时间:2019年11月
建筑师:李洁苒,鲁雯泋
甲方:北京金御房地产开发有限公司
施工:中建江南建设工程有限公司
摄影:亼建筑
客服
消息
收藏
下载
最近



















