查看完整案例

收藏

下载
建筑与环境的融合 ©金伟琦
感谢华通国际
“建筑之力必须适应于自然之力,建筑的目的永远是创造一种能让建筑之力和自然之力在矛盾中共生的环境。”——安藤忠雄
巧于因借,精在体宜。
将当地文脉融于建筑,让建筑融于自然;
设计空间如同设计参观者空间体验脚本;
营造建筑的无界、体验的无界感。
以上为我们的设计基调。
01
场地与介入
贵阳万科观湖示范区项目选址于贵阳市花溪区,四周群山环绕,东临城市主干路花冠路,西临广阔秀美的水库景观,城市、湖面、山脉、林地尽数纳入视线。强烈的场地特质,亦造就了特别的展示空间。
建筑设计的概念来自于对场地的阅读。如何对待建筑与场地的关系,成为最初设计思考的起点。
▼项目用地
建筑师希望在展示品牌价值的同时,构筑因境而成、居景错综的建筑空间,使项目可以完美地融入当地丰富的文脉语境中。设计草图©华通国际
"生长"于山水中的建筑
©金伟琦
▼镜面水与漂浮轻盈的建筑体量©一马奔腾
我们认为,建筑空间和电影一样,总有故事要讲,总有情绪要表达。如同导演,我们用空间讲故事。电影《1917》观后,甚至还想过“一镜到底”体现在空间设计中会是如何体验。故事之所以令人触动,是因为剪辑节奏、剧本和配乐相辅相成,从而获得最高水准的观影体验。空间设计中根据穿过路线的系列空间设计,在不同体积、不同光线层次、不同自然穿插渗透之间,如同是一系列镜头的不同视角、光圈及节奏,从而形成独特的空间体验。示范区用地围绕水景呈L形展开,兼顾东侧城市展示面及西侧珍贵的水景界面。采用聚落式布局,通过若干建筑体块疏密有致的围合引导,空间有张力的收放,最大程度的增加商业展示面,同时结合景观递进、步移景异等设计手法,营造丰富多变的空间体验。设计草图©华通国际
进入场地的体验节奏是多变的,经历了打动-惊喜-转折-豁然开朗的过程。
▼聚落生成
©华通国际
示范区由幽静的林道引入,来访者穿过水杉林道,感受轻松,忘记城市的嘈杂;
▼水杉林道 ©雪尔空间
峰回路转处,如画卷般的山水框景随之映入眼帘。
▼山水框景 ©雪尔空间
进而转入商街内部,沿着主要行进方向,依次安排了书吧、零售、便利店、儿童娱乐、湖居食堂、展示中心以及签约中心。在这里,流线扭转成与建筑主轴线90度垂直的方向,在行进过程中不断与湖景形成多方位渗透,同时体验商街丰富活泼的建筑表情。建筑与自然互为关联,吸引人们走进场地,感受设计的叙事。
▼场景的转化与流动 ©金伟琦
展示中心主入口©金伟琦
来访者在展示中心室内通过开阔通透的玻璃幕墙领略大区青山秀水的居住环境后,经由滨水景观路径到达样板间区域,起承转合,置身山水之间。
▼景观的渗透©金伟琦
▼建筑与自然的共生 ©金伟琦
处于示范区中心的展示中心,建筑设计舒展低调,水平向展开,立面采用轻盈的玻璃幕墙穿插以木色格栅,屋面飘逸,建筑体量消失于房檐投下的影子里,看上去好像消除了将内外分隔开来的构建。利用影子将内外、建筑与自然融合在一起。
▼舒展的建筑体量©赵彬
来访者穿行于示范区内变幻错落的建筑空间中,场景转换、空间流动,犹如置身于一场建筑师导演的影片之中。
▼轴测图 ©华通国际
03
示范区建筑形式语言与地域文脉相结合,取意贵州传统民居聚落式布局以及石板房坡屋顶形式,与周边山体起伏变化的自然轮廓相呼应。
贵阳石板房民居
建筑形式及立面语言并不刻意追求新奇,设计初衷也并不希望建筑群过于彰显。相似的建筑形式增强了各建筑体块间的整体性,而坡屋顶本身富于变化的造型特质又带给建筑丰富的立面语言,同时与起伏的山体景观相交融。
鸟瞰示范区 ©金伟琦
建筑聚落散布于场地,重复、扭转、碰撞、开合… …,拉开空隙让出庭院,引入光线框取自然,与环境浑然一个整体。建筑分散打开,构造一种浸入式的环境体验。
▼图底关系
©华通国际
展示中心长达60m的主立面在洽谈区设置折线形变异,构成一个令人印象深刻的与自然对应的空间场景。如镜水面、水杉树丛、高差丰富的台基创造出动人的空间序列。人们在这个序列中漫游驻足,体会到山与湖的千般景象。山、水、人、建筑组合为一个紧密的系统,铺陈出人与自然之间一段亲密的“伴随”关系。
▼与自然对应的空间场景©金伟琦
设计采用现代材料和工艺做法诠释传统建筑精神,主要采用暖色调的金属板及木色格栅、米色石材,局部配以波纹板、U玻等建筑材料,提升设计的精致感和视觉纯粹性。立面上结合景观及功能设置的玻璃幕墙,使室内外相互交融,建筑简洁明亮、纯粹通透。
▼多种材料的运用及表达
©金伟琦
除了设计多层次空间来呼应自然环境外,在建筑立面局部采用木格栅,用以限制参观者的视野,风景裁剪如画,格栅后的自然风景根据参观者的位移呈现不同的感受。
▼折线立面与镜面水打造丰富的空间层次©金伟琦
04
结语与思考
面对场地,我们着眼挖掘场地转变的潜质,找到建筑与场地最好的平衡点,重建“关系”的新秩序,去创造一个积极的活动空间,同时让环境仍保持和谐状态。本项目新的建筑植入后产生适当的扰动,空间与人的关系更为亲密,同时建筑成为景观一部分,空间与自然景观相互渗透,景观作为空间的延续,营造出了一个无形边界的展示场所。
▼示范区夜景©雪尔空间
项目图纸
总平面图
©华通国际
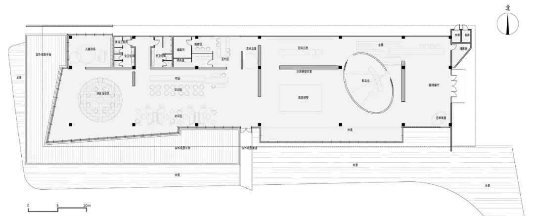
展示中心平面图©华通国际
展示中心南立面图©华通国际
展示中心东立面图©华通国际
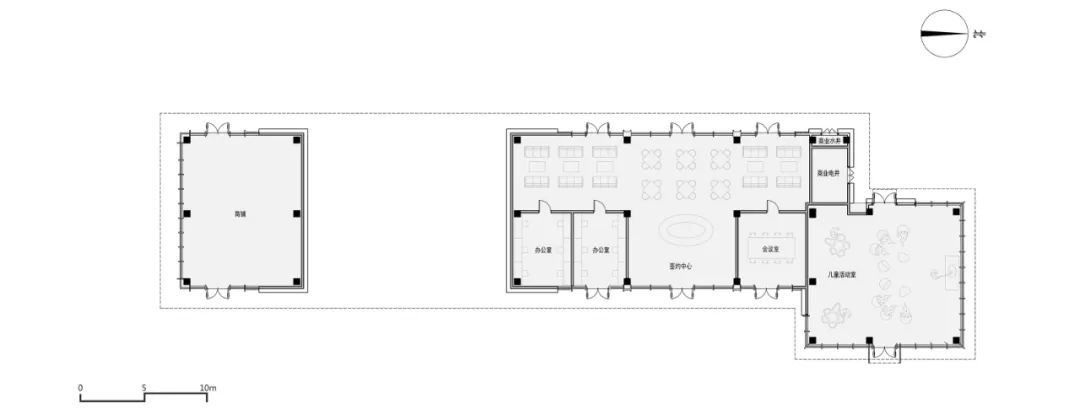
签约中心平面图
©华通国际
签约中心东立面图
©华通国际
▼聚落东立面图©华通国际
项目信息
项目名称:贵阳万科观湖示范区
业 主:贵阳万科房地产有限公司
建筑设计:华通国际 第二总师工作室
主创建筑师:范黎
设计团队:矫健、王维、金星、温雯、刘丹、王可为
施工图设计:重庆长厦安基建筑设计有限公司
景观设计:深圳道远景观设计有限公司
室内设计:ONE-CU壹方设计
深圳梵一舍室内装饰设计有限公司
用地面积:2.58公顷建筑面积:
2500
设计时间:2019年11月
竣工时间:2020年5月
建筑摄影:金伟琦、雪尔空间摄影、一马奔腾、赵彬
特别鸣谢:贵阳万科房地产有限公司
客服
消息
收藏
下载
最近



































