查看完整案例


收藏

下载
海南文昌,先秦属百越地,西汉时称为紫贝县,唐朝定名文昌县,一直沿用至今。《汉书·地理志》说:“自交趾至会稽七八千里,百越杂处,各有种姓”。百越的少数民族,悠久的历史和文化传承,给文昌蒙上一层朦胧的面纱,大自然的神秘让人心向往之。
生活馆
毗邻文昌的一泓海湾,鲁能地产投下巨资营建淇水湾项目,木田-珥本联合设计团队,打造一个基于海南地域环境的现代私人别墅区。享有稀缺的地理资源,傍着海南清澈的海浪,让生活回归生活,自然回归自然。
海南的自然风貌自不必说,少数民族文化更是让人印象深刻,而比这更可以品味的是,文化的冲突与交融,造成的独特海南文化属性。古时海南自然壮阔的美景疗愈贬谪文人的同时,也让文人重新塑造了地域个性——逆境中未敢忘忧国,是以天下为己任。
苏东坡曾经写过一首纪念他生活的诗,“心似已灰之木,身如不系之舟。问汝平生功业,黄州惠州儋州”。乐观的他,把在海南(儋州)流放的经验看做一种“功业”。这种逆势中的平常心难能可贵。
“他们留下的儒学精神,当年的景色依旧屹立
,
文化与气度也为地方所继承,我们用君子的气节与历史连结,为南中国边涯的山水景色,添上一抹文人的雅韵。文化晕散了边际,远眺的是观天地后自我意识的存在与阖家共享的确幸。”感动于前辈文人的风骨,设计师将这种精神内化于心娓娓道来。
生活馆空间尽可能多的透空,保持最多的开敞空间和最小的设计干预,让风自由流动。选用素朴的材质,传达对自然的信仰。石材与原木一冷一暖的对撞,从材质的感受上,拉大了体验的层次。
在高举架的会所中,结构成为背景,简单却充满气势。空间开阔后,形成了一个个家具团组,聚拢起小氛围。四人围坐的休息区被落地灯守候,连成一排的椅子由吧台串联,作为分隔空间的台子,蓬勃出鲜花静待客人。
檐下空间是室内和室外交集形成的灰空间,保持着设计的多义性可能,这才是取自东方传统建筑源头活水的现代空间语汇应有的呈现方式。在这里,呼朋引伴聊天或独自凭栏远眺皆可,都保持这一种进退自如、聚散从容的舒适感与独立性。
在项目周围,散落着景观亭、休闲帐篷、小桥等项目附属物,形成对景关系互为照应,观看与被看,人来人往中,交汇这偶然的一期一会,在自然的环抱里放下都市的身段,静享一段安宁时光,蕴含内在的势能,展示出迷人的风采。
茶室
在生活馆对景的位置,安置了一处茶室,在整个规划中,照顾了客人们的需求,传递出设计的善意。四坡屋顶笼盖成亭,在树木掩映,花草簇拥下,做成饮茶处颇得自然气息。
茶自从诞生之日起,从药用转为日常饮品,已经和中国乃至世界的品茗者的生活交织缠绕在一起,东方树叶的故事让人心向往之。在生活家会所的茶室,设计师与古代文人隔着时间对话。壮阔的景观让人愉悦,谦逊内敛的气质传承至今,成为一种文化景观。
设计中竖向的木条形成半透明感十足的立面,坚持自身设计语言的前提下,尽可能模糊表面的实体性,以此,让中轴对称的建筑,稳重中不失轻灵。垂落的天花形成与地面空间呼应的虚拟分隔,压低的天花尺度宜人。
下沉式中庭饮茶区,给人一种莫名的安全感,这种温暖来自外部空间的包围,同时也来自与一杯热茶在身体内部的熏染。上古时,人们挖地埋锅造饭,下沉和席地而坐的生活方式直到赵宋才被垂足而坐的家具取代。
现代性的空间从日本建筑中取经,深追则是汉唐低矮的起居方式。将身体埋入低矮的沙发,放弃正襟危坐的椅子,疏懒的感觉才能放松身体,也再次融入美景的自然天成之中。
在消费升级的今天,购买已经不是只是有型的产品,更多的是能够度假放空的时间,在一个离群索居的环境中,与自然连接,消解掉都市的压迫感和焦虑症,聚集精神重新面对生活的变数和挑战。设计作为窥探初心的门径,不断帮助我们在自然中鸟鸣声中找到内心的安置。
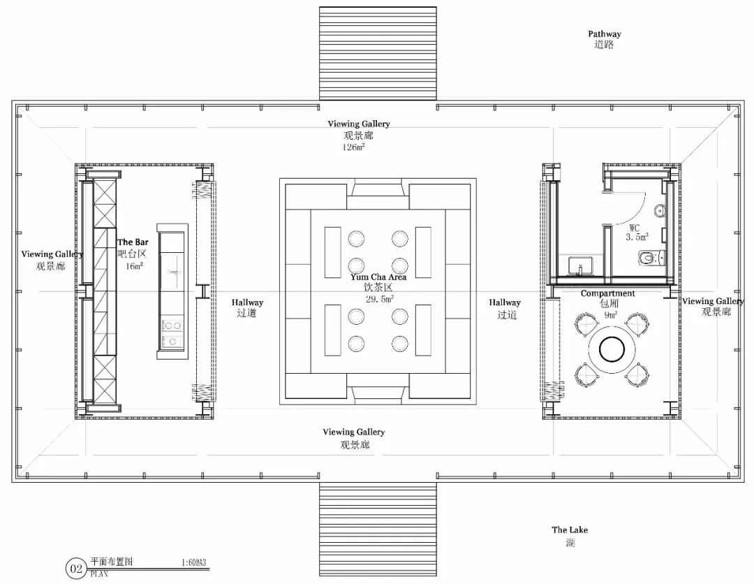
茶室平面图
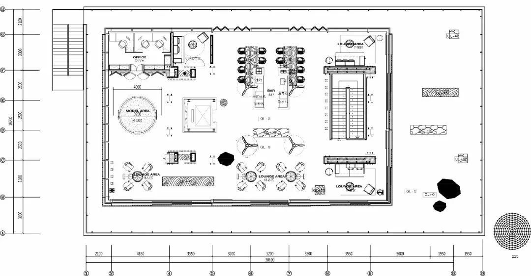
生活馆平面图
生活馆平面图
客服
消息
收藏
下载
最近


























