查看完整案例

收藏

下载
我们想象这个教堂是非常久远以前曾经漂泊在海上的一艘船,岁月变迁,海水退去,留下来一处空间的构筑,依然凌空悬浮在沙滩之上。
▼鸟瞰
©施峥 / 直向建筑
▼曾经漂泊在海上的一艘船
©CreatAR Images / 直向建筑
▼视频
©夏至 / 直向建筑
悬浮带来了上下两层人的生活。下层是一个有遮盖的临海空间,它可以给这片沙滩上活动的人提供避雨遮阳休憩的场所。对我们而言,它更是一个连接世俗生活的空间。由于教堂离海非常近,在涨潮的时候,这个空间甚至会被海水浸没。在这一瞬间,这个建筑就回到了我们心目中那艘很久以前漂泊在海上的船一样的状态。
▼设计手稿
©直向建筑
▼剖面图
©直向建筑
▼西北立面
©陈颢 / 直向建筑
▼北立面
©陈颢 / 直向建筑
▼西立面黄昏夜景
©陈颢 / 直向建筑
▼西立面
©陈颢 / 直向建筑
▼东立面
©陈颢 / 直向建筑
▼西南视角
©陈颢 / 直向建筑
而上层是一个属于宗教的空间。社区的人们进入这个空间的感受是从30米之外的甬道开始。人逐渐接近它,从大台阶中间留出的一道600毫米的空间缝隙,可以隐隐觉察到在另一端空间底层是悬空的,并窥视到一小段视野近端的海平线。人们拾级而上,进入大门,再绕过影壁,最后进入一个面向大海的教堂空间。由于空间被抬高的原因,在这里人的视野里没有沙滩和沙滩上的人,只有对面一望无际的海面。
▼涨潮时期的观海平台
©直向建筑
▼观海平台
©陈颢 / 直向建筑
▼观海平台海景
©陈颢 / 直向建筑
▼从大台阶中间缝隙窥视海景
©陈颢 / 直向建筑
▼从入口看向礼堂
©Peter Dixie / 直向建筑
整体空间与外界的洞口开设非常有限,只有空间的朝海面的底端是横向的透明大窗。为了使空间内部的光线气氛不至于过于明亮,朝海大窗被压低到2 .7米的高度,只满足人在视线范围内和海的联系。
而教堂内部10米高的空间更多是被一种幽暗氛围的光所笼罩。其他几处的自然光源,也都是通过墙体之间的缝隙渗入内部,包括空间正对的十字架上下的微弱的三角光源。教堂尖耸的坡顶是另一处光的渠道,南侧弯曲内卷的墙体与北侧墙体之间300毫米的通长窄缝,可以允许自然光在顶部渗入空间。
在春夏秋三个季节,当太阳高度角足够垂直的时候,中午的阳光会顺着北墙倾泻而下,形成动人的光影,但转瞬即逝。在那一霎那,stucco墙面的凹凸肌理会被光线放大到极致,像是可以被触摸的皮肤。
▼设计手稿
©直向建筑
▼夏季礼堂内景
©陈颢 / 直向建筑
▼从琴房看向礼堂
©陈颢 / 直向建筑
▼冬季礼堂内景
©陈颢 / 直向建筑
▼观海阳台
©陈颢 / 直向建筑
▼冬季礼堂内景
©陈颢 / 直向建筑
▼夏季礼堂内景
©陈颢 / 直向建筑
▼夏季礼堂内景
©陈颢 / 直向建筑
▼阳光倾泻而下,形成动人的光影
©陈颢 / 直向建筑
▼正午时分琴房处被照亮的白色肌理墙面
©陈颢 / 直向建筑
▼西北视角仰望教堂及黄铜十字架
©陈颢 / 直向建筑
在空间的北侧,是一个向外挑出的冥想空间。
空间尺度只允许一个人的进入,两侧墙面紧紧夹裹着人的身体,一道弧墙向海面旋开,将视线引到远处的海平线。
▼冥想空间
©陈颢 / 直向建筑
▼从观海平台看向冥想空间
©陈颢 / 直向建筑
▼从观海平台仰视
©陈颢 / 直向建筑
教堂空间充分考虑了自然通风,而为了保持教堂在外面整体的封闭性,所有的采光通风的玻璃窗扇都是被隐藏在建筑体量和平行外推的片墙的夹缝之间。
▼北立面雪景
©陈颢 / 直向建筑
▼南立面
©陈颢 / 直向建筑
▼东立面黄昏夜景
©陈颢 / 直向建筑
▼东立面雾景
©直向建筑
海边教堂服务于其西侧的一个度假社区,它是这个建筑群伸向海面的最远的一处人造空间。这个空间除了宗教信徒的使用,还会发生大量的社区公共活动。它将会和距其三百米处的三联海边图书馆一起,成为一组在海边让人静下心来,感受自然、感受自我的精神场所。
▼从海边图书馆看向海边教堂
©王镇 / 直向建筑
▼涨潮时的观海平台
©直向建筑
▼西立面黄昏夜景
©陈颢 / 直向建筑
项目图纸
▼项目模型
©直向建筑
▼总平面图
©直向建筑
▼首层平面图
©直向建筑
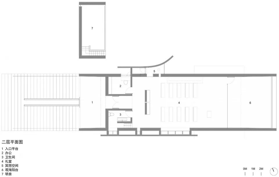
▼二层平面图
©直向建筑
▼剖面图
©直向建筑
地理位置: 北戴河新区,中国
业主方: 天行九州旅游置业开发有限公司
设计方:直向建筑
主持建筑师: 董功
项目建筑师: 孙栋平
驻场建筑师: 孙栋平
项目成员: 王艺祺、刘智勇、张艺凡
结构及设备专业: 炎黄国际
结构师: 纪立新,刘仲瑜
结构: 混凝土结构
材料:白色肌理涂料、竹钢、玻璃幕墙
建筑面积:270 m2
设计周期: 08/2014-11/2014
建设周期: 11/2014-10/2015
摄影师: 陈颢,施峥,CreatAR Images,Peter Dixie,王镇
版权
©
▼ 网站最新24小时精彩项目集锦
客服
消息
收藏
下载
最近















































