查看完整案例


收藏

下载
吴,就像一个婴儿进入新的界面,一切充满未知与惊喜,这是一个触碰得到的未来。
定义新潮菜|多元复合的空间
吴,是一个窗口,透过吴可遥望天际;进入吴,于现代桃源。“山有小口,仿佛若有光,复行十步,阔然开朗”。
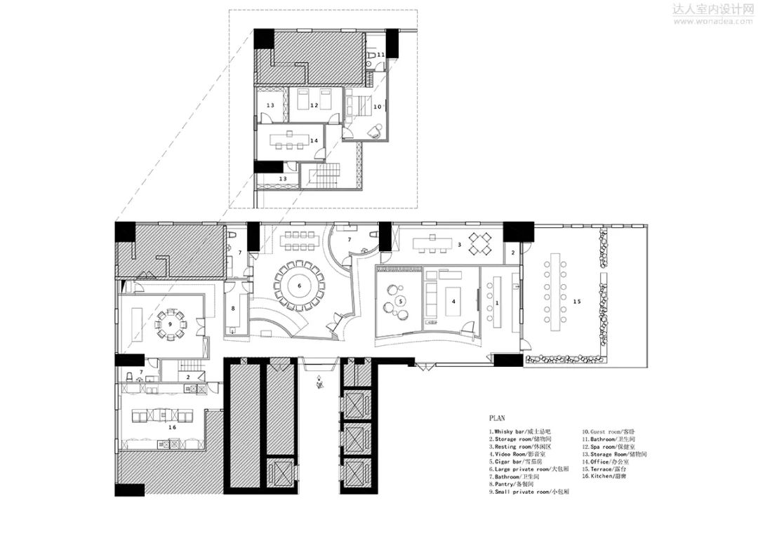
吴,坐落于广东汕头的CBD总部大厦,定位多元的新潮菜私密会所,背负着传承潮菜的使命与梦想,一个由餐厅包间/茶室/雪茄房/威士忌吧/影音房构成,打造极具颠覆性的经营理念与空间环境,艾克建筑设计团队认为,这是餐饮空间的一次革新,似乎在触碰一个可以被感知的梦想。我们将其设想为现代性的一种能量,以进步观念作为主导,用一种处于暂定状态的规则去营造一种独特的空间状态,空间中所发生的事件才是空间存在的价值。
项目位置 Project location
形体草图
“建筑是凝固的音乐。”——歌德
神秘|将光当作一种物质
光,在空间中一种是被充当传达物理现象的一种介质,在设计的思考中,艾克建筑认为光本身就是一直显性的物质,应该作为空间中看得见的主体来呈现,通过光的物质性来传达人的精神世界,神秘、安静、虚幻的情绪因光而涌现。
灯光概念 Light concept
趣味|物象表情
对手工漆的材料表现形式进行实验性的创作,一种材料出现各种不同的色彩与肌理来表现,结合地面木地板与石材料的碰撞,软硬互相推让与和谐,冷暖色彩的交替,表现的是冷酷与温度的和谐,与并将幽默、神秘以及梦想等元素融入空间的建造体系中。
材料系统 Materials
梦幻|现实与未来的互交
未来我们理解为一种我们想要去触碰的理想状态。吴,让我们进入了二次元的精神世界,像极了电影的虚拟世界,是超现实、夸张、抽象的,一种未来感的物质表象,有叙事性,可以通过空间来串联和联系一系列的事件,这是一个有趣和戏剧化的场景。
折断|解构主义
多角平面/倾斜的结构/失去重心的形式以及多种物质手段运用到空间中,挑战人们既定的建筑价值观和被捆缚的想象力。
不规则的几何图形打破传统习俗,并解释说,这是探究一种不明确社会秩序的态度,也是实现自我价值的实验。
空间构成理念是一个被折断掏空的雕塑体,让现实变得虚幻。而这样夸张的表达方式,离不开艺术的张力。
有时还会使人迷惑、混乱、向往。
当电梯门一打开的一瞬间,我们仿佛要通往另一个时空,金属不锈钢装饰墙面,黑色石板,2.5米*5.2米超大规格的人脸识别系统智能玻璃门,暗黑系的空间让人充满了想要探索的欲望。
进入空间主体,不规则造型雕塑般的空间以一种肯定的态度呈现出来,5.2米高的细长通道贯穿空间各个功能空间,错落的空间造型营造一种漂浮的状态,甚至还让人感觉危险与距离。墙面金属质感的漆与天花洞石质感的漆都在强调空间的不真实感。
雪茄房,是我们看到的第一个功能性空间,暴露的雪茄房以金属帘为介质,若隐若现,小而精,营造高冷的空间性格,而小尺度的营造目的是制造人与人的紧密性。
影音房有策略性的将空间压低,将人的情绪带到中心的位置,空间仿佛就是一个小舞台,让好友之间更好的互动交流。
威士忌吧链接影音房与户外阳台,通过镜面不锈钢来营造一个对称式的空间,昂贵的泡沫铝得到延伸后视觉冲击力带来了前所未有的惊喜,户外阳台也构成了威士忌吧的一部分,晚上三五好友感受着自然的风,微醺的状态让人用愉悦飘渺的状态去经营着一天的最后几小时。
茶室是餐前使用的一个空间,也是人在繁忙一天的状态后停下来的一断时间,舒适与安静是空间需要营造的情绪,简洁的空间形态,黑色孔状的艺术漆与烟熏木地板配合日落之时蓝色的天光,构成了一个静谧的洽谈空间。
包间以一种不规则的空间形态出现,像自然围合与掏空,意外与不确定感。造型由通道延伸到内部,顶部飞碟造型装置增加空间趣味的同时也是解决餐台照明的手段。
抗衡与融合吴是艾克建筑设计团队在用西方的设计秩序来建树东方的空间情绪与哲学。曲径通幽,以小见大,张扬且含蓄,一场东西方美学哲学碰撞。
平面图
项目名称:吴会所
业主:吴小姐
设计机构:AD ARCHITECTURE∣艾克建筑设计
总设计师:谢培河
设计团队:艾克建筑
VI设计:林韶斌
项目地点:广东汕头
建筑面积:600 m2
主要材料:泡沫铝、摩根智能、金属网、岩板、意大利手工漆、定制木地板、石客照明
设计时间:2020年1月
竣工时间:2020年7月
摄影师:欧阳云
视频拍摄:飞行映画
模特:庞垒琦
谢培河
AD艾克建筑设计创始人及总设计师
2020 Golden Trezzini Awards评审
2020 LOOP设计奖评审谢培河怀抱强烈的情感张力和原创精神,主张以感性丰富驾驭理性简约,高妙且自然地融合空间功能与个性。在简单与复杂的动势中呈现空间美学,让人心与空间精神同振共鸣。
凭借商业、住宅和办公领域的一系列极致空间作品,在过去几年内斩获了一系列国际知名奖项。其独具先锋性的“极简派艺术”空间设计语言,也已融贯东西方的认知并在全球业界得到极高的认可。现受邀成为2020年俄罗斯金特列吉尼建筑与设计奖(2020 Golden Trezzini Awards for Architecture and Design)的国际评审之一,该权威级奖项以“建筑即艺术”为箴言,评审席中包括Daniel Libeskind,Mario Botta,Toyo Ito,Ricardo Bofill等建筑名师。同时受2020年LOOP设计奖(LOOP Design Awards 2020)邀请,成为此初创奖项的首届评审之一。
推荐阅读
埂上设计丨深城投云端会所:生活与艺术无界融合【星作】
环廷设计 | 1000㎡高级灰会所设计【星作】
年度力作 | 神美×金螳螂×CCD:北京恒大丽宫别墅9号
喜欢你就“点赞”
客服
消息
收藏
下载
最近
























































