查看完整案例


收藏

下载
©Daisuke Shimokawa /Nacása&Partners Inc
我们建造了一个工作室,客户可以在这里学习和染和服,这是她的主要爱好,作为房子的中心。同时,我们试图提供一个交流和互动的地方,在她的孩子离开家后接受外国学生。
Daisuke Shimokawa / Nacása&Partners Inc
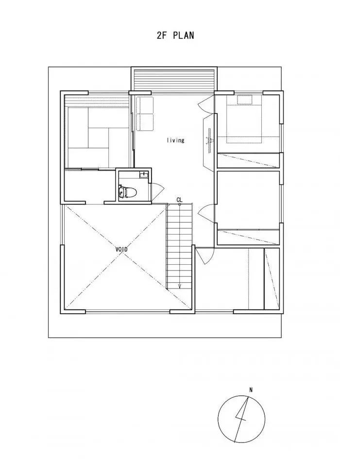
▲平面图
建筑地块的形状是一个巨大的正方形(9100*9100),它倾斜并向南北蔓延。由于地势平坦,一个私人空间被安置在北部,可以看到良好的风景。一个开放的天花板工作室与厨房相连,这使得客户可以按照自己的意愿举办大型聚会。考虑到她将来会变老,她的卧室、书房和其他基础设施被安置在一楼。其他单人房、客厅和日式房间位于二楼;此外,你可以从客厅欣赏到富士山的美景。
Daisuke Shimokawa / Nacása&Partners Inc
当我们从不同的角度看这个项目时,这个建筑最显著的特点是环绕着建筑的不锈钢围栏。通过创造空间,使建筑内部和外部的边界模糊不清,其中的内部很难从外面看到。在安全方面,也可以预期有重大影响。
Daisuke Shimokawa / Nacása&Partners Inc
由于不锈钢是双层的,所以产生了摩尔纹,它使人们即使在外面也觉得自己在里面。
Daisuke Shimokawa / Nacása&Partners Inc
在风的吹拂下,不锈钢栅栏闪闪发光,产生了各种各样的摩尔纹图案。光线的角度和强度当然会随着时间的推移而改变,早上、下午、晚上和夜间。光线的变化不仅创造了扣人心弦的摩尔纹,也给房子带来了不同的、多样化的印象。在这里,人们可以通过房子密切享受时间、季节和气候的转换。
Daisuke Shimokawa / Nacása&Partners Inc
Daisuke Shimokawa / Nacása&Partners Inc
Daisuke Shimokawa / Nacása&Partners Inc
Daisuke Shimokawa / Nacása&Partners Inc
Daisuke Shimokawa / Nacása&Partners Inc
Daisuke Shimokawa / Nacása&Partners Inc
Daisuke Shimokawa / Nacása&Partners Inc
Daisuke Shimokawa / Nacása&Partners Inc
Daisuke Shimokawa / Nacása&Partners Inc
Daisuke Shimokawa / Nacása&Partners Inc
Daisuke Shimokawa / Nacása&Partners Inc
Daisuke Shimokawa / Nacása&Partners Inc
Daisuke Shimokawa / Nacása&Partners Inc
Daisuke Shimokawa / Nacása&Partners Inc
Daisuke Shimokawa / Nacása&Partners Inc
Daisuke Shimokawa / Nacása&Partners Inc
Daisuke Shimokawa / Nacása&Partners Inc
Daisuke Shimokawa / Nacása&Partners Inc
Daisuke Shimokawa / Nacása&Partners Inc
Daisuke Shimokawa / Nacása&Partners Inc
Daisuke Shimokawa / Nacása&Partners Inc
Daisuke Shimokawa / Nacása&Partners Inc
Daisuke Shimokawa / Nacása&Partners Inc
Daisuke Shimokawa / Nacása&Partners Inc
Daisuke Shimokawa / Nacása&Partners Inc
Daisuke Shimokawa / Nacása&Partners Inc
Daisuke Shimokawa / Nacása&Partners Inc
Daisuke Shimokawa / Nacása&Partners Inc
Daisuke Shimokawa / Nacása&Partners Inc
项目图纸
▲平面图
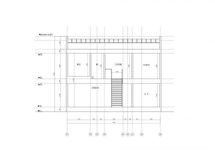
▲剖面图
▲剖面图
项目信息
建筑师:Fumihiko Sano Studio
面积:144 m²
年份:2014 年
照片:Daisuke Shimokawa /Nacása&Partners Inc
施工:TANK, DESSENCE
负责建筑师:studio PHENOMENON, Fumihiko Sano
城市:Higashikurume
国家:日本
客服
消息
收藏
下载
最近








































