查看完整案例


收藏

下载
什么是合院别墅?
合院别墅,是一种现代院式住宅,常见的合院别墅是多以四联、六联、或者多联的别墅形式为一体排布,形成围合或者半围的公共交流空间的院落,相比早年的四合院别墅,时下的合院别墅在有自己独户的空间,又更侧重邻里共享空间。
由于房地产市场快速发展,别墅用地审批受管控,而高端居住改善需求有增无减,在独栋别墅用地报批禁止的情况下,开发商多从双拼、叠拼、联排别墅寻找平衡,创新型组合方式的别墅不断涌现,当下的合院产品便诞生了~
合院产品为何如此受青睐?
高容积率独栋别墅报批已被禁止,市场上已经很难出现容积率在 1.0 以下的地块。同面积段下,院墅化合院产品能实现更高容积率。
私密性强院墅化产品可以实现较强私密性,增加私家庭院面积,产品业态升级。
空间舒朗可利用立体化等设计增大空间感,露台退落等设计,使外观独立,形成了别墅的性质。合院产品开间大,进深小,采光面充足。
文化属性清晰中国本土式的院落梦想生活,新型合院较符合国人的居住习惯,院落生活方式可打动客户。
对于中国人而言,庭院不仅是一个家,还是一种由来已久的情结。就算在高楼大厦林立的今天,人们依然对院落式生活怀着深深的眷念。
本文精选了 9 个优秀中式合院设计案例,从建筑、景观、室内等方面,带大家感受合院的魅力。
01绍兴花语堂
本案位于绍兴市,花语堂白墙黛瓦的建筑风格,重现了烙印在每一个绍兴人记忆深处的家宅模样。
花语堂的屋顶,是歇山顶+悬山顶+硬山顶制式,在古时,这是仅次于庑殿顶的规格。每个飞檐戗角,技法都苛求至极,讲究“不可增一分,不可短一毫”。
从一片细薄苏州小青瓦,到一枚不起眼的悬鱼,建筑全依古法,还原每个繁复构件,保留了中式建筑的入骨之美。
次里弄空间(上)流线分析(下)花语堂的中式之美,不止印刻在建筑上,更流淌在园林里。一走进花语堂的园林——越园,就像瞬间穿越回苏州名园——艺圃,廊桥竹坞,山池锦鲤,泉林深壑,亭榭虚凌。
踏入室内,映入眼帘的花园,不经意间将生活、诗、远方连成一体,用它鲜活的绽放,召唤着每一位归家的人。
客餐厅是最能表达整体设计风格调性的,水墨版的黑白灰与暖木质感的交织,黑色木质与水墨大理石台面的碰撞,在光影恍惚中,仿佛置身中古的水墨画里。
家庭厅在跃层空间中运用简化了繁复线条的中式家具,兼具品质与格调。有温度的原木材质使空间呈现复古宁静的感受。
卧室酝酿在东方韵律里,感受着最好的时光。木色的温馨镶以深色线条的结合,让人从匆忙的生活节奏中慢下来。
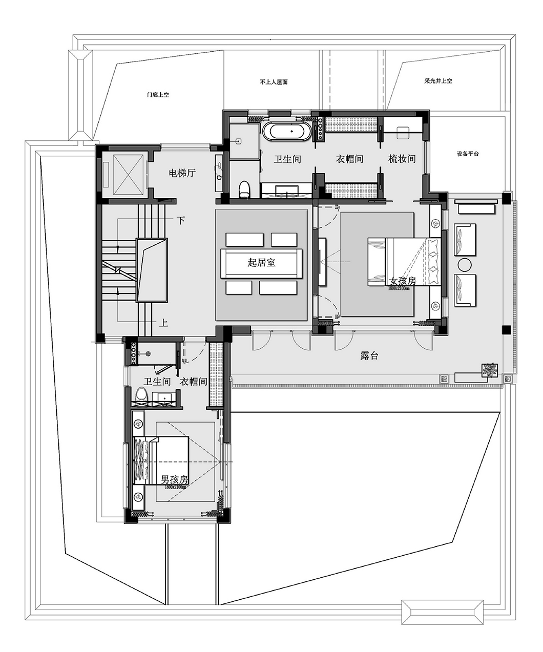
项目图纸
△一层平面
△二层平面
△三层平面
△负一层平面
绿城·金沙凤起朝鸣
本案位于成都青羊区金沙板块,合院以苏派建筑风格为基础,融合了玻璃元素,采光、照明合理分布,形成开敞通透、轻巧自如的居住环境。
有屋、有院、有天、有地,项目不仅满足了当代国人对家不变的畅想,更在延续传统东方意境下注入创新的理想。
室内延续并发扬建筑新中式的风格,以沉稳、内敛的传统文化为基点,为增强叠墅大气的空间感,统一采取深色木饰面,沉着内敛的大地色铺陈地面,在高贵与亲和间自然过渡,这也呼应著成都山林江川的自然地理风貌,让日常生活成为最贴心的风景。
设计在材质与形制上修旧如旧,沿袭了川蜀传统建筑的清雅古韵,与当地民居相融贯,素璞自然。
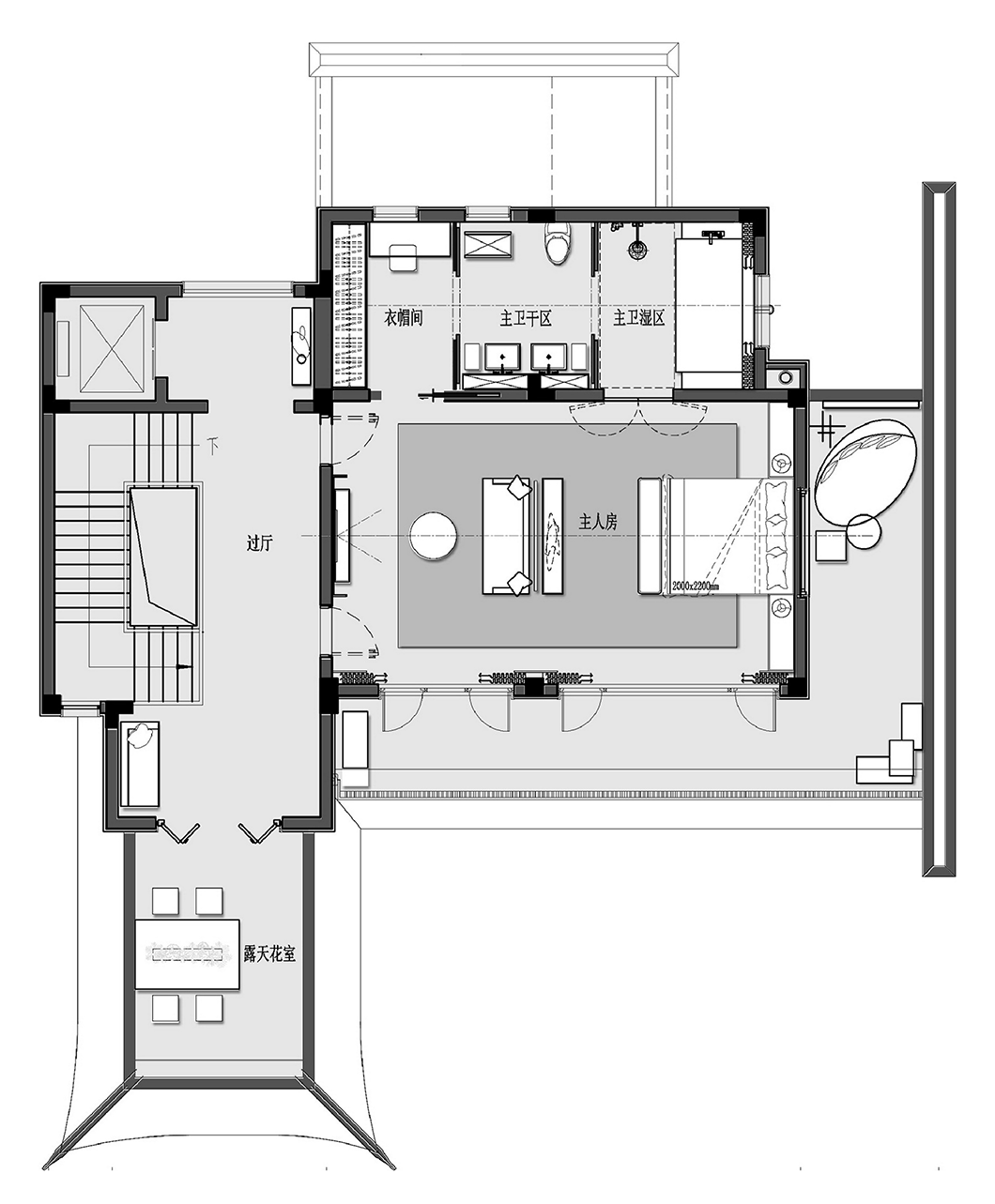
平面图纸
项目名称 | 绿城·金沙凤起朝鸣
业主单位 | 成都绿城都会房地产开发
硬装设计 | 矩阵纵横
软装设计 | 矩阵鸣翠
产品设计 | 矩阵寐卡
建筑设计 | GAD 浙江绿城建筑设计
景观设计 | 苏州园林设计院有限公司
摄影公司 | 释象万合
项目面积 | 461㎡
03保亿湖风雅园合院
一方围合下,藏着天地景色。极简,留白,雨晴雪霁,四般风雅,皆可见于湖风雅园的庭院之中。
每一所庭院都像一座微型园林,无论是夜半时分的安心休憩,还是风和日丽中的游园觅趣,都能让你找到最舒服的状态。诸般生气流动,静坐伴一池清水,亦能自得其乐。
湖风雅园·和院/酒店/高层平面图
在和风细语的江南为疲累的灵魂寻得一处依附。诗语翛然,在空间中描画山湖云影,清雅而恬静。
以雅而论,东方艺术中以简代繁、以少胜多的道理,在湖风雅园·和院中得到了充分的发挥。
六扇倾斜而置的艺术玻璃屏风为客厅与餐厅做了隔断,其上绵延的群山间,浓淡层叠,云雾缥缈,一叶扁舟,意境悠远,仿佛一首不能自吟的无声古诗,为空间注入灵魂之笔。
家庭活动空间为亲友聚会和宾朋共欢提供了理想空间,可谓“偶然相聚,最是人间堪乐处。”
家庭活动空间上方是一片半开放区域,业主可以在此安然自处。
平面图
一层
二层
三层
景观设计 | 浙江绿城环境咨询管理有限公司
建筑设计 | 浙江绿城建筑设计有限公司
项目面积 |220㎡
04花博会·桃李春风
花博会·桃李春风项目位于武汉市蔡甸区,以山水为媒、以文化为髓,融合苏派园林,以中式合院展现一方如诗如画的江南盛景,还原中国人“骨子里”的理想生活形制。
设计者将古典诗情画意与现代生活气息糅为一体,创造出独具东方气韵的园林空间,高墙深院,白墙黛瓦,砖雕石刻,飞檐翘角,满庭芳华……
客厅空间整体简洁明净,顶面古梁现代设计手法的处理手法,将东方哲学与当代人的审美情趣完美融合,并营造出东方的气质美学,使空间在不露声色中流淌出涓涓禅意。
空间里的复古元素散发着老式家具所特有的风雅,于空间之中,凝练出浓厚的东方气韵和田园雅趣。
平面图
项目名称:蓝城 · 武汉花博汇桃李春风
开发商:蓝城集团&武汉花博汇置业有限公司
项目地点:中国·武汉
设计面积:130㎡
室内设计:BEYOUND 必扬设计
软装陈设:BEYOUND 必扬设计
项目摄影:瀚默视觉-叶松
05明玥江山中式合院拾趣院
合院整体围绕花园打造,围合出一片有天有地,有院有景的私人天地,既私密独立,又不孤独,保持恰到好处的邻里往来。
室内设计从返璞归真的东方哲学出发,将中国文化传统中的木、水、月等自然元素融入空间,寻求人与自然融合的诗意状态。
推门而入,黑与白作为空间的主色调,纯净中潜藏无限生机,正是东方美学强调的平衡意境。
一枝一叶,高低错落,外景透过窗,打破空间与自然的界限,室内柔和的材质,尺与度之间,赋予丰富的感官体验。
材质的运用极其考究,贯穿连续的本土特性,加之统一的“弱对比”色调,将亲近自然的精神融于雅致和谐的整体氛围,赋予归家从容安定的感受。
光影作为媒介,模糊空间中的柔性边界;枯枝、花簇、果实与树影交叠,动静相宜,节奏有度。
平面图
一层
二层
项目名称 | 明玥江山中式合院
项目业主 | 奥园地产
项目地点 | 中国·广东·韶关
室内设计 | 观致设计 OPS DESIGN
软装设计 | 观致设计 OPS DESIGN
项目面积 | 110㎡
06郑州永威·山悦
设计团队遵循生态山居栖息地的整体环境风貌,并挖掘建筑内在之美,以体块穿插的设计手法,纯粹的材质细节和虚实错落的表现形式,勾勒一步一景的体验感受,打造山居度假般的闲适生活,让诗和远方近在咫尺。
踏入一层即可见阔绰的布局,6.2 米的挑高设置,搭配大面落地景观窗,尊贵尺度以及舒适格调不彰自显。延伸感、灯光、材质、形态过渡层面都经过精心拿捏,增添其细节之处的魅力。
挑高的一侧立面如同阶梯状渐次内退,餐厅因势而生,这是尺度上的自然而然,也是对块面关系的灵活统筹。
在半包裹的围合中,借由夹丝玻璃让餐厅和厨房和谐衔接。极富韵律的木格栅与灯带,恰似山林间闪烁的点滴星光,承载着用餐的愉悦与浪漫。
地下层同样采取了半挑空设计,温润的基调、肌理表现都得以沿用。采光井将光线引入,开放式布局确保了使用的包容性与灵活度。
平面图
△1F 平面图
△2F 平面图
△3F 平面图
△4F 平面图
△B1F 夹层平面图
△B1F 平面图
项目名称 |郑州「永威·山悦」合院样板间
项目面积 | 合院 333m²
室内硬装 | ONE HOUSE DESIGN 壹舍设计
设计主创 | 方磊
项目摄影 | 三像摄 陆彬
07义乌桃花源南区中式合院样板房
本项目是位于浙江义乌,粉墙黛瓦,一梁一柱 ,处处散发出东方雅致清韵。建筑风格上,以苏式建筑为体,义乌当地风格为用。立面层次大体采用古典三段式结构,整体色彩上以粉墙为基调,采用黑灰的瓦顶砖、灰色砖细石材、黑色或栗色木作加以点缀。
街巷内部采用形式多样的洞门,分隔隐隐绰绰的疏花扶木,采用“抑景”的手法,增强行进路线的体验感。
中式合院示范区总平面图
室内设计以一种极其干净的手法,搭配灵动的艺术品,让东方美悄然注入,更让当代质感跃然与眼前.....
留白墙身很好的烘托了艺术品雕塑的画面,圆形吊灯用铜的材质和艺术品雕塑有了美的关联,更实现了古与今的对话。
项目名称:义乌桃花源南区中式合院样板房
项目地址:中国义乌
项目面积:650㎡
项目业主:绿城集团
建筑设计:9M Design 九米设计
室内设计:郑树芬室内设计(深圳)有限公司
摄影团队:张骑麟
完成时间:2019 年 11 月 08 日
祥生·浙江诸暨南山郡 213 户型
本项目位于浙江省绍兴江南地区,故而设计以吴冠中的画作为灵感,意求将其画中描述的水墨江南神韵融入室内设计之中,并以现代手法传达中式意境。
△一层平面图
室内空间使用大面积的木饰面,木地板,再以鲜红色作为点缀之笔,甩掉空间的压迫感与单调感,旨在遵循传统中式室内空间做法,将自然元素融入空间之中,同时去繁就简,增加空间的使用率。
△二层平面图
△三层平面图
△夹层平面图
△夹层工作室
△负一层平面图
项目位置:绍兴诸暨市市南路
业主单位:诸暨祥生景辉置业有限公司
硬装设计:矩阵纵横
软装设计:矩阵鸣翠
项目摄影:释象万合
设计面积:213 户型 250㎡
09绿城桃源小镇 · 隐庐
从极具仪式感的中式门庭入户,世家大族的三进礼制循步展开,庭-园-庭-居的景观脉络,实现了宅园合一、天人合一的东方大美。
当一座三层型制的合院映入眼帘,在外形设计上,保留了白墙黛瓦的中国人居底色,每户至多 4-5 个露台、客厅大面积玻璃窗、更大的窗墙比、挑高地下室等创新设计。
平面图
项目名称:绿城桃源小镇·隐庐
项目面积:227
客服
消息
收藏
下载
最近


















































































































































