查看完整案例


收藏

下载
三七互娱广州琶洲 CBD 全球总部大厦
建筑应充满想象力,生命力,和创造力!琶洲三七互娱全球总部项目从企业文化内涵思考设计延伸至玩心之家创造快乐的概念,将建筑形态、空间体验和通风采光、节能装配等因素协调平衡,创造了丰富且属于企业独特的建筑美感。希望能为使用者们带来空间感知的愉悦和精神的振奋,以及对生活、工作场所的归属感。
—— 张国威 JohnZhang(GWP 主持建筑师,三七互娱全球总部项目设计总负责人)
©GWP Architects
建筑大师云集的全球总部集聚区
Global Headquarters Agglomeration
△ 一江两岸黄金三角圈 © GWP Architects
△ 项目区位 © GWP Architects
三七互娱全球总部大厦(37
InteractiveEntertainment Headquarters
项目位于广州琶洲核心 CBD 区域,琶洲区位优势明显,与珠江新城、广州国际金融城隔江相望,构成广州中心城区经济发展“黄金铁三角”,未来将成为广州创新经济发展核心引擎。目前该区域已经成功引入阿里巴巴、腾讯、三七互娱、南方复星、唯品会、国美、小米、YY、科大讯飞等一大批人工智能与数字经济的龙头企业,并着力推进打造世界一流的数字经济示范区。龙头企业的高度集聚带来总部建筑的集中建设,同时也吸引了一大批国际著名建筑大师的参与。如出自法国建筑大师让·努维尔(Jean Nouvel)、西萨·佩里(Cesar Peli)操刀的宝地广场、SOM 设计的三一华南总部大楼、Gensler 设计的复星南方总部、10 DESIGN 设计的华邦国际中心等等。
三七互娱全球总部大厦项目地块位于琶洲西区琶洲大街西北侧,南临和睦家医院,北临城市绿地和华邦国际中心,东侧为三一重工总部大厦,东南侧为广东移动信息大厦,北侧 300 米为琶醍啤酒文化创意区。基地内东北向为规划公园,视野开阔,尽览珠江美景。
全球 TOP20 上市游戏企业三七互娱秉承“给世界带来快乐”的使命,致力于成为一家卓越的、可持续发展的文娱企业。为了满足企业的快速发展,满足未来 6000+成员的办公需求,三七互娱于 2020 年 8 月启动了全球总部大厦国际设计竞赛,在全球范围内征集未来总部设计方案。GWP 建筑事务所主持建筑师张国威带领团队与众多知名设计单位同台竞技,最终以“玩心之家,创造快乐”的设计理念胜出中标,并将为项目提供后续整体设计服务。
从企业文化中构筑设计概念
Design from Corporate Culture
玩心之家,创造快乐
△ 企业文化解读 © GWP Architects
△ 概念生成分析 © GWP Architects
出于对三七互娱企业文化的尊重与深度解读,GWP 主持建筑师张国威将项目建筑的核心理念与三七互娱的文化产生共鸣,创造具有辨识度与功能性的外立面幕墙,承载着企业文化内核。设计思考从“玩心创造世界”为伊始,结合企业创始人的理念和企业特点,通过创新的手法将企业文化融入设计,形成一种有趣、和谐、开放创新以及凝聚共享的场所。建成后,三七互娱全球总部大厦将以其创新的外立面构造和内部空间为特色伫立在琶洲核心 CBD 区,传递出公司的使命和理念。
©GWP Architects
©GWP Architects
—— 三七互娱全球总部项目甲方负责人
△ 概念手稿© GWP Architects
三七互娱是由一群充满活力、创造力和富有社会责任感的团队创立和带领的,GWP 的设计理念恰与三七互娱企业文化产生呼应和共鸣。这个高层建筑不仅融入了三七互娱企业文化特色,更充分平衡了功能、空间舒适、生态节能和装配建造等系列技术落地问题,最终荣幸赢得这次项目的竞标。
—— GWP 建筑事务所,三七互娱全球总部项目团队
© GWP Architects
© GWP Architects
开放共享空间回馈城市
Open Shared Space
△分析图© GWP Architects
© GWP Architects
项目方案在整体思路上遵循琶洲总部片区的整体规划思路,出于对城市公共效益的考虑,在建筑首层让出公共架空空间,连通地块北侧公园绿地与骑楼空间。建设者希望建筑能成为人们在此城市生活的特别体验,体现城市的丰富多样性。
项目首层增加 24 小时全天开放的公共活动空间,同时加强公共人行动线灵活性。
于公共架空空间中,布置艺术楼梯、文化展示栏、城市艺术品摆放区、公共无障碍电梯厅、公共配套商业等公共服务设施,加强公共效益最大化设计,增加了项目的意义和价值。
理想的互动办公空间
Ideal Interactive Office Space
△ 各区特色公共空间示意图 © GWP Architects
△ 功能分析图 © GWP Architects
© GWP Architects
面对互联网类企业和人才团队,GWP 将三七元素渗透到建筑室内空间,构建一种面向未来、以人为本、生动有趣的空间环境,创造丰富多元的空间体验和场所互动,让每一位在这里工作的人可以选择其最舒服工作方式。
建筑二层设置了连廊与周边建筑进行连接,同时在建筑的高中低区各设置了特色公共空间。
© GWP Architects
低区的协作交流文化空间以阶梯形式连系三层通高空间,营造出更宽广的空间尺度,保证了空间的实用性和吸引力。
愉悦互动的交流体验,美妙惊艳的视觉感受。
© GWP Architects
中区的健康运动空间里设置了一条环形慢跑跑道,融合了三七互娱的马拉松文化。还有通高趣味攀爬装置、活力健身运动空间和户外悠闲绿化平台,为企业和人员提供体验开放健康的运动活动场所。
© GWP Architects
顶层的活动中心面向珠江,打开全方位江景视线,配置精致生态绿植的设计和通透开阔视觉空间,打造出一种优雅愉悦的总部办公及商务体验。
“多维”的绿化体系
"The Dimensional" Greening System
© GWP Architects
△立体绿化分析图 © GWP Architects
立体绿化 360°螺旋型从下至上覆盖整个建筑,结合公共空间设置,可调节微气候,降低热岛效应,提供舒适健康的办公环境。立体绿化延续城市绿意,在高中低区分布不同的空中花园,以建筑语言续写城市生态足迹。
裙楼屋顶延伸周边场地的绿化景观,精心营造一个充满亲和活力与社交互联的休憩之园;顶层屋顶花园可品赏极致全方位江景视野,精致生态绿植的布置,通透开阔视觉空间,使它从一众办公楼中脱颖而出。
这个项目在平衡建筑形体的同时需要满足总部人员的使用效率,在空调、电梯等核心机电处理上,需要克服一系列挑战。主持建筑师在每次重要节点会议中,对细节的严谨把控和对各专业高频率的沟通,是项目品质落地的关键。我们相信项目落成将成为该片区又一地标作品。
——赵海艳 Haiyan Zhao(三七互娱全球总部项目机电负责人,Aecom 董事)
灵活的平面模块化
Flexible Modularity
为了适应企业对于空间利用的灵活需求与不定期的功能转换可能,GWP 设计了一套模块化的平面体系。在一个标准的长宽盒子空间中,制定出办公模块、会议模块和活动模块等,公共活动模块可根据需求布置上下层连通楼梯。标准层中各模块数量及位置可根据需求灵活调配。在办公模块中,又细化出活动室、阅览室、展览室、培训室、洽谈室和酒会室等功能,满足各种个性化功能需求与自由组合。
△ 标准层模块化空间示意图 © GWP Architects
独特的立面模块化
The Unique Facade Modular
© GWP Architects
© GWP Architects
△ 全方位景观视野示意图 © GWP Architects
为适应岭南气候的特点,在建筑外立面上 GWP 设计了一种模块化的表皮系统。
通过控制模块的组合方式,形成东疏西密的合理遮阳方式,保证室内自然采光并可减少太阳辐射,实现高效的节能控制。
疏密的组合也展现出立面灵动的变化,在提升建筑节能的同时赋予了美学的魅力。
△ 模块化表皮示意图 © GWP Architects
△ 鸟瞰图 ©GWP Architects
三七互娱全球总部在平面与立面上全方位的模块化运用,有利于缩短建筑工期、节省造价和保证建筑施工质量,是超高层建筑领域的一次创新尝试,也是行业未来发展的必然趋势。
——李盛勇 Shengyong Li(三七互娱全球总部大厦项目结构负责人,RBS 结构副总工程师)
©GWP Architects
©GWP Architects
技术图纸
Technical Drawings
△ 总平面图© GWP Architects
△ 人行流线分析图 © GWP Architects
△ 车行流线
分析图 © GWP Architects
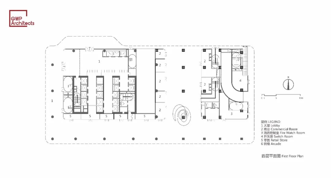
△首层平面图© GWP Architects
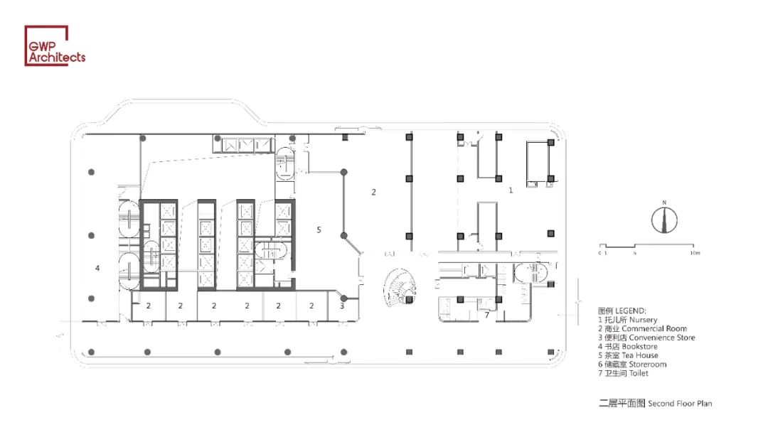
△二层平面图© GWP Architects
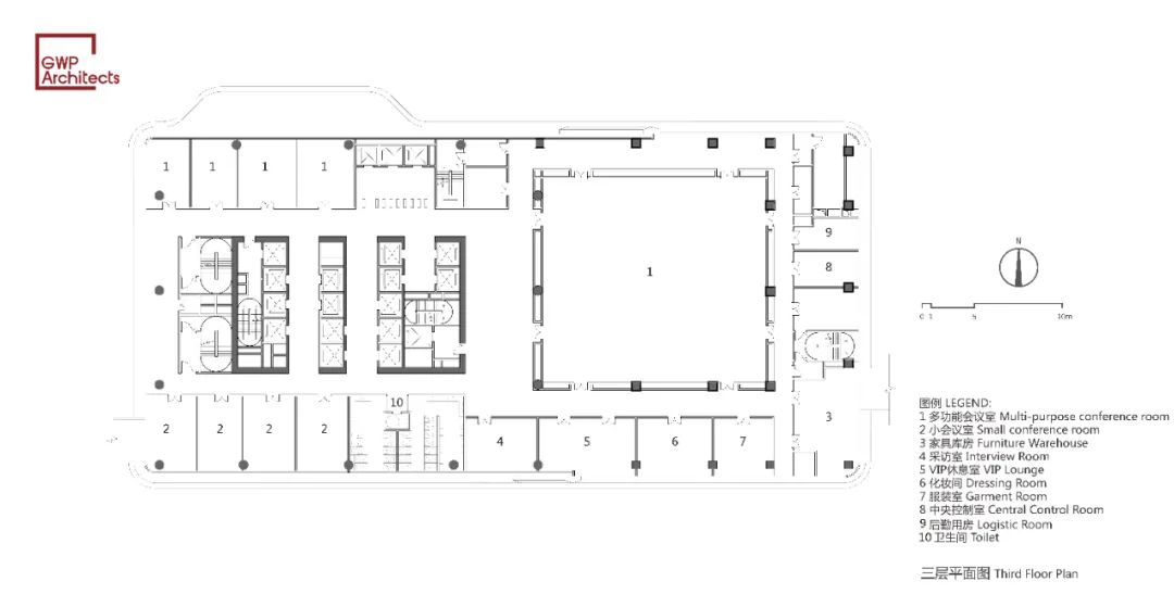
△三层平面图© GWP Architects
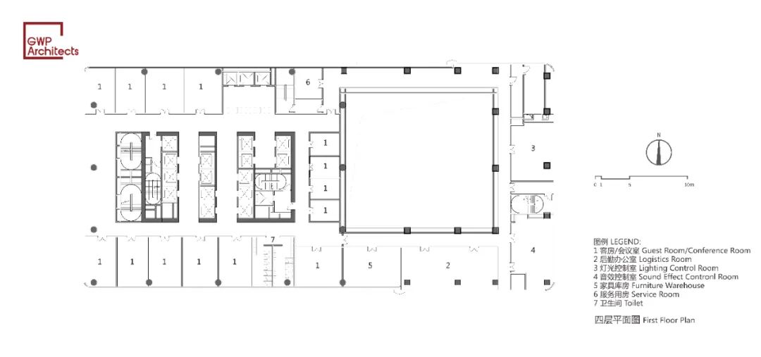
△四层平面图© GWP Architects
△低区办公层平面图 © GWP Architects
△中区办公层平面图 © GWP Architects
△高区办公层平面图 © GWP Architects
△ 立面图 © GWP Architects
△ 立面图© GWP Architects
△剖面图 ©GWP Architects
△剖面图 ©GWP Architects
项目名称:三七互娱全球总部大厦
项目地址:中国,广东,广州
投标时间:2020 年 7 月-2020 年 8 月
投标结果:中标(深化设计中)
项目阶段:深化设计
用地面积:6427㎡
建筑面积:88974㎡
建筑设计:GWP Architects, 源尚设计咨询(香港)集团有限公司
主持建筑师:张国威 John Zhang
业主单位:广州三七文创科技有限公司
结构设计:广州容柏生建筑结构设计事务所(RBS)
机电设计:艾奕康设计与咨询(深圳)有限公司(AECOM)
幕墙设计:武汉凌云幕墙
施工图设计:广州市设计院
主建筑材料:混凝土、钢结构、玻璃、铝板
本文由“壹伴编辑器”提供技术支持
主持建筑师
Chief Architect
张国威(John Zhang)GWP事务所合伙人 / 主持建筑师 / 总裁
哈佛大学华南校友会董事
华英会DEC青年设计发展计划主席
设计哲学/ Design Philosophy
以诗意栖居,和谐共生的设计理念,传递源自东方传统文化与现代技术融合的设计研究与实践。从研究中思考设计的深度与广度,从多元化的探索中寻求最好的解决方案,并实现项目综合价值平衡的均好成果!
主持项目曾获奖项/Awards
2020 A&D Awards (中国香港)2020
A&D Awards (Hongkong)
2020美国MUSE建筑设计奖最高奖项 - 铂金奖(美国)
2020 MUSE Design Award: Platinum Winner(US)
2020 德国标志性设计大奖 - 创新建筑奖(德国)
2020 ICONIC AWARDS: Innovative Architecture - Winner(Germany)
2020 世界设计奖(全球)
2020World Design Award (Global)
2020 全球未来设计奖(全球)
2020Global Future Design Award(Global)
2020 亚洲不动产奖(亚洲)
2020 Outstanding Property Award London(UK)
2020 伦敦杰出地产奖(英国)
2020 Asia Property Award(Asia)
第五届 REARD 全球地产设计大奖 - 商办类金奖(中国)
The 5th REARD Global Design Award(China)
2020 新时代山水城市创意提案奖(中国)
2020 Creative Future ShanShui City Proposal Awards(China)
2019-2020 年亚太华人设计作品大赛-金钻奖(中国)
2019-2020 Asia-Pacific Design Competition - Golden Diamond Award (China)
INSIDE 国际设计奖(荷兰)
INSIDE World Festival of Interiors(Netherlands)
世界室内新闻杂志大奖(英国)
World Interior News Awards(UK)
2019 年巴塞罗那设计周最佳设计奖(西班牙)
2019 Barcelona DesignWeek - Best Design(Spain)
REARD 全球地产设计大奖(中国)
REARD Global Design Award(China)
2019 年圣彼得堡设计周最佳设计奖(俄罗斯)
St. Petersburg Design Week 2019 - Best Design(Russia)
美国《室内设计》杂志 BOY (Best of Year) 室内设计奖(美国)
BOY(Best of Year) Interior Design Award(US)
2018 红棉中国设计奖 - 最美雅奢空间设计奖 (中国)
2018 Kapok Design Award - Best Design for Elegant Space(China)
本文由“壹伴编辑器”提供技术支持
关于三七互娱 About 37 Interactive Entertainment
三七互娱(股票代码:002555)是全球 TOP20 上市游戏企业、A股 行业龙头企业、2019-2020 年度国家文化出口重点企业。三七互娱凭借优异业绩被纳入中证沪深 300 指数、明晟 MSCI 指数、高盛“新漂亮 50”名单,是国内 A 股优秀综合型文娱上市企业。三七互娱总部设在广州,并在北京、上海、安徽、湖北、海南、江苏、四川、福建、香港、欧美、日韩及东南亚等多个地区设有子公司或办事处等分支机构。公司涵盖游戏、在线教育等业务板块,同时积极布局影视、音乐、艺人经纪、动漫、泛文娱媒体、VR/AR、文化健康、社交等文娱领域。旗下拥有知名的游戏研发品牌三七游戏,专业的游戏运营品牌 37 网游、37 手游、37GAMES,以及优质在线教育品牌妙小程。三七互娱秉承“给世界带来快乐”的使命,致力于成为一家卓越的、可持续发展的文娱企业。三七互娱,玩心创造世界!本文由“壹伴编辑器”提供技术支持
关于 GWP Architects 建筑设计事务所
About GWP Architects
GWP Architects 建筑设计事务所于 2012 年创立于美国波士顿,开始从事城市规划与建筑设计研究工作。通过几年的课题研究后,核心团队设立香港集团公司:GWP DESIGN & CONSULTING GROUP LIMITED 及广州公司,负责中国区域及亚洲地区项目,并迅速开展多个大型规划和建筑项目实践,其作品得到行业高度认可并屡获国内外知名设计奖项。
公司服务内容涵盖建筑设计、城市规划、景观设计、以及室内设计,项目类型主要涉及大型综合体、超高层写字楼、文旅地标建筑、文化博物馆项目,医疗教育公共服务类建筑,以及高品质住宅项目等。代表作品有广州丰盛 101 超高层综合体项目、广州三七互娱琶洲 CBD 超高层总部项目、大参林医药集团广州营运中心总部项目、东莞 CBD 示范性停车楼项目、泰国苏梅岛珊瑚湾五星级酒店项目等。
公司在推进实际项目的同时,GWP 在中国本土以及美国还配备有扎实的研究团队进行课题研究以促进设计思考的前瞻性。
GWP 从创建之初便秉承着对每一个设计的探索都始于本源的执念,希望以“诗意栖居”与“和谐共生”的设计理念,传递源自东方传统文化与现代技术融合的设计研究与实践。从研究中思考设计的深度与广度,从多元化的探索中寻求最好的解决方案,并实现项目综合价值平衡的均好成果。
GWP Architects started work on urban and architectural design in Boston in 2012. After several years of research, the core team established a Hong Kong group company: GWP DESIGN & CONSULTING GROUP LIMITED and Guangzhou Company, which is responsible for projects in China and Asia, and quickly carried out a number of large-scale planning and construction projects. Our works have been highly recognized by the industry and have repeatedly won well-known design awards at home and abroad.
The company’s services cover architectural design, urban planning, landscape design, and interior design. The project types mainly involve large-scale complexes, super high-rise office buildings, cultural landmark buildings, cultural museum projects, medical education public service buildings, and high-quality residential projects. Representative works include Guangzhou Fengsheng 101 high-rise project, Guangzhou 37 Interactive Entertainment CBD high-rise headquarters project, Dashenlin Pharmaceutical Group Headquarters Project, Dongguan CBD Parking Building Project, Coral Bay five-star hotel project in Koh Samui, Thailand, etc.
While the company promotes actual projects, GWP also has a solid research team in China and the United States to conduct research to promote forward-looking design thinking.
GWP has been adhering to the obsession of exploring every design from the beginning of its creation. With the philosophy of “poetic habitat” and “win-win strategy”, we convey to the world the design ideas from the fusion of China and the West. Think about the depth and breadth of design from research, seek the best solutions from diversified exploration, and achieve good results in the overall value balance of the project.
本文由“壹伴编辑器”提供技术支持
-END-
排版校对 | Wanxin
中原豪宅品质标杆 | 打卡郑州顶级豪宅,看国际大家的匠心营作【环球观筑】
3 月民宿考察之旅 | 在莫干山遇见春暖花开【环球观筑】
暖春三月再启程|成都+重庆高端住宅+商业建筑游学【环球观筑】
新行程 | 烟雨 3 月,开启探索徽派建筑美学之旅【环球观筑】
寻梦敦煌|在春天的大漠,走近世界艺术美学巅峰莫高窟!【环球观筑】
2021 全新行程 | 看王澍、徐甜甜、张雷、刘家琨等大咖设计之下的江南乡村秘境【环球观筑】
再现长安盛世荣耀,游学西安地产与现代建筑【环球观筑】
杭州+宁波,探索高端地产与住宅建筑之旅【环球观筑】
杭州+苏州考察 | 新锐地产+大师建筑+古典园林深度参访【环球观筑】
客服
消息
收藏
下载
最近



























































