查看完整案例


收藏

下载
©TURZEN
Nordic Office of Architecture 建筑事务所对顺德大歌剧院的设计被专家团队评审为获奖方案。这个概念是一个植根于顺德历史的文化传播中心,一个面向未来的活跃的艺术舞台。其中一个空间是专注于呈现顺德历史文化的博物馆,另一个空间则是承载当代艺术表演的舞台。还包括的空间体量是艺术学院,将教育、激励和培养未来的艺术人才。
“通过顺德文化传播中心,我们提出了一个外向型公共建筑的概念,当地居民和游客都可以在这里感受顺德丰富的历史文化以及在一系列正式和非正式舞台上欣赏世界级的艺术表演。”Thomas Fagernes,事务所合伙人,设计总监。
©TURZEN
©MIR
在构想中,Nordic Office of Architecture 建筑事务所除了设计了任务书中概述的三个大型舞台外,还提供了一系列空间体验场所,从主广场的大型公共表演空间到屋顶和大堂更开敞的户外表演空间。
对于文化中心,设计团队为各种相遇和互动创造了空间和舞台,观众可以利用建筑的外部和周围的景观进行空间探索和活动。
Nordic Office of Architecture
Nordic Office of Architecture
Nordic Office of Architecture
顺德植根于当地丰富的水文化,我们设计团队研究了河流创造场地景观的方式。我们的概念方法是像河流塑造空间一样,在整个建筑空间中创造柔和的以及流动的线条。
“这样的塑形方式为我们提供了两个大型公共场所空间,一个与地面相连,一个与苍穹相接。”Jaymar Delgado,Nordic Office of Architecture 建筑事务所建筑师说。
©MIR
整个设计空间的西侧是顺德大歌剧院,外向型的空间,大型入口广场面朝绿色景观区域。
创意谷位于整个规划的东侧,以绿色广场为中心,人们在此相遇,使得不同创意职业之间的协同效应在此得以彰显。
©TURZEN
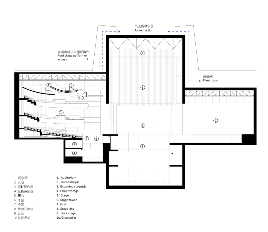
剖面图
金色音乐厅的设计灵感来自岭南的梯田意向,为音乐厅提供了柔和流畅的线条与良好的舞台视线。“我们设想了一个金色的空间氛围,用丝绸包覆的木墙板创造出柔滑的光泽,室内深色的木地板,以及玉绿色织物的靠垫的灵感来自顺德周围郁郁葱葱的自然景观。”Frederico Francisco,Nordic Office of Architecture 建筑事务所建筑师说。
©TURZEN
作为表演者与观众亲密接触的场所,歌剧院舞台拥有丰富而豪华的内饰,深红色座椅,深色木材和来自该地区的图案丝绸面料,共同营造出与当地文脉相结合的温馨空间氛围。
每个剧院在大堂内都有专门的抬高区域,可同时进行各个舞台表演的运营。
“我们营造了一种具有地方特色的温馨氛围,将舞台设计为表演者和观众之间亲密的聚会场所。十字形的舞台布局,为多次表演和排练提供了充分的灵活性,同时缩短了表演者与观众之间的距离。”张扬,Nordic Office of Architecture 建筑事务所建筑师说。
©TURZEN
Nordic Office of Architecture
"这个大堂空间中心元素的设计灵感来自于丝绸的外观,这是广东这一地区历史悠久的材料。"Eva Schwärzler,Nordic Office of Architecture 建筑事务所建筑师说。
大堂的休息平台空间像柔软通风的丝带一样环绕着功能空间,在三个表演舞台和各个休息平台之间形成了流畅的水平连接,与有机设计相得益彰,营造出了优雅的空间氛围。
©TURZEN
Nordic Office of Architecture
Nordic Office of Architecture
分析图
总平面图
分析图
分析图
分析图
平面图
平面图
平面图
平面图
平面图
平面图
剖面图
剖面图
立面图
立面图
项目信息
项目名称: 顺德大歌剧院
建筑事务所/公司/机构/单位: Nordic Office of Architecture
项目地址: 广东省佛山市顺德区
建筑面积: 316,463 m2
主创建筑师: Thomas Fagernes
设计团队: Nordic Office of Architecture
Thomas Fagernes, Frederico Francisco,张扬, Eva Schwärzler and Jaymar Delgado
中国境内设计院:广东省建筑设计研究院有限公司
陈雄,郭胜,宋永普,刘德华,许秋滢,姚粟尹,梁景豪,詹明澄,汪燎宇,李东
剧场设计顾问:TheatreProjects
品牌设计顾问: Abstract Drawing Center
效果图:Mir, 泽图数字科技(北京)有限公司,Nordic Office of Architecture
客服
消息
收藏
下载
最近

































