查看完整案例


收藏

下载
一条邕江穿城过,一座青山城中坐。
青山伴着绿水转,绿水青山都是歌。
广西南宁,古属百越之地,一座拥有千年历史底蕴的文化古城。作为拥有最多壮族先民的地方,它海纳百川,包容万象。得天独厚的自然条件使得其满城皆绿、四季常青,故有“绿城
”
之美名。
而更多不为外人所知的是,南宁亦别名“象城”,早有文字记载“兽莫巨于象,莫有用于马,皆南土所宜。”,我们敬畏自然,感恩其带给我们的悠久文明。
为此,我们将此次设计融入大象元素,赋予其知识、力量,加深“融小象”形象IP,以江南书院的形式贯穿空间的东方美学,将"IAMI"的年轻活力尽情释放,创造出与城市共同成长的知识体验馆。
在南宁经开区,融创致力于打造出匹配周边学校、教育为主导的理想人居家园。因此“融小象”IP应运而生,它象征着童趣、多彩、知识,以成长性的学区背景来激活整个社区生态的聚合力。我们希望在这样一个独特的“江南书院”环境中,让孩子们快乐成长,去实现他们理想之境。
每个孩童都似才出生的可爱小象,他们蹒跚而行,迈着摇晃的步伐努力行走。如同接待厅的童趣场景,鲜活的橙色象征着小象的童年,美好而清新,白云造型的吊灯好似遥不可及的美梦,需要父母的肩膀托起小小的身躯,仰望星空,终有一天,能触摸知识的大门。
随着一天天长大,小象旺盛的好奇心也日益累积,沙盘区上的星球吊灯四处散落,与照进空间的阳光一起,耀眼而富足。二层出挑的大象雕塑托举着灯筒照射在圆形沙盘上,似象爸爸为小象搭建的舞台,放开双手是成长过程必经的另一种爱与陪伴。
当眼光落于另一面墙体,七米高的超高书柜成为售房部最出彩的空间。这是孩子们的学习殿堂,我们保持着对世界的好奇,与小象一起开启无尽的知识遨游
。
我们渴望自由,如同小象想早日脱离家人的怀抱去探索大自然,这是一种对未知的勇敢探索。设计师在洽谈区延续书柜造型,简洁的线条与复杂立面形成鲜明对比。象征着“融小象”的书海主题震撼视觉感知。温暖的橙色软装贴合整体色调,创造出沉浸式的休憩体验。
而在同一个空间的水吧区,因为有了星球吊灯的加入变得梦幻迷离。大家可以尽情释放心中感触,这样动静相宜的布局下,萌生出面向未来的无穷能量。
色彩斑斓的亲子互动区,有着憨态可掬的小象雕塑,开阔的空间为家长带去全视野的看护,满柜的儿童绘本贴合了书院的主题,配以柔软的地毯与自然的材质用心去呵护孩子们对知识的好奇与想象。
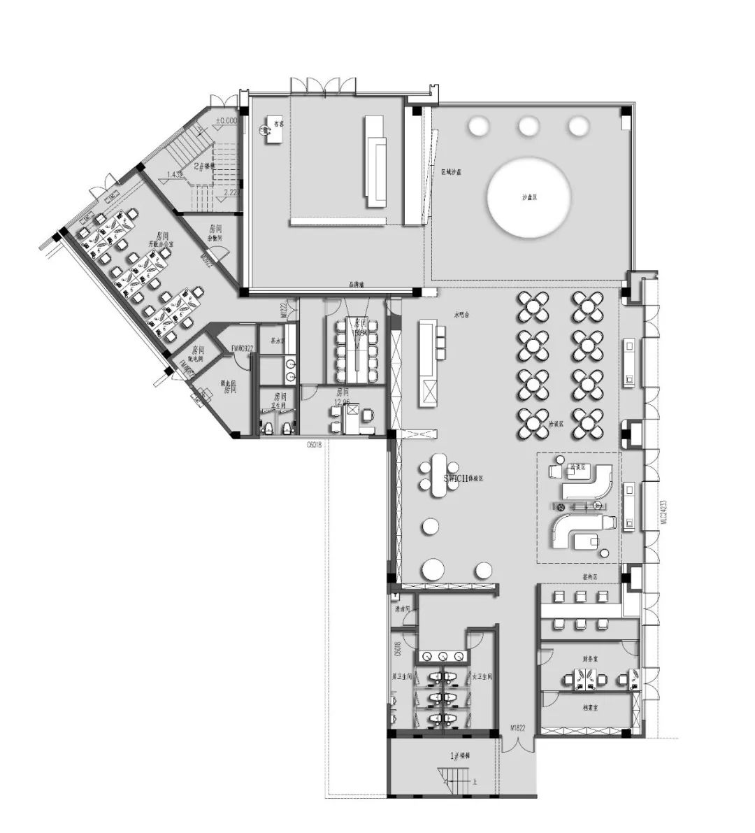
△平面布置1F
△平面布置2F
效果图/Effect picture
项 目 介 绍
PROJECT INTRODUCTION
项目名称
|
融创·江南书院
销售中心
室内设计
|
重庆米修室内设计有限公司
硬装团队
|
李芳/万继亮/杨雷/蒋丰洲/晏小芳
甲方单位
|
融创广西公司
甲方团队
|
冯娟/张洪黎/银婧
项目地点
|
广西·南宁
项目面积
|
580
㎡
完工时间
|
2021年7月
客服
消息
收藏
下载
最近































