查看完整案例

收藏

下载
【项目名称】:
盛京烤鸭
【项目地点】:中国·辽宁沈阳
【项目面积】:1500平米
【完成时间】:2019年7月
【设 计 师】:伊振华
【设计团队】:张晓彤、李浩、孟令军
【主要材料】:大理石、瓷砖、铝板转印、金属电镀、墙布、硅藻泥
【摄影/撰文】:钟永刚/丰美
【创意说明】
餐厅如人,以格局轮廓初定基调,从环境散发儒雅气质,以细节品质上考量内涵品位。设计师伊振华说:“盛京烤鸭宛如一位含蓄、优雅、淡泊的谦谦君子。”
设计师要做的便是通过设计让人感受到这种神韵,一种处事的态度和人生境界,用当代的设计手法,表达中国的千年传承,这也是当下中式的精髓。
在网红餐厅不断涌现的当下餐饮市场,商务宴请、企业聚餐、朋友聚会等需要一些用餐仪式感的需求被淹没,他们的声音由谁来倾听?设计师伊振华和业主委托方决定抓住易被忽视的诉求,打造定位准确,既适合聚餐又不失品位的沈阳传统美食盛京烤鸭。
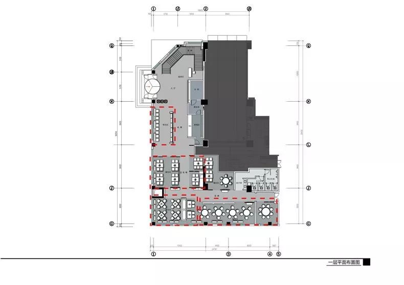
【设计图纸】
【空间简述】
盛京烤鸭择城市核心地标僻静一隅,传统的门庭设计结合现代建筑手法,让新与旧的碰撞在第一眼便令人心生好奇。进入室内,山与水、动与静构成一幅绝美的水墨画卷跃入眼帘,游走在“青山绿水”之间,惬意而安心。
中国文化博大精深,跨越纵横的地域形成显著差异,在中式表达上也会呈现出不同的属性,它应该是青砖白瓦的江南水调?
还是代表权力和地位的阶层礼序?
根植于北方这片迷人的土地,属于盛京烤鸭的中式是怎样的?
设计师伊振华回首盛京历史,虽地处苦寒之地,却成就了历代重臣再度启用的仕途之路,撑起中华文化的脊梁,谦谦君子因保持不屈傲骨和高尚品格而流芳千古,这是属于盛京的中式精神,沉重而不压抑,是暗夜中的微光、凌冽中的雪莲。
一层餐厅的设计语言中以形达意,寓情于景,整体处理为暗调,环境更为稳重内敛。
选取中国传统的“梅兰竹菊”四君子作为空间的精神表达。
烛灯暗喻“梅”花,在暗调中徐徐开放,象征冰肌玉骨,凌寒留香的高洁志士。
深谷幽“兰”,清香淡雅,象征着操守清雅。
钛金框架在灯光照射下“竹”林丛中,象征清峻不阿、高风亮节的品格情怀。
纱屏代表“菊”和禅空,象征隐逸世外、不陷污浊。
二层的包房层更加私密,大面积朴素的灰色营造安静淡然的就餐氛围,引人产生无限遐想。
《礼记·礼运》中说:
“夫礼之初,始诸饮食。
”生活的仪式感便来自于饮食的礼仪,一种内在的伦理精神。
唯其“精”,才能有完整的“美”;唯其“美”才能激发“情”;唯有“情”,才能有时代风尚的“礼”。四者完美统一,便形成饮食文化的最高境界。盛京烤鸭期待做一个传统文化为底蕴的有仪式感的现代餐厅。
完整的“美”既包含环境之美,器物之美,菜品之美,还有始终如一的向美之心。
盛京烤鸭回应当下餐饮生活方式对差异诉求的表达,以设计的敏锐完成传统餐饮的现代转身,以中式风格偏好为基调,打造形神兼备的“谦谦君子”盛京烤鸭。
时
系删除
----------------------------------
:
---------------------------------
客服
消息
收藏
下载
最近























