查看完整案例


收藏

下载
【项目名称】:
MAYS西式餐厅——植韵悦食
【项目地址】:中国·广州
【设计公司】:广州道胜设计有限公司
【项目面积】:280㎡
【项目摄影】:彭宇宪
【竣工时间】:2018.04
【主要材料】:仿木瓷砖,防火板,不锈钢,清水墙漆,扪皮
【创意说明】
这个素食餐厅,开在广州K11,k11是个啥地儿呢,众仙云集,每一家店铺都有个性化的设计,所有店的用餐环境都好到秀色可餐的程度,想要在这里脱颖而出,不仅菜品要经得起考验,首先在空间设计上MAY就要拿出竞争者的诚意来。
设计师以“植物生机”为主题,设计了有如在“林间漫步”的用餐环境。
综合大众点评网的所有评价,“时尚,未来感”是主要评价词汇,设计师希望食客感受的“林间漫步”无人提及。
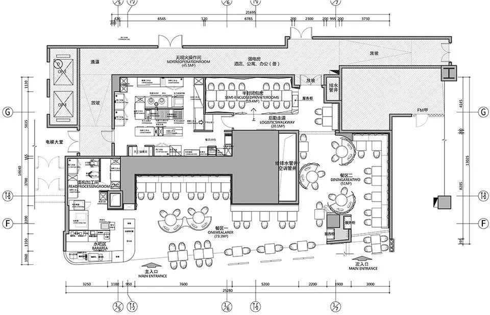
【设计图纸】
【空间简述】
整个空间设计,最吸引人眼球的就是,网状不锈钢独立就餐区,设计师希望食客能在此区域感受到大树老根的交错,雨后嫩叶的脉落,初春嫩枝上的纹理。纵横交错的网状不锈钢大气磅礴,呈现在照片里极具噱头。
设计师煞费苦心,所以食客们也评价颇高,许多食客就是被朋友圈里的美照吸引前来打卡。
但是呢这个网状不锈钢独立就餐区其实就是一个过道,只摆
得
下四张餐桌,为此,许多食客也是抱怨颇多
该餐厅获得2018年亚太区室内设计大奖,大部分食客对都认为该餐厅十分时尚,具有未来感,但是仍然有一部分食客在点评网上抱怨,除了网状不锈钢独立用餐区十分夺人眼球外,开放式就餐区,水吧区都像略显高级的公司职工饭堂。
然后餐厅一直致力于素食地质量,所以开业两年了,餐厅地人气维持地很好,即使在非周末地午餐时间,也需要排队一小时以上。
时
除
----------------------------------
:
---------------------------------
客服
消息
收藏
下载
最近
























