查看完整案例


收藏

下载
「阅世集」
方寸之间 自有大观
当我们游历世界各处,住过风格迥异的酒店、逛过不同主题展馆画廊、陶醉形形色色艺术空间后……是否在构筑理想之家时,记忆中的风景与空间形态不知不觉投射出来?
室内设计
采用相对克制、弱化的设计,让位给空间的功能性,去除多余的装饰性。追求艺术品的简洁纯粹,保持形式的完美,杜绝一切繁杂干扰,用最少的“视觉噪音”满足最大的功能需求,呈现出宁静的美感。
让回家是一种回归与放松的过程,是家人之间的互动,不希望被过多的家具和装饰“束缚”。
本项目荣获 2020 年度亚太空间设计大奖赛别墅空间类银奖。沉稳温馨
简约灰搭配上大理石,沉稳内敛不失温馨。生活值得细细品味,富有灵魂的艺术境界,空间的节约和共享打破空间界限最大化生活空间。阳光透过落地玻璃窗洒进用餐区,纱幔后渗透出微光,整个空间简单优雅,享受静谧时光。
©客厅 DRAWING ROOM
简明不繁缛,含蓄不外露。简约不简单,经典不过时。
明亮纯粹
与客厅相连的用餐区明亮而纯粹,干净简约的装饰与整个空间呼应。陶瓷与金属材质搭配的餐桌,让简约的空间散发出奢华的感受,碰撞出强大的视觉冲击力,让用餐极富格调。在灰色系的基础上点缀家具和饰品的鲜亮色调、布料和皮革的质感,呈现更细腻和柔软的肌理与感官效果。
餐厅 DININGROOM
简约稳重
主卧以简洁的线条,交汇出极致舒适的生活哲学,以艺术玩味空间,透过现代架构,善用材质与比例创造现代意境。精致的皮雕设计搭配高质感的家具,朴素、干净、低调;硬朗的家具线条,端正的饰品,尽显成熟与稳重。整体感觉简约又不失大气,稳重中带点个性张扬。
主人房 MASTER ROOM
明净开阔
运用极简干净框架,构筑光影空间实貌,简单办公微型工作室,与衣帽间融为一体。利用玻璃进行半封闭的隔断,使空间有私密的同时也能跟休闲区进行互动交流,空间开阔舒朗、采光充足,营造出宁静、轻松、引人遐思的氛围。
工作室
STUDIO
乐高元素
乐高元素的别致搭配,从背景墙开始延伸到柜子到书椅,为孩子营造一种活泼空间氛围。运用烤漆板和软包装饰墙面,搭配蓝白色系家具,整个空间优雅温馨。
儿童房 CHILDREN ROOM
时尚精致
休闲厅增添了亮色与趣点,宛如在规整生活中的一场无视边界、始终保持着对内心热爱的探索与个性的突破,形成对简雅沉稳整体格调的冲击对比。柔和的色调提升整个空间颜值,让人倍感轻松舒适。糅合细腻质感的软配,烘托一个时尚精致、气质优雅且不失温馨舒适的空间感受。
©休闲厅 LEISURE HALL
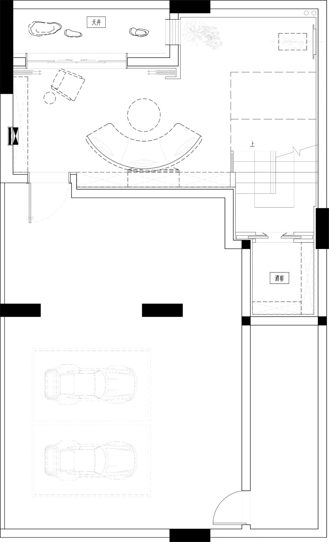
负一层平面 MINUS ONE PLANE
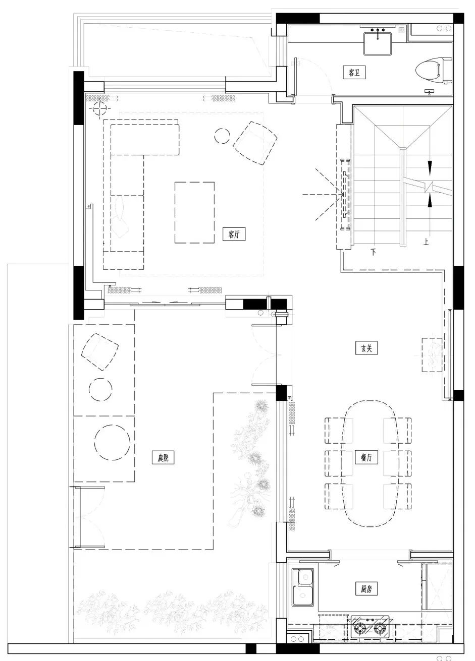
一层平面 FIRST FLOOR PLAN
▼二层平面 SECONDFLOOR PLAN
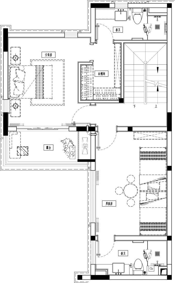
▼三层平面 THIRDFLOOR PLAN
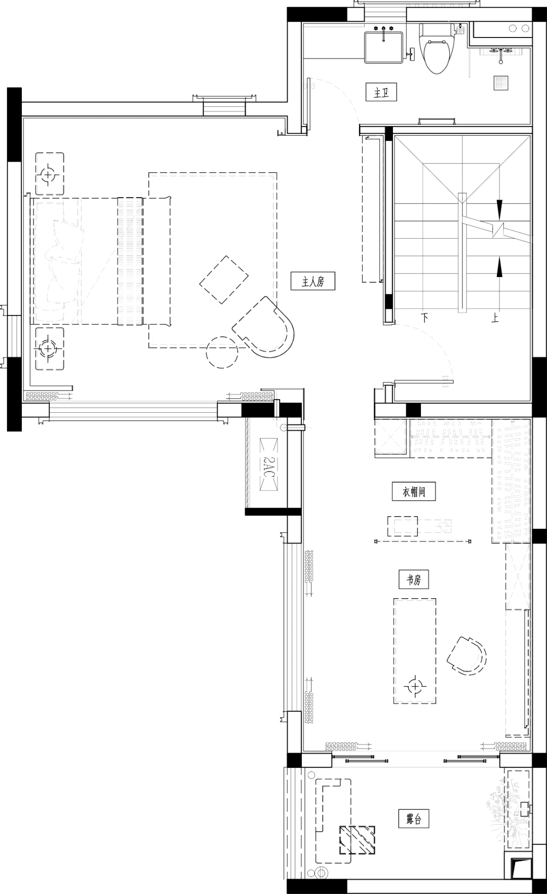
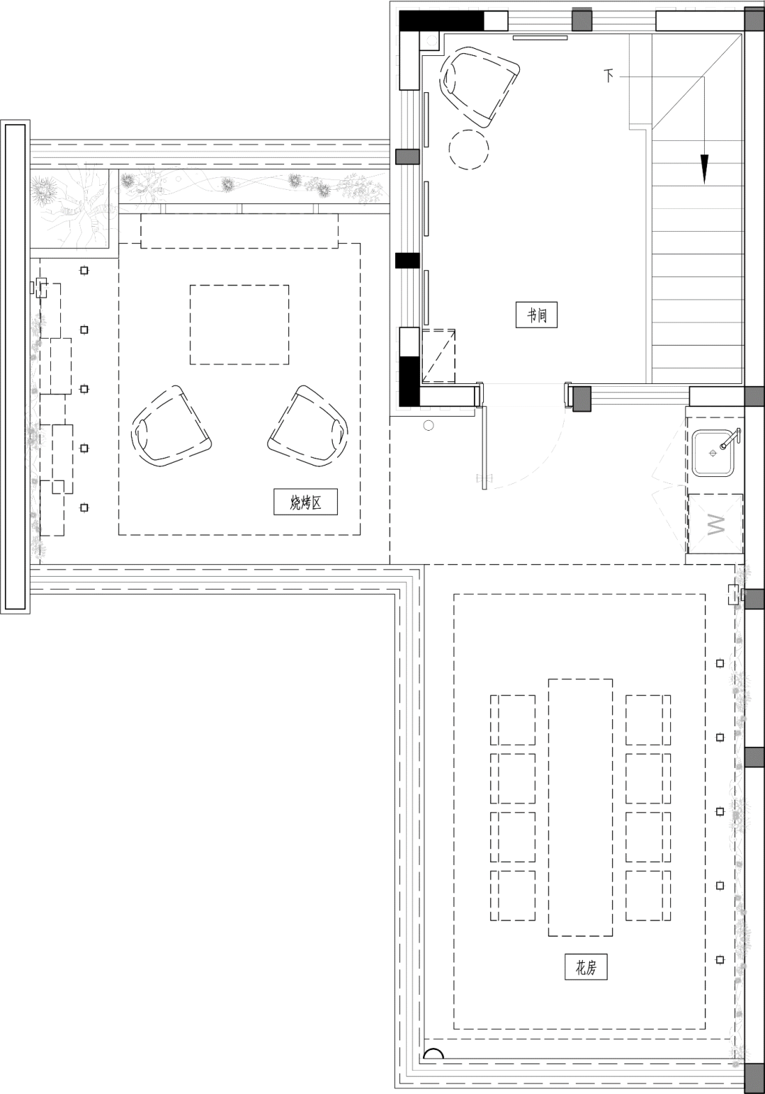
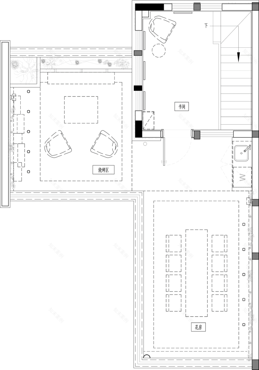
▼四层平面 FOURTH FLOOR PLAN
项目名称 | 佛山高明明湖北湾别墅样板房
项目单位|美的置业粤桂区域公司
设计单位 | 广东天元建筑设计有限公司(简称睿住天元)
设计内容 | 全专业全过程设计
室内设计面积| 304㎡
室内设计指导|陈学深
室内主创| 黄锋森
软装主创|米雪晨
室内团队| 袁林钰、陈国
【独家首发】睿住天元|美的剑桥郡——学府文化的『梦想追寻』
REMAC TY 室内|回味情怀,追寻快乐:昆明美的·云璟
REMAC TY 室内 | 株洲美的湾 · 拥有家里装不下的童趣
REMAC TY 景观|河源美的·云筑展示区:健康生活馆
客服
消息
收藏
下载
最近





































