查看完整案例


收藏

下载
深炼透实异色基底 空间肌理自然浮现
在大平数的空间里,住着三口之家,奠基于开放式的场域需求,与现代简约调性的向往,我们摒除所有隔间墙,仅利用柜体及拉门作为分界。
而因应案场原有的三面采光优势,在整体色调上我们选以沉稳基底,利用黑白木皮的交错,镶嵌铁件、镀钛与石材,透过深浅有致的韵律,将典雅大气铺陈一室。
如何在一致的色相中,调配相异的视觉呈现,是 羽筑设计 徐汎羽 设计总监 在本案中思索的重点;而这样的差异,则呈显在质材肌理与线条变化上,如客、餐厅天花板皆以垂板跳色处理,呼应场域主色;透过细微的组构,让家的协调性得以彰显,不做过多的装饰,仅诉说空间的纯粹本质。
玄关柜体拓宽深度,结合鞋柜与临时衣柜,以进口系统板材结合铁件,悄悄地划分客、餐厅动线。并特别将中间挖空,使场域视野形成串连,也作为放置收纳的区块。
天花板亦不做到顶,而是采保留退缩,不仅为视觉增添变化,更呼应空间整体的穿透本质。
餐区柜面以浅色配置,凸显餐桌的沉静色调,寓示不同区域的机能划分;亦不另外设计隔墙拉门,借此拉近人与人之间的情感联系,让互动对话随着开放式的动线互通有无。
餐桌柱体以中空形式呈现,呼应空间的通透主调;轻薄桌面连接至中岛吧台,两侧嵌以书报架,中间做收纳柜,三个面向皆适得其所,也让空间整体干净俐落。
儿童室以三片拉门,建构空间的弹性运用,业主夫妇也能照看孩子的活动,确保其安全性。通透的玻璃门片,使视野毫无阻隔,延伸至窗边,尽享户外风光。
客厅背墙选用进口系统板材,以深浅对比的线条拼接搭组,呈现立面视觉的立体感。电视墙则有别于一般亮面石材,选以仿皮革面的大片纹理,加深对比色泽,强调触摸质感,搭衬米白色沙发软件,形构一处充满韵致的起居空间。
廊道门片以灰玻搭配黑色镜面的镀钛框边,增添场域华丽度,一席低调轻奢气息缓缓流淌。伫立于此,天地壁的材质色阶对比立现,陈述空间中的各种变化与可能。
主卧回归休憩功能,简约而不单调,沉稳而不沉重。立面线条设计同样运用于此,床头背板透过拼接层叠,形塑一面景框,迎纳光影变化。
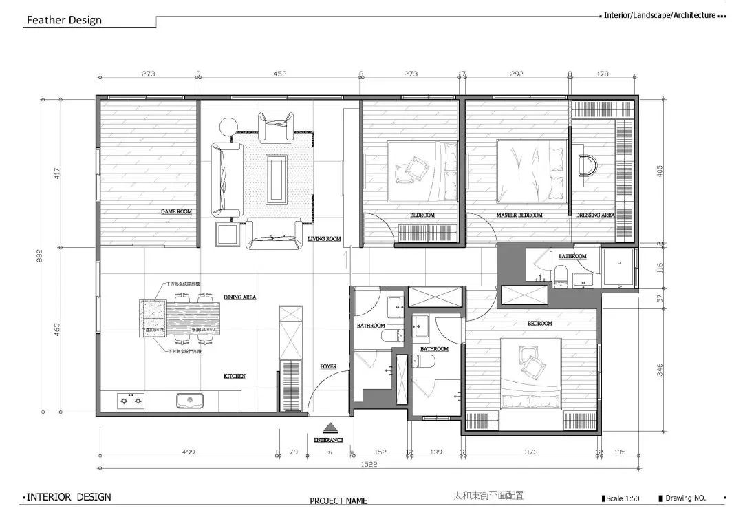
∇ 平面图
客服
消息
收藏
下载
最近

















