查看完整案例

收藏

下载
长江美术馆,位于山西省太原市东北角的长江村。2016 年,长江村像中国其他千万个村落一样,因城市建设的原因被抹为平地。承载着人们日常生活记忆的土地,发生了断裂式的变化。美术馆作为公众共享的文化空间,将以当代的方式回应、纪念这片土地上所发生过的故事。
▲鸟瞰,aerial view©陈颢/直向建筑
Changjiang Art Museum is located in Changjiang Village at the northeast corner of Taiyuan, Shanxi Province. Similar to any other Chinese villages, this village was razed in 2016 to give way to the full speed urban development. The spatial context that once inscribed the memory of people’s everyday lives were deprived and fractured. Changjiang Art Museum, as a cultural and shared space that will serve the public in the future, attempts to establish a contemporary response commemorating the traces and atmosphere of the human construction that ever existed on this piece of earth.
视频:建造实录,Video: Construction Record ©直向建筑
长江村近十五年变迁,Site-location-of-2019-&-2003
美术馆位于新建社区南端边界,与城市紧邻。
所以,建筑怎么连接社区和城市是我们关注的问题之一。
美术馆西南侧主楼梯从城市街道开始向上爬升,通向二层户外活动平台。
平台成为一个被架起的广场,再通过北侧的连桥延伸到社区。
这条外部穿越的公共流线,完全独立于馆内的展览流线,二者共同服务于城市公众和社区居民。
南立面近景,A Close-up of South Elevation©陈颢/直向建筑
入口,Entrance©陈颢/直向建筑
西立面近景,A Close-up of West Elevation©陈颢/直向建筑
入口近景,A Close-up of Entrance©陈颢/直向建筑
The Museum is situated at the southern edge of a newly constructed residential community, adjacent to the urban gird. Therefore, how to make the museum function as a linkage between the community and the city turns to be one of the major issues we concern. At the lower level of the building, we carve out the space at the southwest corner for an outdoor staircase, landing to the street level and leading up through the museum to an open terrace. The terrace at the second level becomes a raised-up plaza with a tree courtyard in the center, allowing for public activities and further connecting to the northern community across the street via a footbridge. This exterior crossing circulation is public and independent from the route in the museum. Both of them accommodates the use for the general visitors and local residents.
首层入口,Entrance on the First Floor©陈颢/直向建筑
入口门厅,Lobby©陈颢/直向建筑
从门厅看向庭院,View from Lobby to Courtyard©陈颢/直向建筑
庭院,Courtyard©陈颢/直向建筑
北立面近景,A Close-up of North Elevation©陈颢/ 直向建筑
庭院和室外平台,Courtyard and Terrace©陈颢/直向建筑
室外平台,Terrace©陈颢/直向建筑
在美术馆内部,一个底部直径 5.7 米、高 16.4 米的“光塔”是整体空间组织的“锚固点”。“光塔”既是起点也是终点。人们对这个空间的体验从底层开始,参观路径中会有两次对望,结束于沿“光塔”外层环绕而下的螺旋楼梯。
光塔内景,Interior View of Light Atrium©陈颢/直向建筑
The galleries of the museum are arranged around a light well with 5.7 meters in diameter and 16.4 meters in height, which serves as the organizing “anchor” for all the spaces. The light well is both the starting point and the end point. People will start from passing through the bottom part of the light well, walk along the spiral staircase coiling up to the galleries while inadvertently looking back into the light well through the apertures at different levels, and eventually conclude the journey stepping down from the top gallery along the light well again back to the starting point.
光塔内景,Interior View of Light Atrium©陈颢/直向建筑
从螺旋楼梯看向光塔和二层展厅,View from Spiral Staircase to Light Atrium and Exhibition Hall©陈颢/直向建筑
从螺旋楼梯看向光塔空间,View from Spiral Staircase to Light Atrium©陈颢/直向建筑
从螺旋楼梯看向光塔空间和展厅,View from Spiral Staircase to Light Atrium and Exhibition Hall©陈颢/直向建筑
在展览空间内,自然光经过天窗柔化过滤,再透过 1.9 米见方、1.9 米深的井字梁格构渗入展厅,形成一种匀质的、笼罩性的光线。连接二层与四层的外挂楼梯、内院的角窗、四层展厅西南角的竖向开缝,为沉浸于展览当中的人们提供了回眸城市的瞬间。
While inside the galleries, natural light is filtered and softened by the skylights, penetrating through a grid of 1.9 x 1.9 square meter waffle beam and filling the interior with a homogeneous and immersive light quality. Furthermore, the exterior staircase that connects the second through fourth floors, the protruding corner window on the fourth floor, and a southwest-facing vertical window on the same floor all provide museum visitors with glimpses of the contemporary cityscape of Taiyuan.
二层展厅,Exhibition Hall on the Second Floor©陈颢/直向建筑
东侧楼梯,Staircase on the East Side©陈颢/直向建筑
四层展厅,Exhibition Hall on the Fourth Floor©陈颢/直向建筑
四层展厅墙特写,A Close-up of Wall on the Fourth Floor©陈颢/直向建筑
从放映厅看向展厅,View from Video Area to Exhibition Hall on the Fourth Floor©陈颢/ 直向建筑
从展厅看向放映厅,View from Exhibition Hall to Video Area on the Fourth Floor©陈颢/ 直向建筑
从放映厅看向角窗,View from Video Area to Corner Window©陈颢/直向建筑
从角窗看向庭院,View from Corner Window to Courtyard©陈颢/直向建筑
从庭院望向角窗,View from Courtyard to Corner Window©陈颢/直向建筑
四层展厅竖向长窗,Vertical Window on the Fourth Floor©陈颢/直向建筑
四层展厅竖向长窗特写,A Close-up of Vertical Window on the Fourth Floor©陈颢/直向建筑
在我们看来,长江美术馆就像一块坚硬的砖,在这个特定的空间和时间的坐标点上,沉默并注视着周边喧嚣和变化着的城市。
As we see it, Changjiang Art Museum is like a solid block of brick – occupying a specific space-time coordinate, bearing witness silently and attentively to the clamorous and ever-changing city around it.
室外平台,Terrace©陈颢/直向建筑
东北视角街景,Street View from North-East©陈颢/直向建筑
西北视角街景,Street View from North-Wast©陈颢/直向建筑
鸟瞰,Aerial View©陈颢/直向建筑
模型,Model© 直向建筑
设计手稿,Sketch© 直向建筑
1 层平面图,1F Plan©直向建筑
2 层平面图,2F Plan©直向建筑
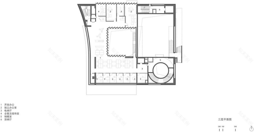
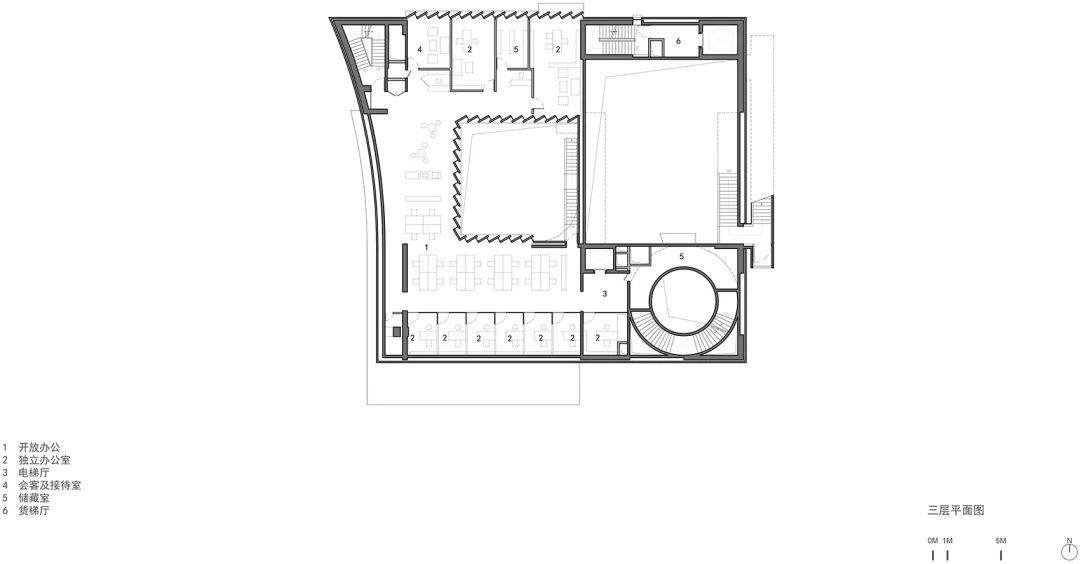
3 层平面图,3F Plan©直向建筑
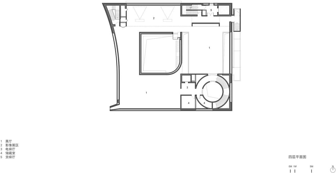
4 层平面图,4F Plan©直向建筑
屋顶平面图,Roof Plan©直向建筑
剖面图 1,Section 1©直向建筑
剖面图 2,Section2©直向建筑
长江美术馆 项目信息
Changjiang Art Museum
地理位置:山西省太原市杏花岭区长江村,中国
Location: No.89, Kaixuan Road, Xinghualing District, Taiyuan, Shanxi, China
建筑/室内/景观设计:直向建筑
Architectural/ Interior/ Landscape Design: Vector Architects
主持建筑师:董功
Design Principal: Dong Gong
项目建筑师:孙栋平
Project Architect: Sun Dongping
建造管理:赵亮亮
Construction Management: Zhao Liangliang
驻场建筑师:郭天舒、陈振强
Site Architect: Guo Tianshu, Chen Zhenqiang
项目成员:马小凯、陈振强、张恺、蒋昱程、滕晓曈、赵丹
Design Team: Ma Xiaokai, Chen Zhenqiang, Zhang Kai, Jiang Yucheng, Teng Xiao-tong, Zhao Dan
当地设计院:北京弘石嘉业建筑设计有限公司
Structural & MEP Engineering: Beijing Hongshi Design Co.,Ltd.
合作项目建筑师:张翠珍
LDI Project Architect: Zhang Cuizhen
合作建筑师:李默
LDI Architect: Li Mo
结构设计:薛微、钟志宏、田熙
Structural Design: Xue Wei, Zhong Zhihong, Tian Xi
机电设计:沈隽、郝书妨、张建霞、师科峰、李英平
Mechanical & Electrical Design:Shen Juan,Hao Shufang,Zhang Jianxia,Shi Kefeng,Li Yingping
灯光顾问:清华大学建筑学院张昕工作室
Lighting Consultant: X Studio, School of Architecture, Tsinghua University
业主:山西千渡房地产开发有限公司
Client: Shanxi Qiandu Real Estate Development Co.,Ltd.
结构类型:钢筋混凝土剪力墙结构
Structure: Reinforced Concrete Shear Wall
建筑材料:木模混凝土,粘土砖,竹钢,青砖
Material: Wood-form Concrete, Brick, Laminated Bamboo
建筑面积:3900 m2
Building Area: 3932m2
占地面积:1100 m2
设计周期:05/2016-03/2017
Design Period: 2016.05–2017.03
建设周期:03/2017-09/2019
Construction Period: 2017.03–2019.09
摄影:陈颢(hchen@chenhao.studio, sera@chenhao.studio)Photograph: Chen Hao (hchen@chenhao.studio,sera@chenhao.studio)
事务所简介
直向建筑事务所于 2008 年在北京成立。
在十三年的设计实践过程中,面对复杂多元的设计线索,“场地”“光”和“建造”是我们持续的关注点。
我们认为没有一个建筑是可以脱离“场地”而存在的。而每一块场地,都一定有它已经存在在那里的某种能量,可能是一个美好的自然、一个繁忙的城市片段,也可能是生动的人和行为。建筑要做的是通过精准的空间动作,把这种能量揭示出来,转化成人的感知和生活。这很像是一块被放入水中的石头,它的周围产生了涟漪,我们便察觉到水的流动。从这个意义上讲,建筑不是开始,也不是结束,它是一种媒介,一种连接和呈现的媒介。
“光”则是我们的另一个持续关注点。自然光在显现空间中固定的,有形的物质和边界的同时,也在消融着它们的物理局限。光是一种能量,赋予空间弥漫着的情绪和氛围。随着太阳在一天当中的轨迹移动,天气和季节更替,这种无形的特质永远在变化。在我们看来,光对于建筑,既是一种视觉意义上的“观看”,又是一种身体意义上的“沉浸”。
董功直向建筑创始人 / 主持建筑师法国建筑科学院外籍院士。
董功于 2008 年创立直向建筑事务所,于 2019 年被授予法国建筑科学院外籍院士。先后受聘为清华大学及中央美术学院设计导师,美国伊利诺大学杰出客座教授,意大利都灵理工大学客座教授。
董功及事务所多次受邀参与国内外重要展览,于 2021 年参加 MoMA 纽约当代艺术博物馆的首次中国建筑展;2018 年参加第 16 届威尼斯建筑双年展 FREespace 主题展。事务所曾多次获得全国优秀工程勘察设计行业奖一等奖(2019、2017、2013);RIBA 英国皇家建筑师协会“国际杰出建筑奖”(2021);意大利 Domus“100+最佳建筑事务所”(2019);瑞士建筑奖入围奖(2018);意大利“Archmarathon”建筑奖最高奖(2016);美国建筑实录国际十大设计先锋(2014)等重要奖项。
董功曾多次受邀于清华大学,马德里理工大学,伊利诺大学,苏黎世联邦理工学院,法国建筑师协会,意大利 Casabella Formazione 等国内外高校、学术机构发表演讲和教学评图。世界知名建筑期刊《AV Monographs》出版第 220 期直向建筑专辑《Cosmopolitan Vernacular》,同时其作品多次被《CASABELLA》《Arquitectura Viva》《The New York Times》《A+U》《Detail》《The Architectural Review》《L’Architectured’Aujourd’hui》《Lotus》《Domus》等媒体出版物发表。
其代表作品包括:海边图书馆,海边教堂,阳朔糖舍酒店,船长之家改造,长江美术馆,坪山美术馆,南开大学海冰楼等。
精成空间 |No. 5 Forest
纯氧 X 图景 | 极致的设计与表现
内容策划 /Presented
策划 Producer:纯氧
撰文 Writer
直向建筑
排版 Editor:纯氧
图片版权 Copyright:直向建筑
©原创内容,翻版必究!
客服
消息
收藏
下载
最近






















































