查看完整案例


收藏

下载
▲点击蓝字“知行 Design”
中华优秀作品第一发布平台!
壹向营造|贵阳顾奈城市酒店
壹向营造
随着时代的变迁,城市多重叙事交错之处,酒店越来越像时尚一样,成为一种“自我宣言”,变成一种生活方式。顾奈城市酒店择址贵阳市 CBD,酒店的老板是一位有着十年外海生活的海归人士,他希望顾奈酒店能够成为一个自由、探寻更多可能性的地方。设计师本着社交的本质,这个有着独特性格的酒店由此诞生。
With the change of The Times, where the city’s multiple narratives intersect, the hotel is becoming more and more like fashion, becoming a "self-declaration" and a way of life. Gu Nai City Hotel is located in the CBD of Guiyang. The owner of the hotel is an overseas returnee who has lived abroad for ten years. He hopes gu Nai Hotel can become a place for freedom and exploring more possibilities. Based on the social nature of the designer, this hotel with a unique character was born.
设计引入了“城市客厅”的概念,以“高于生活的艺术”作为场景构建的核心依据,其设计不单是空间结构的垒砌,或是艺术陈设的输出,更透过空间的维度将酒店的品牌精神具象化。
The design introduces the concept of "urban living room" and takes "art higher than life" as the core basis of scene construction. Its design is not only the layout of spatial structure, or the output of artistic furnishings, but also the brand spirit of the hotel materialized through the dimension of space.
多元、开放是顾奈酒店的特性,非一般的体验是酒店别致开场,彬彬有礼。电梯厅入口处“星云”灯,通过形体、材质和镜面光影的塑造,将空间视觉延伸至酒店大堂。挑高的双层接待大堂以沟通、分享、社交的休闲设计手法呈现,结合墙地面肌理与收银台质感,以及软装与灯光的氛围营造,达到令人放松的空间状态。
Diversity and openness are the characteristics of Gu Nai Hotel, and the unusual experience is the hotel’s unique opening, polite. The "Nebula" lamp at the entrance of the elevator hall extends the spatial vision to the hotel lobby by shaping the shape, material, and mirror light. The high-ceiling-level reception hall is presented by means of casual design for communication, sharing, and socializing. Combining the texture of the wall and floor with the texture of the cashier desk, as well as the atmosphere of soft decoration and lighting, it achieves a relaxing space state.
天花“星云”点滴形成灯火阑珊,与城市融合,进一步地引用与结合抽象的形式,并以趣致微妙的方式呈现在公共区域的室内空间里,以让客户更深层的体会主题概念,同样呈现的是酒店开放、诚恳的待客之道。形态、样式各异的家具与艺术品于此巧妙邂逅,在比例、色彩和故事间平衡出自由生动的活力。
The ceiling "Nebula" drops form the dim lights and merge with the city, further introducing and combining the abstract form, and presenting it in the interior space of the public area in an interesting and subtle way, so that customers can have a deeper experience of the theme concept, and also showing the hotel’s open and sincere hospitality. Furniture and artworks of different forms and styles meet here subtly, balancing free and vivid vitality between proportion, color and story.
设计师注重动与静的结合,开放与私密的分寸,空间巧妙运用壁炉进行隔断,作为一种礼貌的互动媒介,建立住客与住客之间更多的连接,雅致而不落俗套的格调,带给旅客活色生香的时尚风情及家的舒适和温馨。
Designers pay attention to the combination of dynamic and static, the balance between open and private, skillfully use the fireplace to partition the space, as a polite interactive media, to establish more connections between guests, elegant and unconventional style, bring visitors lively fashion style and home comfort and warmth.
连接二层客房的楼梯,所传递的视觉冲击终于被极大地释放,它从螺旋方式到色彩,在有序中变化,暗示着其他空间的存在。形态、样式各异的家具与艺术品于此巧妙邂逅,在比例、色彩和故事间平衡出自由生动的活力。
The staircase connecting the guest rooms on the second floor, the visual impact delivered by the staircase is finally greatly released. It changes from spiral mode to color in order, suggesting the existence of other Spaces. Furniture and artworks of different forms and styles meet here subtly, balancing free and vivid vitality between proportion, color and story.
进入客房扑面而来的放松与愉悦,细腻的色调和温柔的灯光营造舒缓和不受干扰的庇护所,精致的细节呈现当地从容不迫的生活态度,在选材、构成及色彩中构建一种平衡,拨出沁人心扉的合弦。
Entering the guest room, you will feel relaxed and happy. Delicate colors and gentle lighting create a soothing and undisturbed shelter. Exquisite details show the local attitude of leisurely life, creating a balance among materials, composition and color, and arousing the heart strings.
这个强调身、心、感、悟的城市里,现代新概念商务酒店通常是干净利落的,设计师提炼一种未经驯化的内在生命力,意图在商务标准中打破呆板与无趣,以与众不同的“生活范”为导向,为宾客提供个性化空间体验。
In this city that emphasizes body, mind, feeling and understanding, modern new concept business hotels are usually clean and neat. Designers extract a kind of untamed inner vitality, with the intention of breaking rigidity and boredom in business standards, and providing personalized space experience for guests with distinctive "life style" as the guidance.
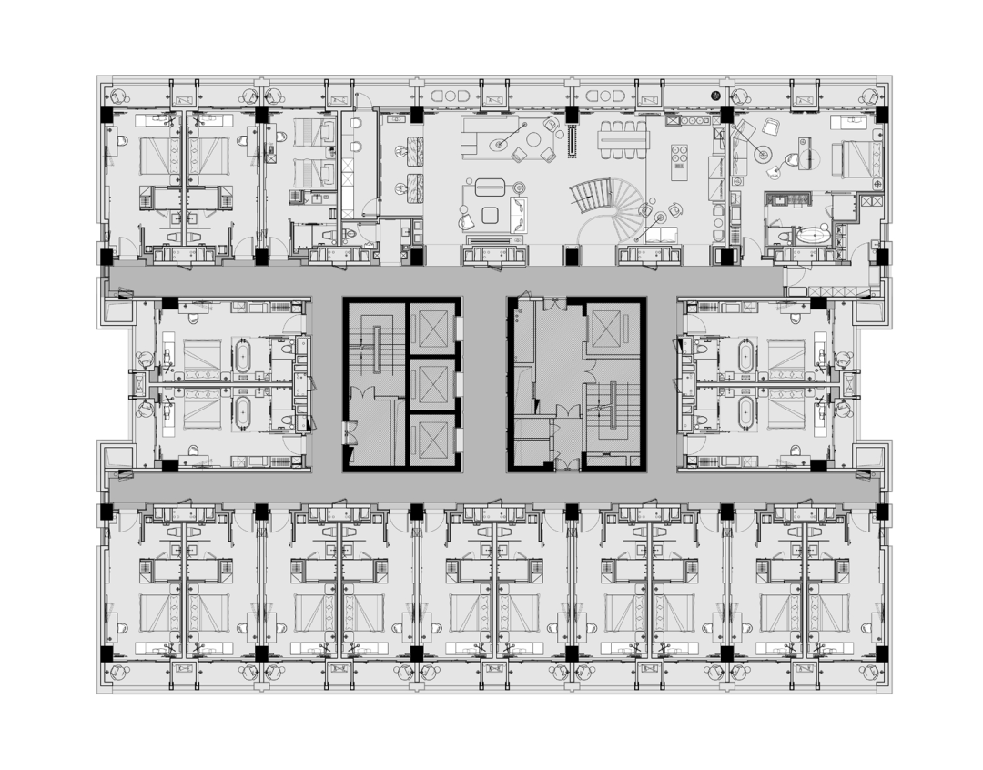
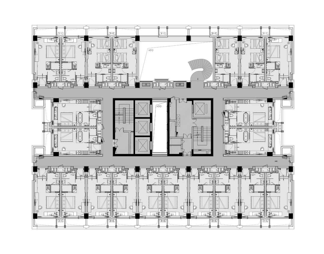
图纸呈现 -Drawings Show-
项目名称|贵阳顾奈城市酒店
Project Name | Guiyang Gu Nai City Hotel
Hard installation design | One to build
设计团队|肖润、龙小勇、余让双、潘铱灵、夏荣
Design Team | Xiao Run, Long Xiaoyong, Yu Rangshuang, Pan Iriling, Xia Rong
Soft outfit design | 壹向营造
Project area | 4000㎡
设计时间|2019.06 Design Time | 2019.06
完工时间|2021.05 Time of completion | 2021.05
特别鸣谢|胡鑫 Special thanks to Hu Xin
主要材料|蓝金沙石材、古铜不锈钢、胡桃木饰面、岩板
Main materials | Blue jinsha stone, copper stainless steel, walnut veneer, rock board
Project photography | mountain and sinc
内容策划 /Presented
策划 Producer:知行
排版 Editor:Tan
校对 Proof:Tan
图片版权 Copyright:原作者
知停而行
客服
消息
收藏
下载
最近




































