查看完整案例


收藏

下载
空间中流动的诗
一首苏轼的《花影》,将花儿在光下的影子表现得曼妙灵动,也写出了对“影”欲拒还来的无奈,这里的“影”就像时间在美人脸上留下的雕刻痕迹,挥不去、赶不尽。
[花时影]这个富有诗意又具有时尚女性特点的名字,是业主创立的原创芳疗护肤品牌,以花养容,抹去时光的印记,替女性还原自然之美。
重重叠叠上瑶台,几度呼童扫不开。
刚被太阳收拾去,却教明月送将来。
本案是一套三层别墅,业主专门用作芳疗的工作室,设计之初面对这样一个富有诗意的品牌,我们也在思考如何创造出与之相呼应的拥有意境的交互空间。
有一位被称为“诗的建筑师”——斯卡帕,他更像是一位用空间来写诗的艺术家,其设计给我们了很多新的启发,在此我们致敬卡洛·斯卡帕。
▲一楼会客厅
光线必须被很好的控制住;我确信窗是功能空间和展示的一个重要决定因素。
——斯卡帕
▲一缕光的安慰
有了影才凸显出光的存在,光让一切变得清晰、可视,而影又将其之外变得暗淡、模糊,它们控制着空间的情感,有一种令人着魔的表情魅力,还掌控着空间之诗意的呈现。
▲窗给予的希望
夕殿下珠帘,流萤飞复息。古代珠帘与美人相提,伊人的面容在珠帘的光影中若隐若现,神秘妩媚;而现代的帘与窗相辅,不同的窗设计师采用不同形式的帘,以光线作诗,呈现空间的柔和之美。
▲一楼接待室
空间中多个体块的穿插、交错与咬合让视觉在不停的游走,各个空间中的物与景在感官中流动,以“似乎”“好像”以及“感受到”取代了绝对与独断的隔墙分割。
▲空间的‘透’视
这样的模数形成的元素看起来没有什么了不起,然而他们确实充满了表达上的意味和动能。——斯卡帕
▲▼细部的推敲
细部背后的影子令人更加着迷,复语式的抽象节点,有韵律的处理,最终形成了空间中极富穿透力的斯卡帕式节点设计,配合着对不同材质的使用,成为一首独特的交响乐。
▲▼材质的组合碰撞
细腻丝滑的灰丝绒,粗糙质感的褐色亚麻,冰冷平整的大理石与泛着复古气息的金属,这些挑动起瞬间情感的颜色及材质成了体会空间的主角。
▲一楼办公区
▲二楼实验室
▲产品展示区
▲三楼私人接待室
三楼是芳疗个案的私人接待空间,在这里可以享受更高端的定制服务,主体家具的包裹感给人以舒适放松的氛围,诗意继续在这里流动,写一首关于西方的诗歌。
▲三楼私人接待室
那最美的、最愉悦的、最感人的并非佛罗伦萨式的宁静与安稳,也非巴洛克风格的曲线与张力,更像是圣托里尼的自由与神秘,它是女性空间独有的魅力。
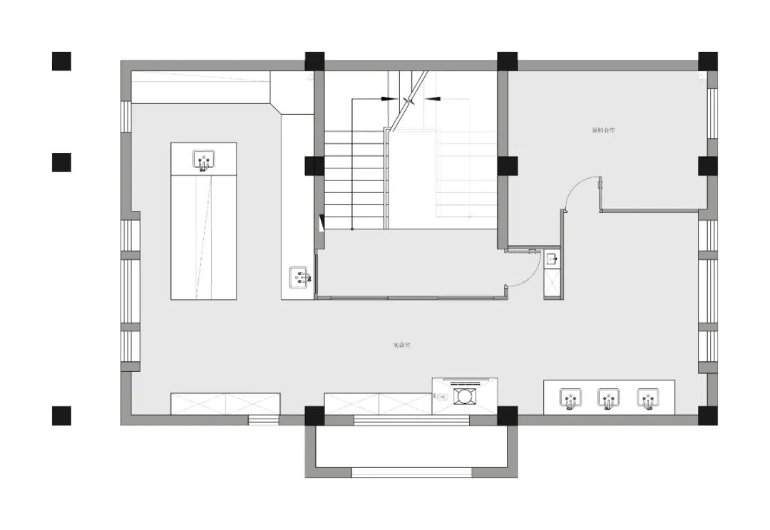
▲一层平面布置
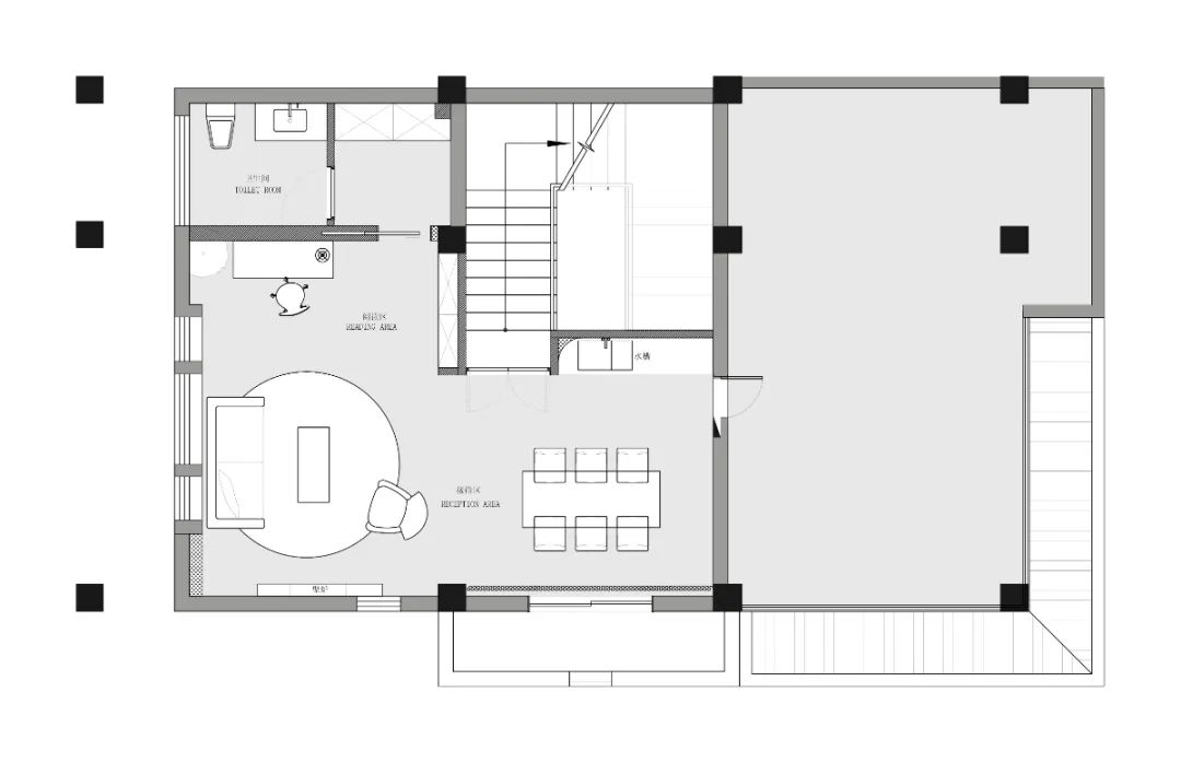
▲二层平面布置
▲三层平面布置
项目坐标:花时影原创芳疗 Project Address:HuaShiYing Aromatherapy
项目类型:商业空间 Project Type: Commercial Space
项目面积:340 Project Area:340
设计时间:2020.11 Design Time:2020.11
拍摄时间:2021.07 Shooting Time2021.07
设计机构:晓安设计 Design Company :XiaoAn Design
摄影机构:AK 空间摄影 Photography Agency:AK Space Photography
周晓安
苏州周晓安室内设计事务所设计总监
2016 年国际空间设计大奖艾特奖最佳别墅设计
2017 年达人网评为全国优秀设计师
2017 年《软装设计师手册》特约软装专家顾问
2018 年获 Hi-Design 第六届室内设计大赛三等奖
2018 年度 M+中国高端室内设计大赛全国城市奖
2018 年度“苏州设计人物”称号
2019 年度荣获 IDPA 中日国际先锋设计银奖
2019 年作品获央视 CCTV2 采访收录
2020 年 SIDW 年度潮新设计达人
2020 年 40UNDER40 中国(苏州)设计杰出青年
2021 年第 16 届金外滩奖“最佳商业空间奖”
晓安设计
2013 年苏州室内设计网络领域的后起之秀,是由新锐设计师周晓安先生领衔创立,并由一群拥有非凡热情和前瞻视野的主创设计师、软装配饰师与工程技术精英联合组成的高素质设计团队。周晓安设计倡导舒适生活,精细设计,风格多变。拥有独立的软装品牌、专业的施工团队与一批木作家具软装定制厂家,深度促进硬装设计的高效执行与个性软装的完美呈现。
【部分案例】
▲无锡香樟园 270°环景豪宅
▲水岸清华瀚宫
▲翡翠云台
▲碧桂园·珑悦
【首发】No. 5 Forest:精成空间设计
内容策划 / Presented
策划 Producer:纯氧
撰文 Writer:晓安设计 王薇 排版 Editor:晓安设计王薇 纯氧
图片版权 Copyright:晓安设计
©原创
内容,翻版必究!
客服
消息
收藏
下载
最近











































