查看完整案例

收藏

下载
这是我们会永远做下去的一个系列:机构展播。我们希望挖掘中国新生设计力量,让好设计被更多人看到!国内室内设计市场日趋完善,主流室内设计媒体仍然主要以刊登设计大咖作品为主。但是不可否认的是国内的优秀设计师如雨后春笋般的蓬勃发展,有些设计师的水准甚至达到了极高的层次。今天纯氧再给大家介绍一家在广州的设计工作室:广州一点设计工作室,目前也是两人。01木盒子
Wooden Box
项目名称|木盒子
项目地址|广东广州
设计团队|广州一点设计工作室
项目周期|
2018-2019
建筑面积|140㎡
项目类型|住宅空间
项目造价|50万(包含设计费、硬装、软装和电器)摄影版权|RICCI空间摄影
主要材料|BoConcept、flos、Gubi、宅匠木地板、仙人掌先生灯具、科定木饰面
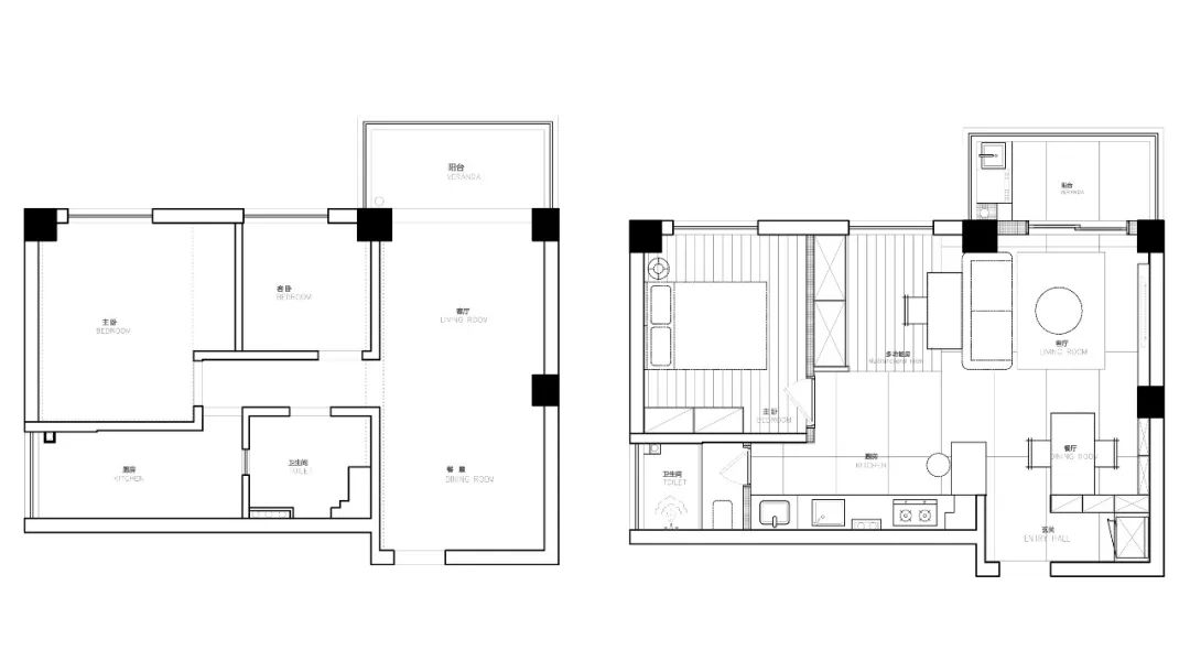
这是一套采用大块面的原木色饰面板包裹住的房子,将客餐厅、卧室与书房,进行合理分区,组成一个个方形空间,仿佛置身于一个大木盒中,屋主认为,简单、随兴与自在,便是生活最美的样子,让我们走进木盒,看看生活该有的样子。
设计师选用白色烤漆面板做柜门,使空间明亮简单,加上大块面的原木色饰面板与整屋木地板,让明亮的空间显得更有暖意,仿佛置身在森林中自在、随兴。
平面布置图
房屋原本是精装房,屋主需要的只是客餐厅、卧室与书房的改造,为了使客餐厅宽敞明亮,设计师将入户左侧的房间打掉,做成了开放式书房,客餐厅与书房连为一个整体,让空间上显得大气,入户处也不会显得那么拥堵,采光也得到了最大化的利用。
02
江景闫宅
Riverview YanHouse
项目名称|江景闫宅
项目地址|广东广州
设计团队|广州一点设计工作室
项目周期|
2017-2019
建筑面积|180㎡
项目类型|住宅空间
项目造价|70万(包含设计费、硬装、软装和电器)摄影版权|RICCI空间摄影
主要材料|科定木皮、威兹帕克木地板、北欧风情、MELT灯
闫宅位于广州江边平层,在这里我们可以一览珠江全景;屋主是一位单身时尚女白领,对生活有自己独特的方式;作为精致的新时代独立女性,她的心中怀有浪漫的幻想,却不随波逐流,喜欢与世界温柔地对话,宅在家里是她最享受的状态。
设计师通过朋友接触到屋主时已经装修至木工完工,由于之前的拖拉,屋主也不清楚自己具体想要的感觉,加上材料的脏乱,屋主萌生新的想法,打掉现有格局重新设计装修,屋主说:“我想拥有大大的落地窗、足够的收纳空间、简洁舒适,当阳光洒下来也是如此的惬意”。
空间轴测面
原建筑平面
平面布置方案本案的原始户型为三房,原设计师在格局上没有进行改变,主人房的门改至阳台处,现设计师将设计的重点集中在了大大的落地窗、足够的收纳空间、简洁舒适几个关键点上,包括客厅餐厅、主卧衣帽间的配比、也成为了本案调整的关键点。
改造后的户型图,将客厅连接主人房的墙体全部拆除,然后再进行空间划分,合理增加客厅电视隐藏柜,以及浴缸,打掉了客厅的阳台形成了大大的落地窗,因为一个人屋主希望能在公共区办公,西厨,聚会等功能,设计师设计了一个多功能岛台,满足了屋主的诉求。
03
50㎡下的精致生活项目名称|50㎡下的精致生活项目地址|广东广州设计团队|广州一点设计工作室完工时间|2020建筑面积|50 ㎡项目类型|住宅空间项目造价|35万(包含设计费、硬装、软装和电器)摄影版权|
RICCI
此项目位于广州荔湾区,在这里我们可以体验老广州人的生活方式,怎么将新与旧来结合是这次改造最主要思考的方向。屋主是一位从小在广州生活的老广州人,在这里有便利的交通、熟悉的街坊邻居以及对“家”的记忆,在与屋主交谈过程中,也深知她对这里的感情,空间不仅仅是空间本身,它更是人置身其中的情感容器,以及人与人亲密沟通的精神窗口。
空间轴测面
平面布置图
改造前的平面图
本案的原始户型为两房,虽然只是50平方,不过房子使用面积还是比较大,原始户型也存在几个问题
1.餐厅与厨房距离相对较远使用起来不太方便
2.每个空间相对独立
3.客房长时间闲置浪费空间使用率
4.卫生间采光相对差,在户型中间区域影响整体动线
改造后的平面图
户型主要是单面采光,设计师将公共区域打开,做成LDK式全开放空间,一点都没有浪费穿过窗户的阳光,将卫生间与厨房的位置进行了调整,空间分配也进行了细分,进门增加了玄关的区域,由于老房子管道较多,橱柜的操作台面面积不够,增加了一个小吧台区域,既满足了情调又可以增加台面使用率,将原来客房的墙体直接打掉,做了一个开放式空间,把衣柜梳妆台外置,还可以做工作阅读区,达到了“麻雀虽小,五脏俱全”的效果
04
G先生与L小姐的家
项目名称|G先生与L小姐的家
项目地址|广东广州
设计团队|广州一点设计工作室
项目周期|2019
建筑面积|
120
项目类型|住宅空间
项目造价|40万(包含设计费、硬装、软装和电器)摄影版权|RICCI空间摄影
主要材料|北欧风情家具,仙人掌先生灯具,BoConcept,NORHOR,木纹砖,定制柜
本案位于广州市是一个三口之家的房子。L小姐在网上看到我的作品,她说喜欢我对空间整洁的处理,温暖,简约。G先生与L小姐是地道的广州家庭,L小姐主要在家带小孩,他们对收纳空间与美观都比较看重。在认识我之前G先生与L小姐已经找了一家传统家装公司出了设计方案与效果图,经过跟他们详细沟通后原有的方案全部推翻重新设计。他们对于新家的想象希望舒适安逸,清新自在。最后落地L小姐跟我说感觉自己住进去了好好住的家。
原始建筑图
改造需要:1.因为做饭没有油烟,希望有一个开放式厨房兼并西厨、吧台功能
2.女屋主希望有个独立的衣帽间
3.希望有一个开放式多功能房供小朋友学习与娱乐
4.居住的房间希望都是朝南
平面布置图
房型改造:1.原厨房是暗房,打开隔墙变成开放式大大增加了采光通风
2.餐厅改做西厨+吧台的模式
3.拆除阳台推拉门,将阳台纳入到客厅空间,做多功能房,保留部分空间做洗晒阳台
4.减少原来卫生间的空间,将洗手台外置,在增加一个洗手台的同时还在原有卫生间保留了一个洗手台,增加空间的有效利用率
5.把衣帽间放置到了北边的房间
05H宅
项目名称| H宅
项目地址| 广东广州
设计团队| 广州一点设计工作室
设计时间| 2019
建筑面积| 172㎡
项目类型| 住宅空间
空间轴测图
06Nicole Home
项目名称|
Nicole Home
项目地址|广东广州
设计团队|广州一点设计工作室
设计时间|2020
建筑面积|100㎡
项目类型|住宅空间
日本传统美学起于物哀而归于侘寂
侘寂(wabi-sabi),一种以接受短暂和不完美为核心的日式美学。侘寂的美有时被描述为“不完美的,无常的,不完整的”。它是从佛教三法印派生的概念,特别是无常。有人认为,侘寂是东方美学的最高境界。
侘寂居室,以有缺憾的手法塑造意境卓绝的空间。不完整之物、不完整之景,独有一份完整的淡泊意趣
“侘寂”一词更倾向于形容不完整之物。于时间流逝中消耗形体、质色、光泽,物本身形成缺陷,不可逆转。但从另一个角度来看,缺陷是光阴走过的证据,每道斑痕都凝聚着只可意会的从容与谦逊,令观者共鸣出发自内心的极致满足
"不完整的事物更有意义,无论任何事物,圆满、完美都是不好的,保留着残缺的状态反而更有情趣。"——吉田兼好《徒然草》
初闻“侘寂”便想到旧物。旧物充盈时光之美,这种美令它拥有记忆,于静默里忠实等候,真实、朴素、自然。静置的旧物,譬如一把旧椅、一只陶罐,或一面老墙,都能引申出一段尘封的故事。老物件传达美的方式,从来都是婉约着、引导着,直达内心。
“侘寂”是日本美学意识的一个组成部分,它在否定世俗普遍意义的美的同时,又产生一种新的美。诸行无常,随缘自在;荣枯有序,到处理成。“侘寂”的禅机,同佛教中的“智慧”一样,可意会不可言传。
向自然借来材料,堆砌出“侘寂”的人居场所。木、石、藤、麻......效仿自然的居室能够呈现物最本真的状态,进而引导人回归内心的满足与宁静。“侘寂”寄托于空间每一个微末之中,我们透过物看到时间的流逝,也因此领悟时间的魅力。
同时,侘寂美学在日本的审美价值中的地位,大致相当于希腊对于美和完善的理想在西方的地位。如果一个物体可以在我们内心带来宁静的忧郁和精神向往的感觉,那么它可以说是侘寂。
07
高德公馆L宅
项目名称|高德公馆L宅
项目地址|广东广州
设计团队|广州一点设计工作室
设计时间|2020
建筑面积|130㎡
项目类型|住宅空间
空间轴测图
08
纯氧问答
纯氧:简单介绍一下自己和团队吧。
ERIC:ERIC
Design创始人吴佳,一直从事设计行业,在工作中不断摸索自己定位,在之前任职公司中不断学习获得一些不错的成果,依旧决定离开公司成为独立设计师,作为独立设计师落地许多套完整性实景私宅项目。
2020注册公司名字广州一点设计,目前是两个人的团队,专注私宅设计方向,是一家有注重设计落地的工作室。
对于广州一点设计来说,做设计我们会多一点责任,多一点态度,用设计还原家理想的样子。
纯氧:你最喜欢的设计师(或建筑师)是谁?为什么?
ERIC:
彼得·卒姆托,喜欢他对设计的态度,他说过“不是给我足够的钱就行,我必须对项目真的感兴趣才行。对我来说,得投入4年的生命,而对你,却不过只是一座周末度假小屋”卒姆托在瑞士阿尔卑斯山村的一个小工作室里工作,平时也很少主动寻找新的项目,所以和其他知名建筑师相比,他的项目数量少得多。正因如此,他像是一个归隐的圣人,获得了神乎其神的名声。
纯氧:做了这么多优秀住宅的项目,对于住宅设计,你最大的体会是什么?
ERIC:
住宅是偏私人定制化,从案例初期到落地需要每一步都做好,其实是比较复杂的,一个住宅项目需要落地不止是屋主的配合,还需要施工方,现场工人,材料供应方等多方配合,看到住宅落地达到双方满足那种感觉是比较感动和幸福的,认真做好设计达到理想的落地效果,需要不断去坚持,不断去拒绝。
纯氧:设计之外还有什么爱好吗?对你的设计有什么帮助吗?
ERIC:
手绘,大学接触设计的时候是从了解室内手绘开始的,因为作为艺术生,之前最大是爱好就是画画,不能说手绘有多大用处,但是奠定了对设计的坚持和不同的看法。
纯氧:对于设计,最近的小目标是什么?终极的目标是什么?
ERIC:
小目标,最近手上的项目都能很好的落地,对于终极目标来说,其实作为一位父亲来说,更希望家庭和睦,自己工作室能长久的按照自己的想法发展,不忘初心。
纯氧:有什么特别想表达的?可以随意说点什么
ERIC:
那时大学手绘不错,手绘作品也在大学期间火过一段时间,忘记了自己对设计的初心,从大学期间成立自己工作室到解散,到培训班老师,再到纯设计公司,大型家装公司,到现在的自己的工作室,一路上一直不忘记自己对专业的追求,对设计的追求;私宅设计中的每一个屋主追求都会不同,在入行的时间确实比较困难,所以作为一名设计师内心一直要坚持自己的方向,不断去学习、完善自己。
09
纯氧总结
用设计还原家的样子
在朋友圈被这张图吸引,经过一番研究,找到了广州一点设计工作室的创始人Eric吴佳。用设计还原家理想的样子这是吴佳常说的一句话,可以看出他对设计的侧重点。
住宅空间,首先它是一个居住的场所,不管人的数量多少,做好它的基础就是:先成为一个家。家是居住者除了工作通勤之外所有行为发生的场所,它包含了极多的事件和细节。家是一个24小时营业的场所,是人一辈子呆的时间最长的空间。所有这一切,对居住空间的设计者提出了极高的要求。
理想的家,这是家的终极形态。它的基础就是涵盖了上面所说的一切需求,而后,它还体现了居住者的审美,品味,生活的态度等等。
当一个本是以居住实用为主的空间上升为体现主人品味和生活态度的载体的时候,那么这样的空间作品就是成功的。
我们希望越来越多这样优秀的设计师可以站出来,他们或许需要为了生活而放下些许诗和远方,但是,一旦有机会展现对于美的追求,他们从未放弃争取和努力。
更多机构展播
客服
消息
收藏
下载
最近

















































































