查看完整案例


收藏

下载
【项目名称】:山居荣府
【项目地点】:中国·浙江杭州
【项目面积】:2000㎡
【设计公司】:LDH刘道华建筑设计(北京)有限公司
【主创设计】:刘道华、程仟元
【软装设计】:李蕾
【项目摄影】:鲁哈哈
【创意阐述】
迤递三千里,江山一卷横。村庐依古树,烟棹钓深泓。渚断离鸿缈,春残别梦惊。推窗明月出,临岸听涛声。——《题富春山居图》
本案坐落在富春山居图实景地,山水俱佳的杭州富阳,此次设计以富春江白鹭为引,借富春江两岸初秋景色为依托,展卷观景,人随景移,引人入胜。从店面的LOGO形象到软装陈设,都由此统一展开。
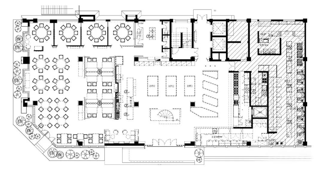
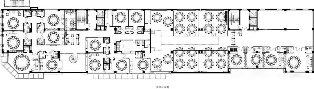
【设计图纸】
【空间简述】
进入门厅区域,映入眼帘的是一副白鹭水戏图,看着他们在水中浮沉游戏,仿佛时间静止,物我两忘。
旁边旋转而上的中国红楼梯,是整个空间一大亮点。
逶迤蜿蜒的造型,连接多元空间的同时,也是冷静素雅的直线条里穿插的超级印象符号。
两侧是吧台与明厨分厅而立。
右手边通透简明的明厨,模糊了厨房与公共区域的边界,简明的色块处理,与精工细作的杭州本帮菜“二轻一清”相呼应。
吧台边上休息区的悬挂式壁炉,为中式意境渲染的空间增加了几分热闹的火气。
台区嵌套了一个通透的“大房子”,以雕窗为元素搭建的木结构将空间自然切割,划分了功能区域也增加了空间层次,透窗而望,远山隐约,徐徐展开。
散台和卡间衔接有序,沉稳简洁调性的山水画色中,更彰显亦柔亦美的杭州富春之味。
散台和卡间之间散落的转折页,采用超薄石材贴片,粗造质感所传达出来的自然肌理反而衬托了主题墙面的细腻雕琢。
端景台的造景考究。
依照富春山景林木葱郁,疏密有致的节奏,山居荣府的配饰搭配上,运用挂画、盆饰等多种元素,还原了近树沉雄,远树含烟的悠远意境。
层次分明,悠然自乐。
二层公共区搭建了一组茶趣场景,延续整体文化意蕴的同时,以禅入茶,怡然自得。
与散台类似“雕梁画栋”的气势不同,更重私密性的包间天花和墙面多以深色调处理,弱化墙面造型,引光入室,将所有的视觉重点聚焦在餐桌这个“主舞台”上。
暖色调的大胆运用,是设计师为“富春山居”阳春白雪质地之上所增加的体验感和舒适度,是餐饮空间与客人之间的重要连结。
依照时间的推演,日光灯光交错,墙面变化的色彩关系隐喻渲染手法的艺术画作。
时
系删除
----------------------------------
:
---------------------------------
客服
消息
收藏
下载
最近



















