查看完整案例


收藏

下载
项目名称:FST.office
项目面积:800平方
设计主创:俞骏
设计单位:广州大凡装饰
项目类型:服装公司办公空间
项目地点:广东省广州市海珠智慧科技园
设计时间:2个月
竣工时间:2021.8月
项目摄影:RICCI 空间摄影
项目文案:夏苏苏
主要材料:微水泥漆、水磨石、饰面板、白洞石、清玻
近两年,疫情所带来的精神繁琐,让人人都想逃离城市的喧嚣,而按部就班的办公环境又该以何种姿态向人们走来?这引发了设计师对办公空间的思考。
△项目外建筑
设计不应单纯停留在视觉上的夸张形式,而更应深入思考空间的结构、场景、环境,赋予空自然、舒适的生命张力。
△空间场景动态图
在打造室内与室外空间的手法上,将室内空间释放出来,模糊室内外的界限,中和了阴影与光明,引入自然、植物与水景。
△空间场景动态图
大面积落地玻璃使得空间视觉最大化向外延伸,用光影、明暗的更替去表达空间的纯粹,用最简单的形式、元素、色彩去塑造空间的气质,突出光影、场景及人与空间的关系。
△空间场景动态图
空间的留白与空间结构美感形成视觉上强烈对比
,
置身之中
,
能够抛却心中的浮躁
,
在日出与日落之中
,
去感受光之交响曲的生命力
,
是设计者的立意之本。
用最简单的材质去塑造空间
,
通过不同材质的对比、肌理
,
突出空间的层次感。
大面积的留白,最大化的将室内外的空间联系起来,若隐若现的光影,让整个空间变得立体而生动,呈现了空间的独特魅力。
重新规划设定的动线,打破原有结构的呆板,将顶面的阳光引入室内,通过光影体现出楼梯结构的美感,使空间更加生动自然,诠释空间带给人独有的体验与感受。
在空间的开与合之间,打破内外之间的界限,注入新的呼吸,呈现优雅的空间氛围,以有限的空间,探寻无限的生命力。
构建治愈宁静的空间状态,让室内与室外自然而然的共存,是设计师对新办公形式的思考,对新的空间生命的启发。
△空间场景动态图
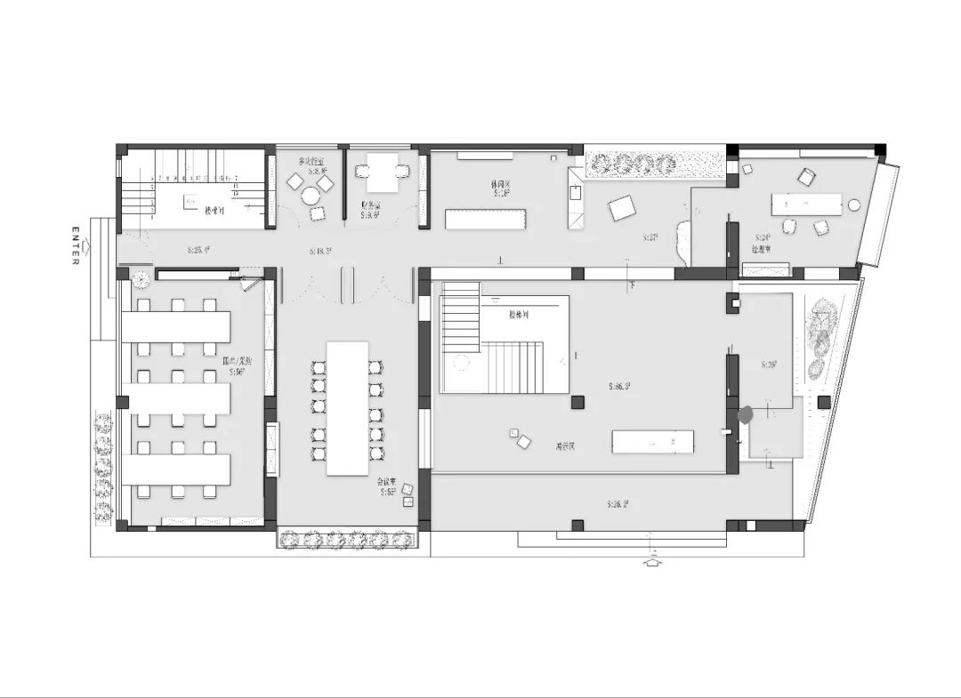
△一楼平面布置图
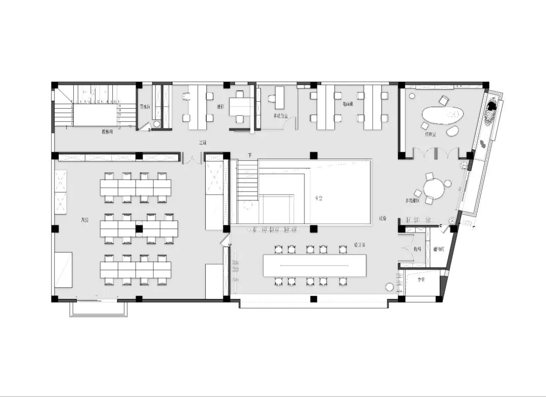
△二楼平面布置图
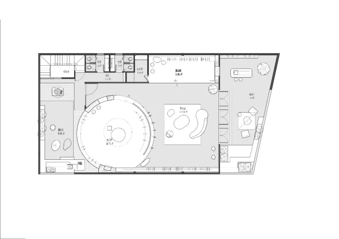
△三楼平面布置图
毕淑敏说
万物皆有裂缝
那是光照进来的地方
引“光”入室
让诗意渗透生活
唤起灵魂奏响曲
客服
消息
收藏
下载
最近










































