查看完整案例

收藏

下载
项目名称:杭州中旅归锦府样板间
项目地址:浙江 杭州
开发商:港中旅地产
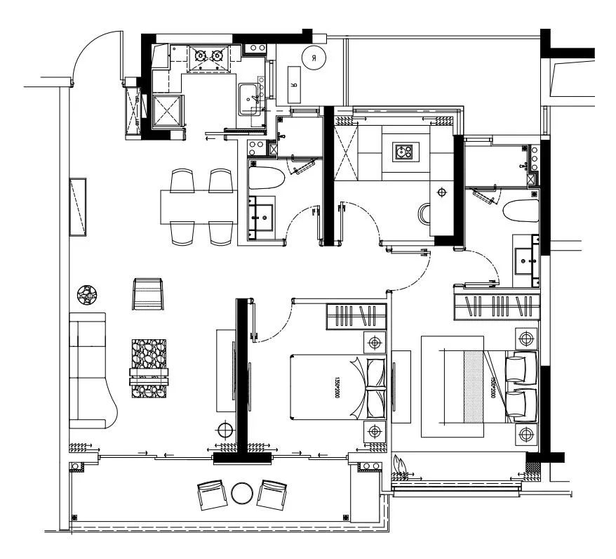
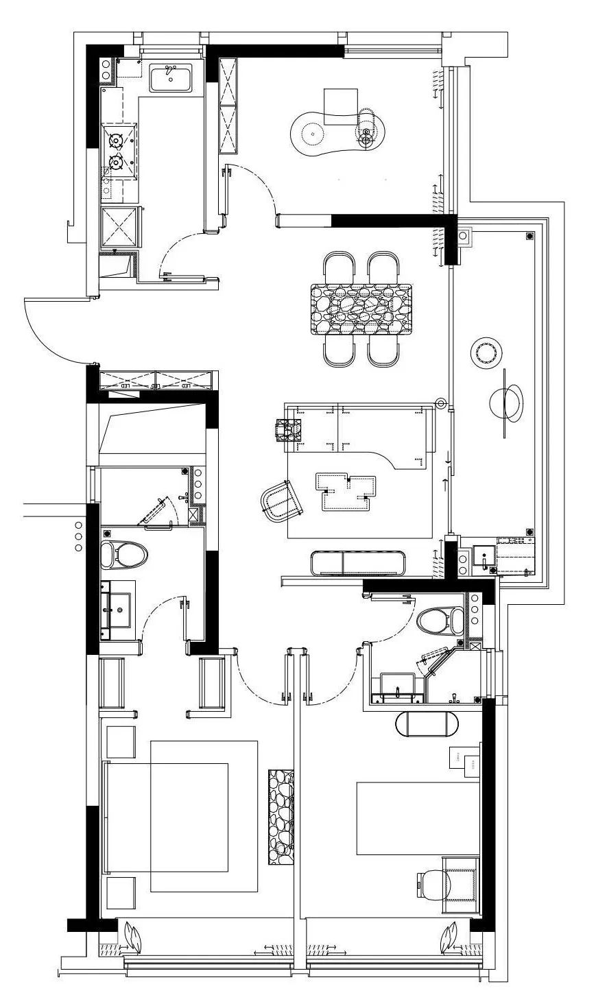
项目面积:A1-97㎡、A2-101㎡
软装设计:树美国内设计中心
项目摄影:陈铭
提到现代简约风格,脑海里一定会闪过“简约而不简单”这几个字。没有过多复杂的设计,看似简单,却强调功能性,色彩对比强烈,线条简约流畅,给人清爽利落、简洁明亮、时尚大气的印象。
01
A1户型—“家的颜色”
我们常常很难回答关于风格的问题。
比起定义一个居室的风格,我们更愿意去描述,住在那里面的,是怎样的人,有着怎样的爱好,经历和
关系。
当你赋予了空间足够鲜活的情绪之后,它会自己说出故事来。这些原始素材的采纳过程,我们称之为生活的加法,取其精华,锤炼每一个细节,最终提炼出最适合的话语方式,来面对个性化和群体共鸣之间的平衡:也就是设计的减法。
我们改变了客厅原对称性布局,重新排布,优化空间动线,用主沙发和大茶几来创造稳定面,产生主次关系和空间节奏。
空间中关于色彩的所有欲望被彻底释放。大面积的红、黑与金属块面大胆地碰撞。材质的细腻柔和包容着色彩的冲突。作为休闲空间,围合相洽却又自由随意的家具,让空间亲密“有间”的同时更具个性,充满层次感。
卧室延续了整体空间的大地棕色,在主卧空间中显得含蓄,静谧。窗外景色正好,树梢头上,鸟儿浅唱,安谧意境莫不静好,给予家的温暖舒适。
02
A2户型—“都市绿洲”
生活在光怪陆离的城市,厌倦了觥筹交错的场合,现代人开始寻求接近自然的生活方式。
我们探索色彩的可能性,将身体感知注入空间,打造一个恬静而舒适的都市绿洲
。
步入室内之际便感受到丝丝绿意,墙面的艺术挂画、单椅、抱枕和饰品之间色彩联动呼应。绿色带来的安全感由表层到感官,感染着居住者的内心,回家便成为大隐隐于市的享受。
客厅作为空间交互的中心,大片落地窗与开阔的阳台,让光线被最大化地保留。扑面而来的绿奠定了空间的清凉感,金属元素以不同形态点缀在家具、灯饰的细节上,空间显得更加清透、明澈。当代都市人追求的绿洲情调随着颜色和材质的晕染,意境全开。
万事万物皆为自然而造,绿色在这个家中承载着如大树般的凝聚力,紧紧地将每个空间连接在一起。让绿意涌动在每一个细节,软装与都市绿洲的理念才得以真正地交织交融。主卧以高品质的床品呈现生活的精致感,家里的每一个人都是空间的一部分,在家放松地做自己,那便是属于自己内心安适的房子。
▼书房 | study
插画、鹦鹉玩偶与图书绘本等有序陈列在儿童房空间中,设计对孩童生活场景与精神世界作以细致的描绘,辅以明亮的色块与线条进行点缀,纯粹简净的日常定格在此间。
用简约明亮的风格,摒弃繁杂的装饰,打造舒适的居家环境。回到家中,卸下工作与生活的压力,放慢快节奏的生活,在日常里享受生活的乐趣。
▼平面图 | Floor plan
A1户型
A2户型
客服
消息
收藏
下载
最近





























