查看完整案例

收藏

下载
这套56㎡的公寓位于台北,屋主已退休,一个人生活。设计师打破原来的两室两厅结构,改为自在舒心的开放式格局,让阳光自在穿梭,注入充沛活力。
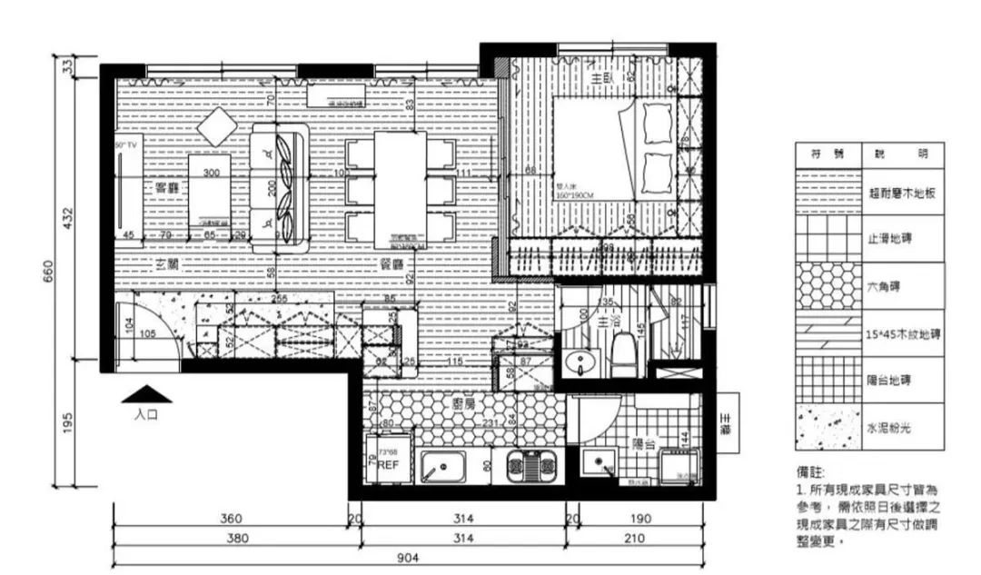
▲ 平面布局图
客餐厅在同一开放式空间,卧室去掉隔墙用移门分隔,打开时全屋通透,拉上移门+窗帘,又有了一个私密的独处空间。
进门沿墙做了整面收纳柜,开放式柜格放常穿的居家鞋,再加上换鞋凳,方便每日进出。
玄关区,选择粗犷的水泥材质,上面镂刻屋主喜爱的诗句,创造只属于自己的美好印记。
融入无印风招牌的纯白+原木材质,再加入有点叛逆的工业元素,让空间的表情有了多层次转折。
电视背景墙以水泥为底,搭配有趣的洞洞板设计,增加一抹童趣,让公共空间的氛围变得生动活泼。
洞洞板不仅是装饰,还能收纳清洁工具,展示屋主喜欢的收藏品。
▲ 沙发一角
斑驳的大梁是划分客餐厅的界线,并于梁下设置晒衣架,俏皮又实用。
餐厅临窗布置,和卧室之间用移门分隔,除了用餐以外,还可以作为书房使用。
早上起床,习惯性泡上一杯咖啡,香气交叠着木纹质感和水泥冷调,轻松营造柔和温馨的氛围。
▲ 餐厅后面是半开放式厨房
转角处的收纳柜,结合煮咖啡的吧台,可以整齐归置小电器和书籍,享受充满咖啡香气的午后时光。
▲ 开放收纳柜+吧台
▲ 半开放式卧室
卧室以磨砂玻璃拉门区隔,让屋主根据自身需求弹性界定空间,白天打开门,保证光线穿透,晚上需要休息时,又可以拉上窗帘,兼顾私密性。
卧室内部也设计了充足收纳,床头和侧面做整面柜体,空间整洁利落。
▲ 移门+窗帘
卫生间选用隐形门,和周围木饰面融为一体。
▲ 自在舒心的退休生活
图片来自:
文仪设计
文章来源:家的要素 jiayaosu
客服
消息
收藏
下载
最近






















