查看完整案例

收藏

下载
Black在法语中叫“Noir”,被译为“黑色”,“Noir”常被用来形容“高级的事物”
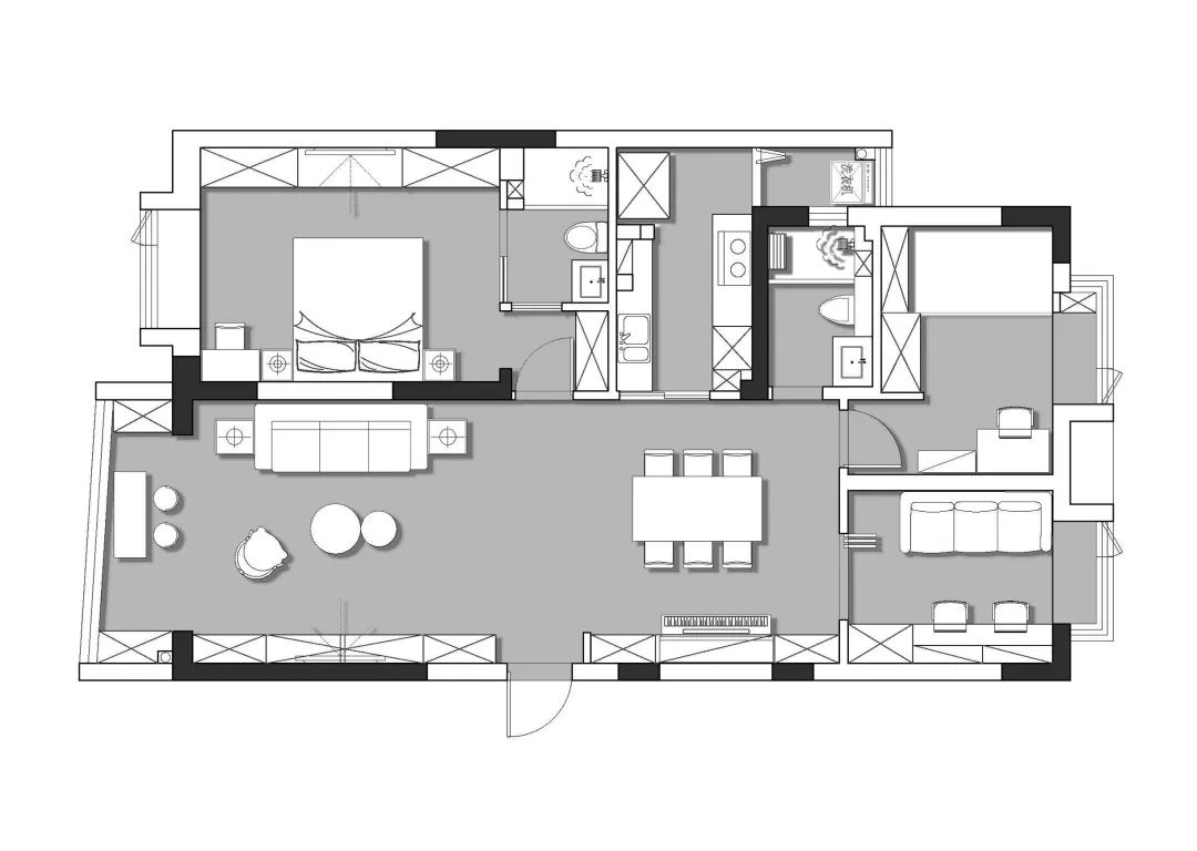
户型分析
原先的房子配上老气的装修风格,让100平做了3室的格局显得十分昏暗,还算方正的原始平面格局下,众多凸出的梁体把空间割的七零八碎。
餐厅空间局促狭小,四周过多的墙体显得沉闷
生活阳台面积较小,功能不能较好的发挥,比较鸡肋
卫生间太小,非常局促压抑
厨房采光不好,储物空间不足
为了实现在相聚时光里互动的最大可能性,被规划为整个家庭的公共社交区域,空间被最大化地打开,另外考量庞大的收纳需求,而重新调整了所有空间的收纳柜体,让动线与收纳更为明确。
客 厅
为了让整体房间氛围和家具干净简洁,不能太拥挤和厚重的感觉。我们将整体空间色调饱和度降低,经过融合或隐藏的区域方式,淳朴的木元素为空间增加了自然气息,来展现出简洁干净的空间。
在背景木饰面我们选用浅棕结合黑色一个搭配法,并用浅灰色沙发点缀,整个空间显得通透明亮,所有色彩都带有灰度,展现一种对沉静自持、舒缓简单的向往,展现了纯粹而定静的本质。
在黑灰空间中,加入木色调作为点缀,是永不过时的设计。为了平衡空间中大范围的灰调,加了点缀的嫩粉色,为冷冷的灰调添加了一丝温和。
餐 厅
餐厅延续黑白棕的选色,强调功能性设计,把高级黑运用在家具配饰上,掩盖了黑色原本的冷酷,线条简约流畅,色彩恬静。
书 房
厨 房
卧 室
卫 生 间
幸福是早晨被阳光唤醒起床刷牙的时候,也是当身体沉入温暖的水浴中被带走一身疲惫的时候。
客服
消息
收藏
下载
最近




























