查看完整案例


收藏

下载
长春汽开区万科公园都会社区体育中心
东入口©方舟
区位和功能
项目位于长春市汽开区东风大街和长兴街的交叉处。长春是北方工业之都的代表,享有“汽车之城”的美誉,“汽开”这一名称因一汽得名。随着城市产业升级和重新规划,原有的工业园区将逐步迎来向城市复合型活力社区的转变。
长春板块分区©图源网络
地块分析
一汽红旗-辉煌的工业年代的记忆©图源网络
此项目是一座服务于周边居民的综合体育中心,包含多功能球馆,健身设施和配套餐饮商业,大小适中的体量为将来周围居民提供一年四季日常健身和休闲场所。我们希望用独特的设计致敬汽开区工业时代的辉煌记忆和新的功能赋予它健康活力的内涵。
正南视角©方舟
西侧入口©方舟
西南视角©方舟
内部空间
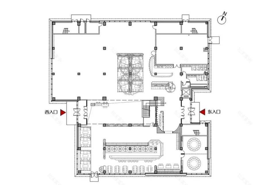
建筑主体为两层,南侧面向城市主干道,西面主入口面向城市公园,东面主入口面向规划中未来的酒店。一层布置服务台和面对主干道的啤酒餐厅、运动酒吧等商业。二层为专业多功能球馆,和围绕球馆的健身房、多功能厅及室外露台。
周边环境与体块形成分析
东入口©方舟
南北向剖面透视图
多功能球馆©方舟
在几个大跨度场馆之间是一个贯穿连接东西两个入口的双层采光中庭。中庭是内部空间的中心内核,组织平面和剖面功能的同时把自然光引入建筑中心,在各层功能之间形成视线的互通,并在一端布置竖向交通。功能体块在东西两侧局部的体型进退,结合中庭的双层高玻璃幕墙自然形成东西主入口的标示性。
双层采光中庭中的竖向交通©方舟
立面设计
建筑立面表达的内容由内部空间功能和环境时代背景共同赋予。建筑内部空间虽然主体只有两层,但基于功能要求跨度和净高都较大。外立面的设计希望既有体育建筑本身的力量感,又能够体现友好的近人尺度和生动的细节。同时,不同功能的采光需求在外墙上通过玻璃幕墙和可变换角度的铝板遮阳来满足。
东侧主入口©方舟
西侧悬挑局部立面©方舟
南立面近景©方舟
独特的环境和时代赋予建筑立面的特有气质。金属/精工/绿色/智能,是贯穿立面风格的四个关键词。
为了回应汽车之城的精工传统,外立面采用了阳极氧化铝板和梭型铝百叶,结合精致的细节,局部带型 LED,以及梭型百叶的角度变化结合灯光效果,呈现出一种未来工业美感和流动的速度感,既是对汽车城的致敬,也是对内部运动功能的展现。
而在入口周围外墙和室外露台处使用了整面的木挂板及木色格栅,自然温暖的颜色质感与强烈工业感的阳极氧化铝板玻璃幕墙形成强对比,结合室内的灯光,使入口在寒冷季节也可以让人感觉到温暖亲切,和锻炼带来的充沛能量。
立面意向图
墙身透视图
墙身透视图 2
东南视角©方舟
西南入口悬挑©方舟
这座充满金属感又不失温暖的建筑外皮包裹的体育中心是区域城市功能转化过程中的第一座建筑,希望从它身上能够看到上一个时代留下来的精工精神,和未来活力、健康、绿色生活的展现,成为汽开区城市发展节点上的生动注脚。
西南视角©方舟
东南视角
©方舟
技术图纸
立面手绘图
立面手绘图
南立面效果图
健身房©方舟
采光中庭©方舟
总图(未来规划)
首层平面图
二层平面图
长春
汽开万科公园都会体育中心
地点:长春汽开区
总建筑面积:4252.3 平方米
建筑设计:北京盛哲建筑设计
主创建筑师:王哲
设计团队:田欣 尚子敬 康宁 刘敬一
室内设计:北京界面空间
景观设计:派澜景观
幕墙施工图:北京东方华脉工程设计有限公司
建筑施工图设计:北京新纪元建筑工程有限公司长春分公司
摄影:方舟
设计时间:2021.07~2021.10
建设完成时间:2021.11
客服
消息
收藏
下载
最近
































