查看完整案例


收藏

下载
©Jumpei Suzuki
循环中的建筑。一般建筑公司 Asanuma corporation 正在推广“GOOD CYCLE BUILDING”,这是一个将 30 年历史的建筑改造成环境友好型建筑的项目,作为该项目的第一个旗舰。现有的建筑框架被利用和修改,以增加对自然光和风的可及性,并尽可能地使用土和木头等自然材料增加新材料,使建筑使用者能够参与到建筑和维护中。
Jumpei Suzuki
Jumpei Suzuki
Jumpei Suzuki
在工作区的楼层,现有的窗户向后退,改变了窗户的开合形式,增加了屋檐,并对核心区进行规划,以确保所有办公区有足够的日光和通风,并适当控制太阳辐射。在一楼和二楼,东西方向的楼板被拆除,以形成一个楼梯间,并增加了一个带有顶灯的楼梯间,即使在被建筑物包围的黑暗环境中,也能创造出一个开放和明亮的入口和休息室。在七楼和八楼,周围是开放的,南侧中央的板块被拆除,形成一个会议室和大厅,可以充分享受来自天空的光线。
Jumpei Suzuki
▲详图
Jumpei Suzuki 建筑内外的地板、墙壁、天花板和家具都使用了各种土壤材料。在原材料方面,我们使用了浅沼在爱知县的其他场地的剩余土壤。通过让用户参与用土抹墙,他们熟悉了这个机制,并对它产生了感情,能够自己进行维护。此外,决定只有在许多业余爱好者,而不是工匠,参与到这个过程中,例如用手指做记号或投掷土壤,才有可能实现这种修饰方法,从而通过人的动作“自然”地表达墙体。
Jumpei Suzuki
土墙中不添加任何杂质(近年来,为了提高耐用性,经常添加石油衍生的材料和水泥),以便将来可以作为重绘的材料重复使用,最终回归大地。杉木(日本杉木)来自奈良的吉野森林,浅沼公司与该森林有着长期的关系,并以可持续的方式进行管理,它被用于建筑的内部和外部,以及配件和家具。
Jumpei Suzuki
Jumpei Suzuki 前面的立面是由来自一棵杉树的最大直径的吉野杉原木制成的,这些原木在到达高层时变得越来越小。这样做的目的是让观众体验树木自然站立的样子,并尽量减少产生的废旧木材,最大限度地提高干燥后未来使用的潜力。此外,我们还打算将产生的废旧木材数量降到最低,并最大限度地提高干燥后未来使用的可能性。
Jumpei Suzuki 仍然产生的废木料将被积累起来,用于制作家具和产品,使人们能够享受到红柏的香味。在现有建筑中使用的石头和其他材料,如果能够被干净地移除,则被重新用作室内表面材料,而其他材料则被粉碎成小块,用石膏硬化后用作家具的表面材料。
Jumpei Suzuki
Jumpei Suzuki
Jumpei Suzuki
我们还将现有的家具与废旧塑料片制成的表面材料结合起来,这些塑料片经过粉碎和加热硬化,用塑料瓶废料制成的再生聚酯纱线制成的针织品包裹现有的家具(没有使用缝纫,以避免产生废品),并用再生聚酯纺织品制成窗帘。我们还试图利用城市垃圾作为一种资源。
Jumpei Suzuki 建筑是材料流动的一个中转站,具有“材料存放处”的一面。为了使材料能够被循环利用并继续使用,在使用天然材料时,必须将其与人工材料分开,这样才能最大限度地提高后续使用的可能性,并最终将其送回地球。
Jumpei Suzuki
至于人造材料,有必要充分利用现有材料的特点,通过加工将其转化为新材料。这个项目试图将建筑作为城市中这种新材料流动的关键因素进行重建,并通过创造一个与光、风、土壤、树木和植物的变化相联系的令人愉悦的环境,将建筑重新置于对人和地球有益的循环中。
Jumpei Suzuki
Jumpei Suzuki
Jumpei Suzuki
Jumpei Suzuki
Jumpei Suzuki
Jumpei Suzuki
Jumpei Suzuki
Jumpei Suzuki
Jumpei Suzuki
Jumpei Suzuki
Jumpei Suzuki
Jumpei Suzuki
Jumpei Suzuki
Jumpei Suzuki
Jumpei Suzuki
Jumpei Suzuki
Jumpei Suzuki
Jumpei Suzuki
Jumpei Suzuki
项目图纸
▲区位图
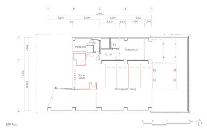
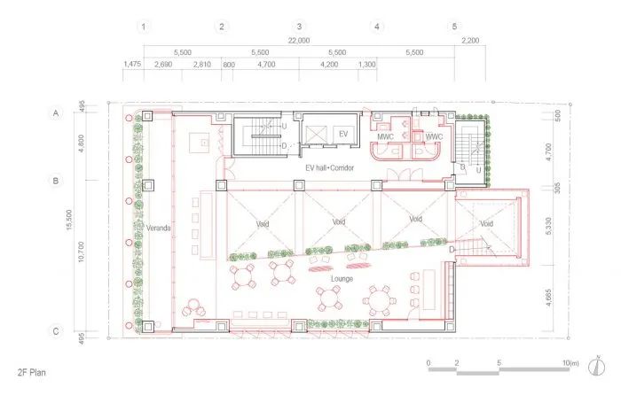
▲平面图
▲平面图
▲平面图
▲平面图
▲平面图
▲平面图
▲平面图
▲平面图
▲平面图
▲细部平面图
▲分析图
项目信息
建筑师:Asanuma Corporation, Nori Architects
面积:2781 m²
年份:2021 年
照片:Jumpei Suzuki
制造商:Asanuma Technical Research Institute, HiLaRi
结构工程师:ASANUMA CORPORATION
总承包商:ASANUMA CORPORATION
照明设计师:CHIPS LLC.
设计团队:Norihisa Kawashima, Takuro Kunitomo, Shohei Takeuchi, Yuki Ishibashi, Kiyoshi Hasegawa, Saya Okazaki, Kazuaki Nakamura, Naoko Itemadani, Katsuya Mizuno
家具设计师:TAKT PROJECT inc., Studio Yumakano, Nori Architects, TAKT PROJECT inc., Studio Yumakano, Nori Architects.
纺织品设计师:YukiTsutsumi,YukiTsutsumi
标识设计师:StudyandDesign+6kai
城市:爱知县
国家:日本
客服
消息
收藏
下载
最近


















































