查看完整案例


收藏

下载
©Andreas Widi
QubRooms 是一家拥有 10 间客房的酒店,位于印度尼西亚三宝垄中心的密集商业区。该建筑曾经是一个平凡的 3 层楼的店面,现在被改造成一个工业化但别致的结构,其独特的外墙由多个大小不一的开口组成,用黑色的钢筋填充,在 90 年代的白色瓷砖和蓝色玻璃外墙中形成一个意想不到的景象。与城市的结构相适应,不同大小的四边形开口衔接在外墙上,旨在模糊外墙后面的实际楼层的视觉理解,从而提高建筑的规模。
Andreas Widi
Andreas Widi
Andreas Widi 现有的结构被尽可能地重新利用,以便在适应新功能的同时可持续地重新使用该建筑。旧的干墙天花板、墙壁和现有的楼梯都被从建筑中剥离出来,以使酒店的可用空间最大化。酒店的室内设计是一种单调的新元素的游戏,如房间的白色弧形外墙和粗糙的黑色砖墙作为每个酒店房间的背景。它们与裸露的混凝土天花板的粗糙感并列,天花板上的电线管网络俏皮地贯穿了酒店的房间和走廊。
Andreas Widi
平面图
Andreas Widi
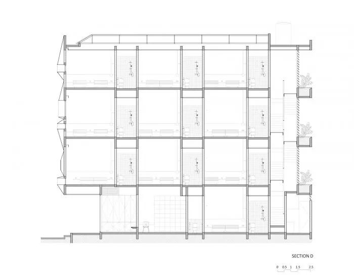
大堂、酒店房间和走廊的设计中加入了线条流畅的钢条照明,以创造酒店的精致感和复杂性。楼梯完全由穿孔的钢板制成,所以它允许空气通过空隙。上下楼梯的运动可以通过其透明度看到,这进一步使公共空间更加活跃和动态。酒店的走廊也被允许呼吸,这是因为在酒店的前部和后部使用了百叶窗,从而使整个建筑的交叉通风成为可能。
Andreas Widi 在后面的百叶窗后面,种植了茂密的热带绿色植物,以减少城市中空气和噪音污染的影响,并在创造新鲜空气进入酒店的同时减少热增益。QubRooms 挑战了三宝垄市许多角落里常见的 3 层楼店面的类型。在典型的宽度和高度限制下,功能的转变能够利用特定的材料和建筑形式形成一个更有趣的商业立面衔接,同时丰富城市体验。
Andreas Widi
Andreas Widi
Andreas Widi
Andreas Widi
Andreas Widi
Andreas Widi
Andreas Widi
Andreas Widi
Andreas Widi
Andreas Widi
项目图纸
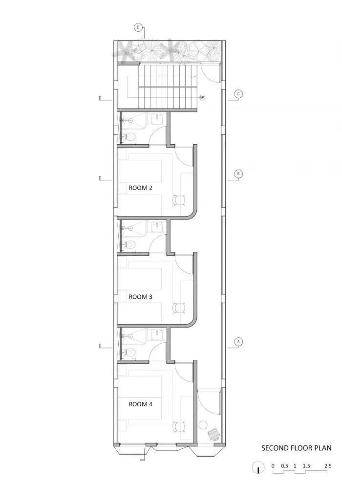
平面图
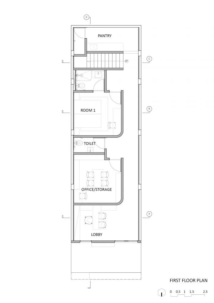
平面图
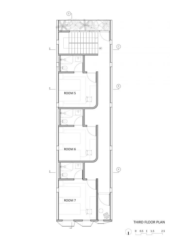
平面图
屋顶平面图
剖面图
剖面图
剖面图
剖面图
正立图
透视图
透视图
▲分解图
项目信息
建筑师:Tamara Wibowo Architects
面积:360 m²
年份:2021 年
照片:Andreas Widi
制造商:Inlite, Toto, Ariston, Dekson, Deluns, HIK VISION, Phillips, Taco, Tegel Panjen, Venus Tiles
首席建筑师:Berda Karendra Putra
室内设计:Tamara Wibowo Architects
照明设计:Tamara Wibowo Architects
钢结构承包商:Bellagio Steel
首席建筑师:Tamara Wibowo
初级建筑师:Claudia Kondoy
总承包商:Anugerah Karya Perkasa, Gien Suhadi
暖通顾问:PT. Tiga Kurnia Sukses Makmur Abadi
城市:Kecamatan Semarang Selatan
国家:印度尼西亚
客服
消息
收藏
下载
最近
































