查看完整案例

收藏

下载
Greenwich Grind 是一家悠闲的咖啡和鸡尾酒餐厅,位于历史悠久的格林威治,靠近著名的格林威治市场。这是由墨尔本创意工作室Biasol为Grind 设计的第12个项目 ,也是该品牌首次在伦敦1区以外的地方开展其独特的产品。
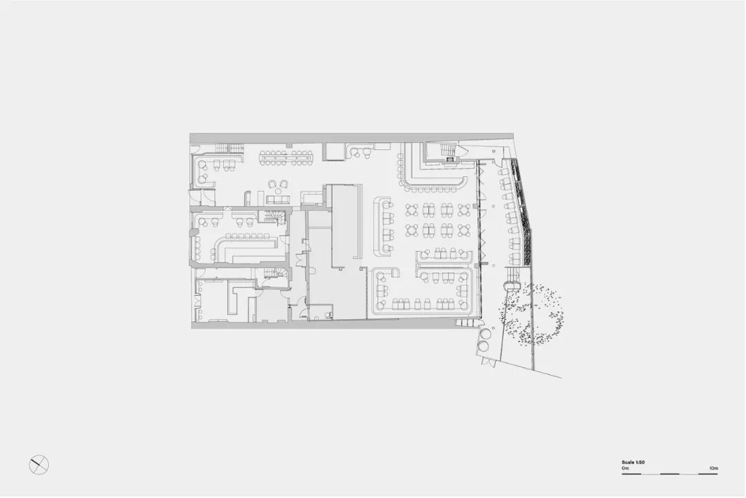
“当代色彩和细节为传统建筑注入了Grind的精髓,为其独特的音乐,设计,咖啡,美食和鸡尾酒组合而设。Greenwich Grind旨在发挥影响力,将市中心的Grind体验带到悠闲的伦敦郊区,吸引当地人和游客。该场地是Grind的第12个项目,也是迄今为止规模最大,最具挑战性的场地。Greenwich Grind餐厅位于着名的格林威治市场(Greenwich Market)对面,坐落在一栋漂亮的历史保护建筑内,曾是Jamie意大利餐厅的所在地。为了创造一个同样声誉良好的新场地,我们删除了以前餐厅的所有痕迹,保持结构的完整。场地分为三个空间 – 熟食店/外卖店,鸡尾酒吧和餐厅 – 每个空间都有简单的动线。这些区域独立或共同运作,每个区域都具有独特但互补的美学,以实现Grind的整体体验。熟食店/外卖店有自己的入口。供应早餐和午餐,这是一个有趣,大胆的空间,墙壁和天花板上有Grind标志性的粉红色。Green Room是一间温馨的鸡尾酒吧,深蓝绿色的背景和酒吧和窗户周围的优雅凳子。浅粉色长椅环绕餐厅的正面,为酒吧和餐厅的客人提供休息室座位。餐厅全天候营业,设有各种座位,包括公共桌子,餐桌和长椅。主餐厅可通往露天用餐区,拥有玻璃中庭屋顶,丰富的绿色植物营造出温室般的空间,唤起绿树成荫的格林威治区。建筑的砖墙提供了纹理,混凝土墙和微妙的仿旧饰面也是如此。材料,颜色和细节设计简单而自信,标志性的粉红色霓虹灯标志,磨砂大理石桌面和黑白拼花地板。Greenwich Grind正在重新定义伦敦的餐饮社交场景。全天候的日常目的地为满足不同的消费者。 “Biasol说道。
Location: Greenwich – London, United Kingdom
Size: 4,900 square feet
Design:
Biasol
Photos: Handover
客服
消息
收藏
下载
最近





















