查看完整案例


收藏

下载
©Satoshi Shigeta
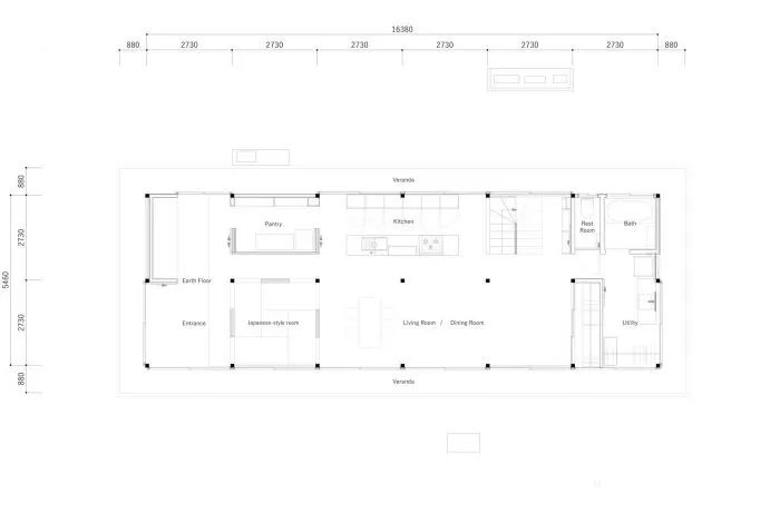
该场地位于山梨县山梨市的北部,被葡萄园包围,可以看到甲府盆地和富士山的全景。该建筑位于场地的一角,总面积为920平方米,包括470平方米的建筑面积和450平方米的葡萄园面积。这是一座两层的木制建筑,总面积为123平方米,建筑面积为92平方米。
Satoshi Shigeta
Satoshi Shigeta
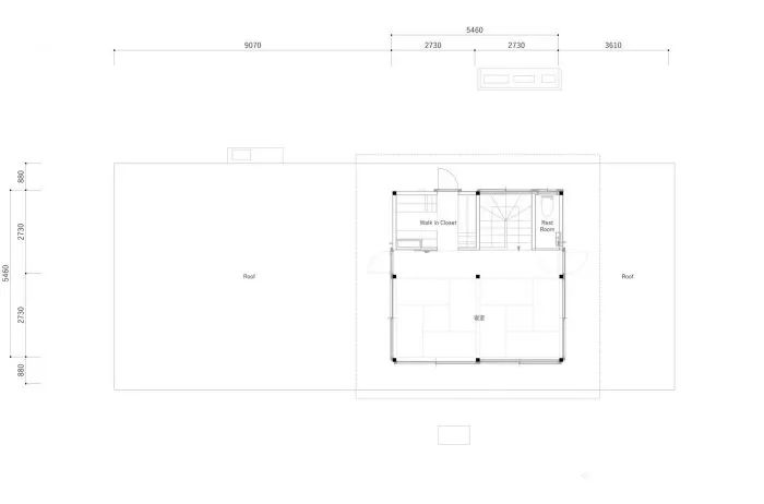
平面图
Satoshi Shigeta
业主是一个四口之家,一对30岁的夫妇和两个3岁和1岁的孩子。建筑建成后,移交给了这个家庭,他们的生活也随之开始。这个建筑是一个可以随着家庭的成长而改变的容器。该建筑的规划是为了能够围绕灵活的配置而发展。
Satoshi Shigeta
平面图以2730毫米的网格为基础,整个结构由木柱和木梁组成。随着家庭生活周期的变化,房间的配置和物体的位置都可以改变。这种网格允许更新墙壁和配件。
Satoshi Shigeta
立面图
Satoshi Shigeta
虽然这在传统的日本建筑中很常见,但我认为这种结构非常适用于现代生活的变化和速度。建筑物的形状和外部的设计被设计得很简单,同时也没有忘记主要演员是居住在那里的家庭。建筑物的形状和外观设计很简单,牢记主要角色是住在那里的家庭,重视在那里发生的生活流。
Satoshi Shigeta
Satoshi Shigeta
Satoshi Shigeta
Satoshi Shigeta
Satoshi Shigeta
Satoshi Shigeta
Satoshi Shigeta
Satoshi Shigeta
Satoshi Shigeta
Satoshi Shigeta
Satoshi Shigeta
项目图纸
平面图
剖面图
▲剖面图
项目信息
建筑师:SAKUMAESHIMA
面积:92 m²
年份:2021年
照片:Satoshi Shigeta
制造商:IOC, Lonseal Corporation, Nagoya Mosaic-Tile
施工单位:Kubota Archtek
城市:山梨县
国家:日本
客服
消息
收藏
下载
最近

























