查看完整案例


收藏

下载
住宅的基因取决于人的经验反馈,在此案中,设计师唐忠汉打破设计住宅的传统思维,顺应原有基地的条件,重新转化了一般机能空间的设定,通过新定义的空间还原生活的样貌。
设计师将入户大门设定在二层,原本昏暗的地下室因基地的高低差打造,自然光线能直接进入地下空间。家人共同生活的公领域被设计在地下一层,户外的自然延伸拉进室内。
设计师利用量体的切割将空间机能区分成起居室以及吧台区,不同层面的穿透镂空,让空间的视觉感受被放大并得以提升。
吧台的设计亮点是机能结合空间美学,不同材质的搭接与切割,在提升视觉冲击的同时,也满足了使用上的需求。
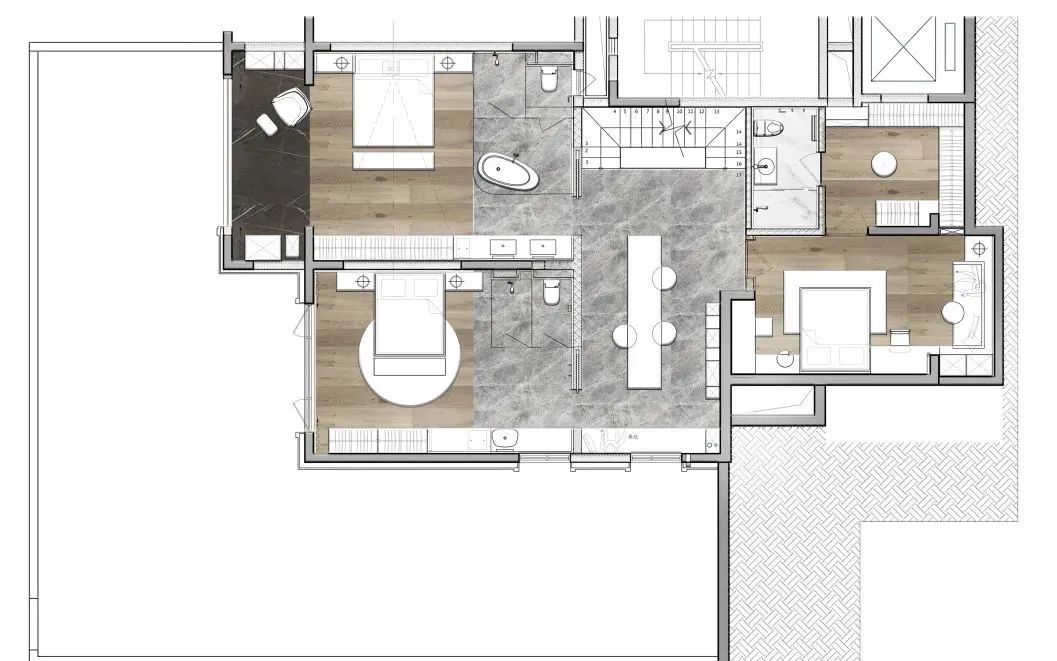
三间卧室之间配置家庭房,以此做为私领域之间的连接,使每个家庭成员回房间之前都能与家人相处,共享天伦之乐,或者在此相互陪伴,共享片刻安宁。
中厨设置在二楼,最靠近入户的区域,回到家,进门的瞬间便可看到美味佳肴正准备上桌,设计师希望家人之间情感您能因此更凝聚。
不同于以往的配置,设计师将卧室定于下迭户型的一楼,每一个房间都是套房的设定,为增加使用空间,特意减去实墙,突破环境给予的条件限制,更有效利用每一寸空间。
负一层平面图- 117㎡
一层平面图-137.8㎡
二层平面图-117.3㎡
客服
消息
收藏
下载
最近



























