查看完整案例


收藏

下载
《灵璧张氏园亭记》中关于出仕与归隐的论述是绝妙的。“开门而出仕,则跬步市朝之上;闭门而归隐,则俯仰山林之下。于以养生治性,行义求志,无适而不可。”一宅圈出一隅宁静天地,园门开合之间即可完成出仕与归隐的转换。——苏轼(宋)
宋代的美学思潮富有色彩感,具有鲜明的流变性,氤氲着浓郁的文化和书卷气息,以此成为中国美学的标准范式。
现代隐居应该是隐于宅的。一家一世界。住宅即是家,家永远是最可以让我们停下来休息,放松自己,回归本我的地方。对于家的设计也必须要超越“宜居”、“乐居”的概念,进阶到“隐居”的生活境界。
从光影变化中表现建筑之美,在空间的一收一放之间,营造出建筑物特有的个性,并且採极简的设计手法,运用中庸的极致思想结合生活在建筑中的家庭成员诉求,让建筑成为细细品味的故事。正如陈寅恪先生所言:“华夏民族之文化,历数千载之演进,造极于赵宋之世。”中国本土的思想传统里面,艺术与生活,创造与欣赏从来都是内在融通的,一定意义上,中国古典美学就是一种活生生的生活美学,而宋的极简风格,又能和当代艺术精神相契合。
人与人、物与物之间的“和”潜移默化转换在空间当中,以当代的、加入东方韵味的表达,简化繁复,一幅幅画、一个个空间的主题,便建立起了古今的联系以及对未来的思考。
无论是古今艺术的碰撞,还是中正礼序与自由开放的对比,无一不需要把握其中的平衡点,少一分则不及,多一分则繁复。
其精神意识境界就有如“大音希声,大象无形”,是无声之乐、无为而无不为的哲学思想,以一种无形的力量诠释着空间的和谐。
空间语言是一种体验性的感受,而情绪则是它的精神特质,通过色彩、纹理、家具、配饰、光线等方式加以表现,便成为最为独特的艺术。
室内空间旋转楼梯围绕着《清明上河图》来展开设计,作为空间的主体设计脉络,从一层到三层的楼梯宛如盘龙直冲云霄有腾云驾雾的气势,《清明上河图》是以宋徽宗赵佶时代为背景,它堪称北宋社会的“百科全书”,街道交错纵横,民居鳞次栉比,商铺百肆杂陈,商旅云集,车水马龙,徐徐展开了一副12世纪初北宋都城汴梁清明时节繁盛的市井风俗画。
设计师擅于将主观的生命情调与客观的自然、日常进行交融,让情与景互渗相映,因而发掘出一层比一层更简美的场景,映射出一层比一层更深更亲切的情。整体空间布局皆依据逻辑关系,一是功能的方便,二是家庭成员的各种生活习惯都有合适的所在,不动声色地调动每个家庭成员的情感并更和谐地共处。方案内所用材质和色调,通过对业主的性格喜好分析,来展开具体的量身设计,客厅简单而不简约得造型让空间显得更加硬朗而有力量感,整套房子内无论家具选用还是局部点缀绿植和装饰品都让房子变得更有生机,客厅空间落地窗造型,使客厅引入更多的自然光,增加客厅和室外园林的互动性。功能分区根据建筑结构与自然的链接,使空间关系更为和谐,将原有建筑内部各功能进行拆分重组,反复推敲,更像是若干个建筑细胞的集合体;由此让空间更加灵动,得到良好的通风和采光同时与室外空间与自然更和谐共生。
01.
留白之美
客厅家具选用卢志荣经典系列,高级米咖色系加上蓝绿色艺术品点缀空间,让空间简洁之余富有美学张力,旋转楼梯利用石材和木饰面的碰撞用独特的手法与工艺相结合加上起伏的琉璃鹤尾造型艺术装置灯,展现出空间灵动性和韵律感。背景巨幅山水墨画彰显东方韵味的艺术气息,点亮整个空间,又不过分跳跃。
▲B1会客厅
会客厅空间采用留白的手法,灵感源自北宋范宽《溪山行旅图》,主体大画部分为巍峨高耸的山体,高山仰止,壮气夺人,寓意寄情山水的写意生活;挑高的空间带来震撼的视觉感受,会客厅空间的顶部由细密的木条覆盖了整个天花,体现出传统的东方建筑风格。暖灰调的石材、深啡色的木作和古铜材质形成丰富的色彩和质感。顶部垂落的琉璃鹤尾,仿若夏花般绚烂,让气氛变得热烈,气息变得欢快愉悦。
九米高的挑空客厅空间大气蓬勃,顺着踏步缓缓而下,墙面大面积素色硬包错落拼接,清新淡雅,低调而不失内涵。转折的木质格栅融入东方的建筑属性,仿佛天地之间融会贯通。吊顶垂下的鹤尾艺术灯高低错落,飞鹤盘旋,鸱尾之上。使整个空间的气场达到了一个高峰,设计师想借此表达主人对归隐田园、松鹤延年的向往。
▲B1红酒区
穿过两扇玻璃饰面天地轴的大门,仿佛进入了另一个空间。有一种峰回路转的感觉。整个空间刚毅硬朗,体现了主人的品味与调性。泳池蓝色的马赛克给整个空间增添了活跃的气氛。此空间的亮点是费劲周折才得以实现的五个采光天窗,把天光引入室内使空间马上多了了一份灵动,加强光线在空间中的流动,日光倾泻在清透的水面上,光影在室内多了层温柔滤镜。
泳池休息区墙面满布的绿植仿佛使人与大自然有了一个亲密的接触。阳光、绿植,可见设计师的用心良苦。简明的体块感结构配合暖调的铁刀木饰面体现了空间的简洁和张力。火烧水洗面的黑色石材与毛石搭配庄重而神秘,整体材质统一且考虑到时间的流逝后历久旎新。
▲B1泳池
▲泳池休息区
▲B1SPA
整个空间以“减法”思考。除了延续空间的几何运用,在家具的选择上,也以素雅的方式点缀出所在地的特色,并将艺术品的重点带出,希望传达出一种态度:即便是在喧嚣的都市中,也能感受到一种“静谧”的生活美学。
▲B1家庭影院
02.
转折之势
空间以中庸极致主义风格贯穿始终。转折与空间递进是一层设计的精妙所在,门厅地面的石材拼花、现代中式风格的木质格栅屏风、应用的都恰到好处,处处流入出设计师对传统文化的情有独钟。
▲一层玄关
走过门厅走廊,贯穿每层空间的旋转楼梯是整个空间的中心,也是设计的一个亮点。在踏步暗藏灯带的引导下,踩在白色石材的台阶,仿佛踏上了白色祥云,扶摇而上。环顾侧面的绢丝清明上河图,宏伟的建筑,热闹的市井,人物活灵活现。北宋盛景尽收眼底。仿佛叙说着一段历史延绵不断。
▲一层门厅
餐厅均分的宋代山水屏风不仅让仪式感更加饱满,而且间隔出私密的用餐空间,安静雅致,古意盎然。设计师在处理空间和细节时,将多种传统艺术手法交织在一起,留白与浓墨,写意与工笔,自然与人工等,从而营造出不同的感官体验。建筑与空间是彼此渗透的整体。
一层中餐厅
▲一层早餐厅
▲一层客卧室
03.返朴归真
大面积采用了烟熏哑光铁刀木饰面和素色硬包,简约大气以及中式的留白。使主人在以后的生活阅历中增添自己喜好的收藏和经历、别有一番情趣。主人房尽显沉稳大气之势,整体木色浅灰的色调,当中以蓝色为点缀,彰显干练的同时,又不失宁静的氛围,让主人在繁忙的工作中能够享受生活。
二层主
▲二层书房
二层主卫
儿童区:曲线型装饰柜,蘑菇城堡,城堡一直是儿童心中最神奇的世界,是他们冒险和幻想的源泉。打造小孩子的乐园,灯可以通过遥控器进行控制,可以选择适合的灯光颜色强度和照明效果。
男孩房:已亲近自然拥抱星空为主题,激发孩子的好奇心和创造力。绘本、童话书、玩偶、积木玩具等有条不紊地摆放在饱含童趣的书架上,日常生活的场景时刻在空间中发生着,发酵着,这是真实的印记与味道。设计的过程,像是在仔细筛选最适当的语言,营造出空间的童趣。
▲二层男孩房
▲儿童房卫生间
04.
光与影
三层走廊尽头圆形的聚厅,寓意四平八稳八方来财的设计理念同时在主人转折与停留的一刹那能够感受到自然带来的强大能量作为加持。榫卯结构的原创门拉手内嵌麒麟玉石材,寓意为金玉满堂,麒麟为吉祥之意,体现了主人的品味与地位。走廊拱形的顶面增强空间的庄严感。
▲三层走廊
主卫设计运用素白石材,圆形顶面张拉膜的运用,诠释人造光下的沐浴场景,让主人真正意义上的成为空间的主角。
由于空间的顶面结构菱角错综复杂,设计师在设计之初结合主人的想法,增加了收纳与整理区域,索性根据建筑条件新建了一层阁楼区域用来作为储藏衣物的区域,新开了顶面的采光窗,阳光洒下天窗的一刹那,整个空间接受了自然的洗礼。
主卧室以开放自由的方式处理,采用半透明的材料分隔,形成格而不透影影绰绰的自然风。床头巨幅背景机喷手工画是整个空间的亮点,是清明上河图的延续,是画龙点睛锦上添花之落笔。
三层主卧室
三层主卧走廊
▲三层主卫
主人爱书画收藏,故而书房书柜采用了《瑞鹤图》作为背景。描绘了鹤群盘旋于宫殿之上的壮观景象,绘画技法精妙,图中群鹤如云似雾,姿态百变,各具特色。《瑞鹤图》绘彩云缭绕之汴梁宣德门,上空飞鹤盘旋,鸱尾之上,有两鹤驻立,互相呼应。画面仅见宫门脊梁部分,突出群鹤翔集,庄严肃穆中透出神秘吉祥之气氛。
▲三层书房
《瑞鹤图》,其不仅具神性的光辉与君主的华贵,也有仙音袅袅、高雅灵动之感。一方面,皇宫殿宇端端正正置于画面下方,均衡对称,留出三分之二湛蓝天空,正大光远,大气天成,颇具皇家风范。围绕殿宇的祥云打破屋宇水平线,稳重端庄的画面于是气韵流转,一派天趣。另一方面,仙鹤有表明志向高洁、品德高尚之意。停留在屋顶上的两只仙鹤,袅袅婷婷,以静寓动,与空中缭绕的鹤群相呼应,款款生姿。整个画面又多了一分高洁隽雅、飘逸灵秀之气。
宋代米芾《西园雅集图记》更是有一句“水石潺湲,风竹相吞,炉烟方袅,草木自馨,人间清旷之乐,不过于此”,能玩出“炉烟方袅”的种种情趣。
▲园林茶亭
园林设计用传统的儒释道文化作为基础底蕴设计师加入了东方当代设计手法,庭院吸取儒家的中庸,道家的一生二二生三三生万物,佛家的空和静,中正与平稳,东高西低非富即贵是设计的中心理论,四面环水的茶亭屹立东方,四平八稳的火塘与休闲区高低错落相得益彰,林间微风更加强了这一景观的宁谧之感与戏剧张力。
▲园林水景
庭院的建造者使用黑色石材铺就了通往庭院另一侧的小径,将庭院各处曲折相连。观赏四周成行栽种的树木与绿植。
到了傍晚当灯光亮起配上远处的日落,光影变化中建筑美轮美奂,在空间的一收一放之间,营造出园林特有的个性,并且极简的设计手法,大量运用低调的色系的建筑材料,让园林在一系列高大奢华的建筑群体中讲述着自己的故事,慢下来细细品味。有别与传统印象——简约、和谐、以及与自然的相融使得庭院具有很高的辨识度其亮点无疑是文化与自然的融合。
园林水景影壁采用内外流水刚柔并济的设计手法,将传统榫卯演变成当代元素进行实践,将山水自然体现的淋漓尽致。
△一层平面图
△二层平面图
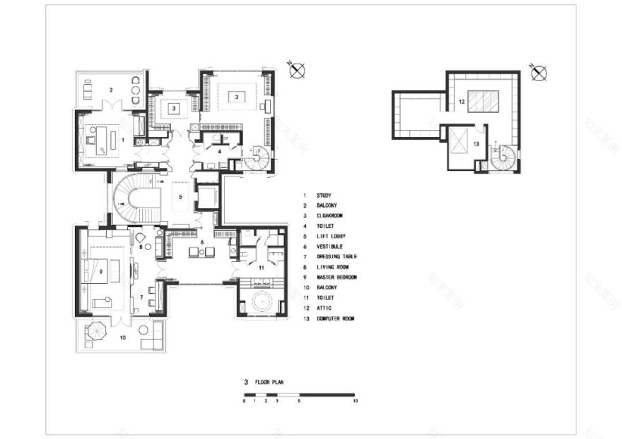
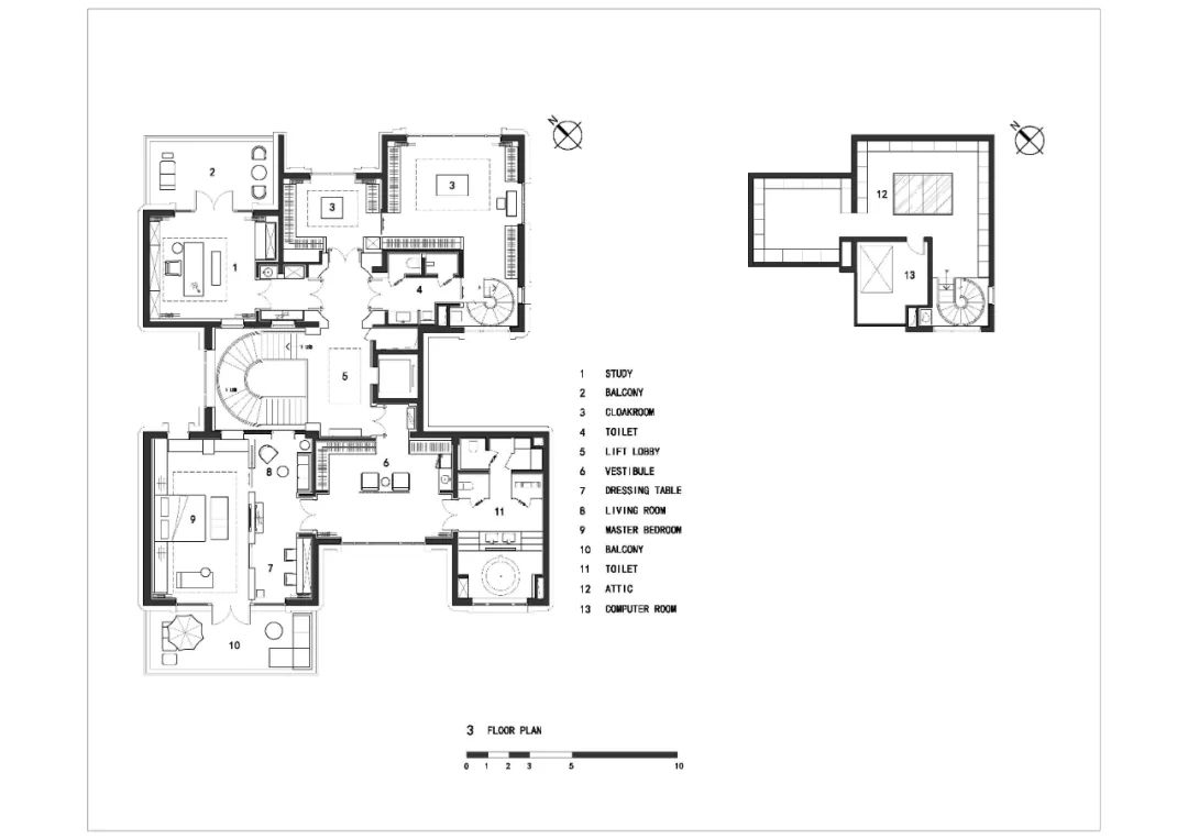
△三层及阁楼平面图
△B1及园林平面图
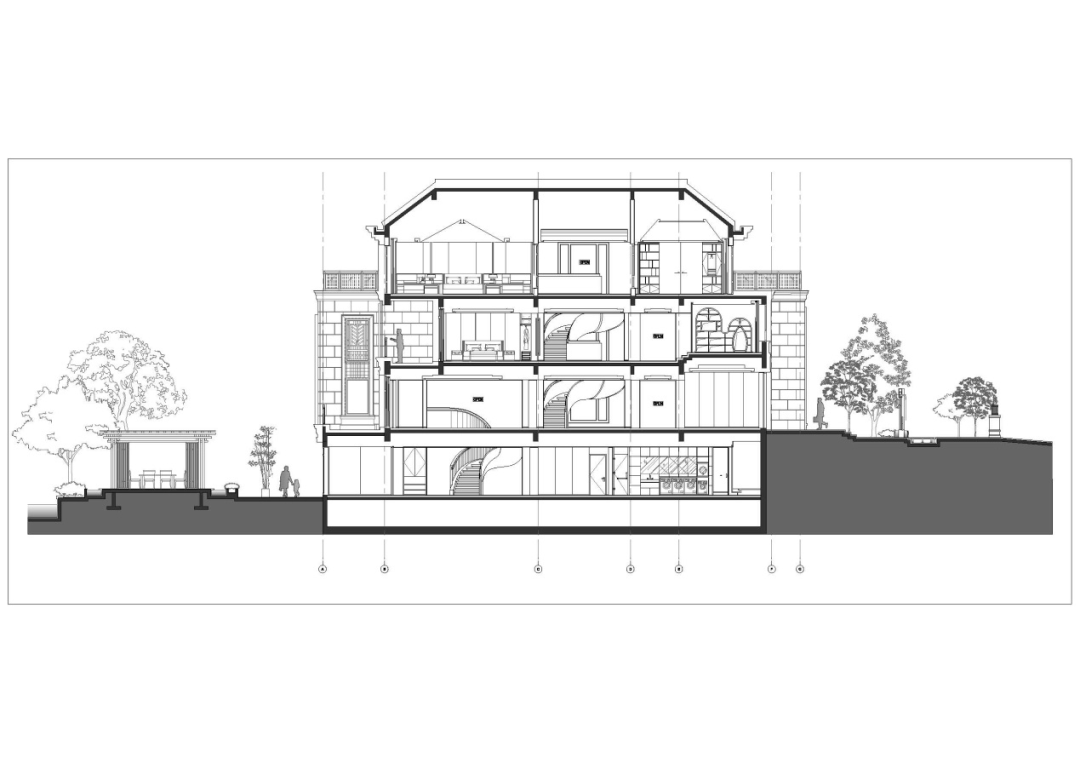
△建筑剖面图项目名称|北京恒大丽宫别墅9号空间设计|神美(上海)空间设计有限公司主创设计|韩赢参与设计|丁磊、张凯、孙永冬、贝儿、坦坦、方卉、坤杜孜阿依·吾甫尔软装供货|CCD软装执行|刘丽妮、邱晓林施工管理|金螳螂王家圣、荣明青施工执行|鲍宇园林设计|韩赢、赵琼园林施工|都超、郭雷灯光顾问|朱海燕建筑面积|1900㎡精装面积|1689.5㎡园林面积|897.5㎡工程造价|3700万硬装造价|15980∕㎡、软装造价:4735∕㎡、园林造价:200万元材料选用|金属、玻璃、木材、皮革、石材品牌宣传|V-GOOD威古德、者尼影音智能、华盛康科技设计时间|2018年3月—2018年10月建造时间|2018年11月—2020年8月文字撰稿|woody韩赢(韩相中)空间摄影|张骏团队特别鸣谢|卢志荣、郑忠、关永权、曾梵志、纪宁、张昊、莫超、王小宁、秦勇、贺国龙、牛生清、曲泽亚、倪良沁
woody韩赢(韩相中)神美设计总监|理事人|酒店豪宅设计师
l城市更新服务者
l空间迭代参与者
l场域布景实现者
l物料进化体验者
l将中庸理念做到极致且擅长“能直不曲”的装配插拔式结构自然主义风格
NEW ARRIVAL
【阅世集的设计库房】上货啦!
客服
消息
收藏
下载
最近





























































