查看完整案例


收藏

下载
01
# 城市微光 #
CITY SHIMMER
#好房子、慢生活#,本案以「有形的艺术馆,无形的营销中心」立意,引入国际化前瞻生活方式不设计理念,把城市不人文,艺术不生活紧密的结合在一起,享受艺术馆式的空间体验……..
沙盘顶面将虚拟的光,具象化,与光影互动,每一个角落都存在着设计的考量,使身边的一切更有空间感、交汇感、立体感。
每一处功能区连为一体的同时又不失井然有序,主次分明。
老物件带来的时光与宁静感,为空间注入厚重历史感,让人近距离的感受艺术的美。
#自然呓语#
NATURAL GIBBERISH
当天边的云随着旭日然然升起渐渐染上橙黄色的光晕,处于薄雾笼罩下的静谧之中多了些梦幻与诗意,带着穿越千年的人文古韵,展现一份端庄与隽逸。
传统东方审美运用到当代设计中,地域与文化发展的融合,彰显东方美学智慧。用强烈的对比,明暗、渐变、融合,让我们视觉带来更为丰富的层次感,让简单的事物更加森罗万象。
03
清雅植韵
ELEGANCE CHARM
舒适的家具、怡情雅致的艺术品在空间内随处可见,充分显示着设计师对于细节舒适感的追求置身其中,思绪飘远放空自己,寻找一处宁静。
唤醒“邻里”创造愉悦的营销中心体验方式,再一次革新“去售楼处化”理念,从空间、体验、话题性、后期功能置换,全方位诠释独具特色的商业空间。
04
静谧诗意
QUIET POETIC
应和着绿植清韵,感受蓬勃自然的生机盎然,潇洒豪爽而内敛含蓄的人文气质。为空间框架中添加多样品位,达到和谐平衡。
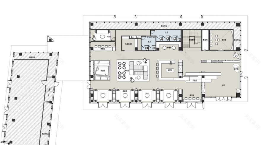
平面图
Layout plan
项目名称|招商·金茂·正荣青山湖•依云上城营销中心
开发商|招商、金茂、正荣地产
业主团队|正荣集团南昌区域设计管理部
硬装设计|上海飞视设计
设计总监|张力
设计团队|李姝、花学凯、吴紫雁、赵娟、李增强
机电团队|韦蓉蓉
软装设计|上海太吉元禾装饰设计有限公司
灯光设计|新时光照明设计
项目地点|南昌 青山
项目摄影|一千度视觉
项目面积 |890㎡
主要材料|白木纹石材、古铜拉丝不锈钢、木饰面、水磨石砖等
客服
消息
收藏
下载
最近


























