查看完整案例


收藏

下载
电影《蒂凡尼的早餐》从清晨的纽约街头开始,Holly(赫本饰)独自一人在Tiffany橱窗前吃着廉价早餐,似是漫不经心,脚步又流连忘返,像极了一只高傲又优雅的猫,慵懒地穿梭在逐渐苏醒的城市中。
美人在骨不在皮。赫本之所以能成为优雅的经典代表,靠的绝不是仅仅一条小黑裙,而是眼神、姿态、言语、身段等的多重演绎,如猫般慵懒而灵动、柔媚而不羁,令人过目难忘。
△ 女主Holly(赫本饰)及她的猫
当“猫式优雅”到空间设计上,亦遵循一样的道理:如只靠生硬的“猫”饰堆砌,只会落到东施效颦的效果;唯有从布局、造型、色调、选材、陈设等多方面着手,在繁华都市中精心打造与猫共舞的私人领地,才是真正的猫式优雅。
Part Ⅰ
...作为LOFT公寓,“梯”往往是最令人关注的焦点之一,因其不仅肩负着衔接上下空间的沟通作用,还身兼着空间风格最大呈现的角色。
而公寓里通体雪白的异形云梯,就像一只波斯猫般,慵懒地卧在落地窗边,享受日光弥漫的闲暇。
一高一矮两个由藤蔓与原木制成的猫爬架,对立伫于墙角,填充了墙体的空白,实用性与装饰性兼具。从顶部垂直而下的圆形灯饰,与曲线造型的云梯穿梭交织,整个空间更富动态趣味:如云梯是猫,那圆灯就是猫最爱的玩具球,画面生机感自然浮现。
云梯自下而上优雅伸展,层层叠叠蜿蜒向上,与空间的流畅动线如出一辙,无论是商业还是居住,两相皆宜。
Part Ⅱ...敏锐的设计师,往往用色大胆,能将多种不同材质的物件,碰撞出新的火花。以浓郁深邃的法式蓝作为优雅主调,辅之以粉色、金色,点出猫式优雅在繁华都市中独有的灵动、狡黠与纯真。
空间内大面积的蓝色系,通过不同材质的演绎,像层层海浪般富有层次感:厨房的蓝色复合板材是人间烟火,金边座椅上蓝色丝绒是奢华尊贵,客厅背景墙的系列艺术作品是尼斯海岸的浪漫假日。
以玻璃作为卫浴与外界的隔断,强化空间的通透感。日光照入,穿过玻璃,折射在镜子上,巧用材质特点与自然光线来解决一层的采光问题。
Part III...“L”型的二层空间,以颜色的逐渐过渡分为三大区域:
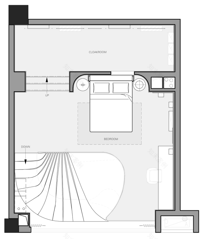
金色与粉色为主的衣帽间、粉色与蓝色为主的睡眠区,以及蓝色与金色为主的工作区。
丝绒所独有的复古与优雅,是任何一种材质都无法比拟的。视觉上是冰冷的光泽感,摸上去却有着温暖柔软的触感,既冲突,又和谐,营造出精致华丽的睡梦氛围。
与丝绒的柔软相反,衣帽间以硬朗的金属线条来强调女主人的干练精致。偌大的空间宛如一个潮流买手店,墙上的金色玻璃方格既可用于饰品收纳,又能展示现代都市女郎的时髦品味。
家是日常休息的场所,也是精神层面的城市一隅,是心灵的休憩期盼所在。都市快节奏之下,这样一个与猫共舞的空间,一如前文所提电影中Holly与猫的上东区公寓,外在优雅灵动,内在相互陪伴温馨治愈。
△ 首层平面图
△ 二层平面图
项目名称:福州旭辉永同昌公元大观公寓
项目地址:福州·五里亭王庄·前屿地铁站D出口往南直线距离约200米
室内设计:尚诺柏纳空间策划联合事务所
项目面积:45m²
委托范围:硬装及软装设计
总设计师:王小锋
设计团队:事业三部
建筑设计:上海天华建筑设计有限公司
景观设计:凯盛上景(北京)景观规划设计有限公司
摄影师:黄早慧
家具定制:佛山市铭思家具有限公司
客服
消息
收藏
下载
最近
































