查看完整案例


收藏

下载
【项目名称】:顺江味道
【项目地点】:中国·成都 海昌路
【项目面积】:600㎡
【设计公司】:成都三上装饰设计有限公司
【主案设计】:刘龙海
【参与设计】:王鑫、李果
【软装设计】:李果
【照明设计】:王鑫
【主要材料】:木皮,水磨石砖
【空间摄影】:U SEE摄影窦强
【创意阐述】
说起成都 除了那首人人哼唱的民谣,还有锦里的古街、武侯祠的红墙。说起川菜 以“尚滋味”、“好辛香”为其特点。更以“上河帮川菜”即以川西成都、乐山为中心地区的蓉派川菜, 其特点以亲民平和, 调味丰富, 口味相对清淡, 多传统菜品;
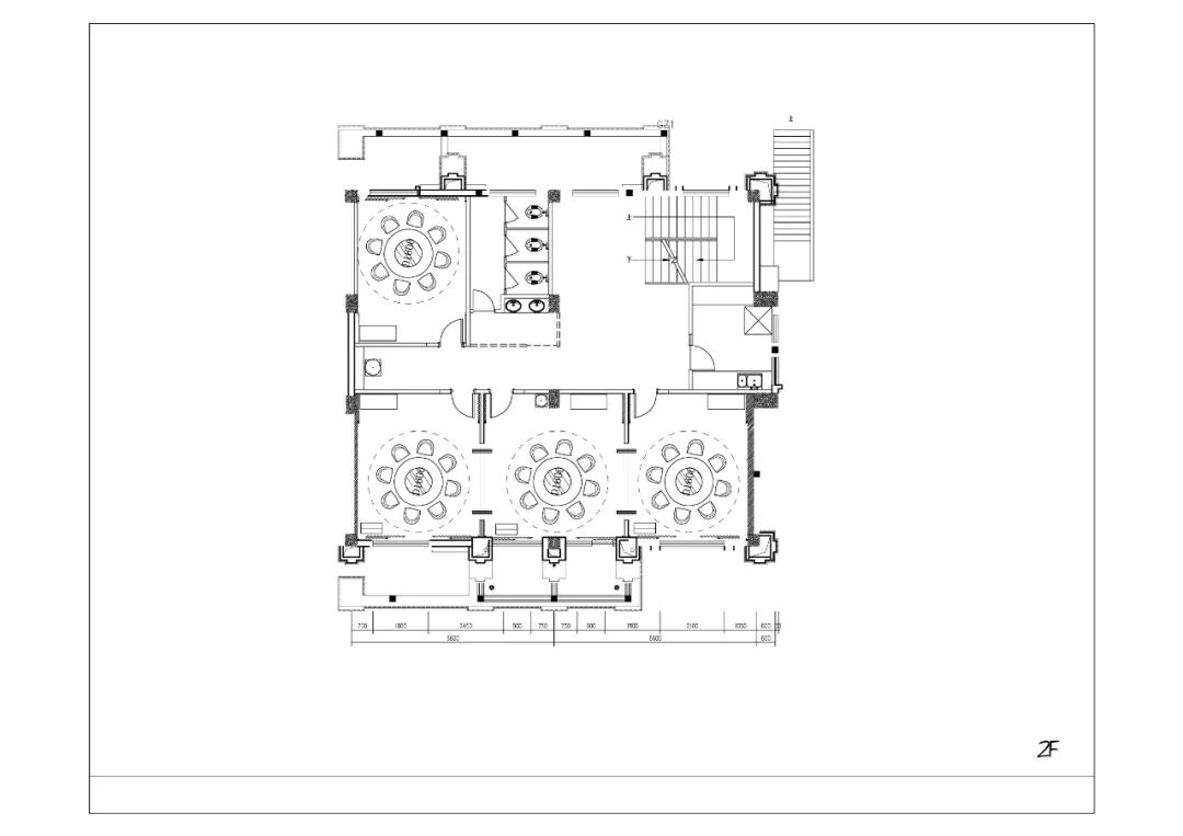
【设计图纸】
原建筑为商住小别墅,楼梯位于中部,将空间划分几个尺寸较小的区域,设计师将原有楼梯拆除,新建楼梯位于一楼空间角落,将大厅区域做成完成的开放空间,同时将小院外墙用全玻璃隔墙,增加室内视觉宽度,使得室内外相互借景。
【空间简述】
本案以武侯祠红墙夹道的色彩和川西建筑色彩上的朴素淡雅为设计出发点,以川西民居的形作为设计基础。
白墙与浅淡木色的交映,纯净而充满格调。
浅灰色水磨石地砖降低了整个空间的饱和度,增加了空间的质感。
开放明厨设计能够促进人们在视、听、味的感受的自然转换以及沟通等多种功能的发挥,为顾客与顾客以及顾客与厨师之间的心灵互动提供了可能。
对于单层面积不足的情况,空间的相互借景就成了设计师的小心思
对于室外的露天餐区,也是室内借景的重点区域,对于扩大整个一楼餐区的视觉感受,作用颇大
通道空间依旧灰色调为主的空间氛围。墙面的装饰为天然竹编材质,只是寥寥几笔,即入淡淡禅境。
二、三楼是连包与独立包间,单色调及线型灯的使用,“非澹泊无以明志”式的方式表达成都人好客热情
客服
消息
收藏
下载
最近





















