查看完整案例


收藏

下载
【项目名称】:大少普洱茶室
【项目地点】:中国·广东广州
【建筑面积】:340㎡
【设计机构】:黑白木设计
【主创设计】:王强
【设计团队】:韦凯钧、聂祖兰、符欣宁
【竣工时间】:2020年10月
【项目摄影】:王强
【主要材料】:火山岩、水磨石、欧松板、耐候钢、胡桃木
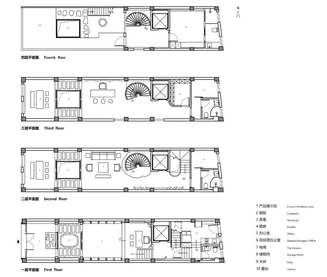
【设计图纸】
【空
间简述】
01.诗意庭院
庭院是天空流入屋舍的通道,无声无息。
博尔赫斯曾经写下这样的诗句,同样的描述,也适用于“大少普洱茶室”。
茶室位于广州北京路步行街附近的一条老街,红色火山岩的外立面,有态度而又谦逊地伫立在人来人往的街道边。
茶室宽4.3米,长20米,高为三层半。
两边紧紧挨着两栋房子,只有前后有窗子。
在如此狭长的建筑空间里,如何设计光线与空气,又布局合理,成为首要设计重点。
设计师希望设计一种在都市中感受到自然的房子。于是在茶室的1/3处,设计了一个长方形的天井及中庭。中庭两边是通道,让不大的空间也变得流动起来。在这茶室里,可以感受四季的流转和光线的游移,可以体验阳光的普照和雨水的洗礼。
02.自然之道
以自然拼贴的形式建造的外立面,融合紫砂壶一样的气质,俨如一个茶壶。三角形屋顶式的开口,从大门一直延伸进整个一层接待空间。而室内采用大量黑色火山岩和水磨石,点缀胡桃木,营造自然质朴的表情。
无论是“琴棋书画诗酒茶”,还是“柴米油盐酱醋茶”,茶从来没有远离中国人。生在广东,茶是故乡街坊再平常不过的日常生活。而讲究喝茶到了极致,便成了“茶道”。空间与时间,水与火候,器具与温度,都是不一样的茶汤滋味。
道法自然的精神境界与茶虚静、恬淡的品行相契合。
“洁性不可污,为饮涤尘凡。此物信灵味,本自出山原。” ——韦应物《喜园中茶生》
03.精神创造
茶室实际上并没有这么大,使它显得大的是阴影、对称、漫长的岁月、孤寂和那一杯茶。
设计师通过一些形式有序化,实现了一种秩序。
这秩序是他精神的纯创造,他用这些形式强烈的影响我们的意识,激发造型的激情。
而创造的协调,在我们心里唤起深刻的共鸣,引起了我们思想和心灵的各种悸动。
这时我们感受到了诗意的美。
时
系删除
:
---------------------------------
在变好
看
客服
消息
收藏
下载
最近

































