查看完整案例


收藏

下载
【项目名称】:归来-禾豚记餐厅
【项目位置】:中国·南京溧水
【项目设计】: 阙高敏
【创意阐述】
一说到中式建筑,白墙,灰瓦,复杂的榫卯结构都会浮现在我们眼前,我们想做一个中式的餐饮会所,不免也会优先思量至此。
但是墨守成规不应该是一个设计人该做的,用现代感十足的铝方通幕墙代替白墙来和一个大体量中式门楼做一个对比,配上连绵的山峰,来冲击过往每一位看客的眼球,让每个人感受两者之间新旧的对话,这个才是我们想要表现的。
门楼的木质结构我们也用了一些现代的手法来表现,简化的榫卯对接方式也让整个大门的造型看起来更具一些现代感,不会显得老气,配上古铜质感的柱脚和大门,加上两侧的青石拴马柱,加强了这种现代与传统的对比,古铜格栅造型的大门,让伫立门外的看客隐约能窥探的室内的大概,希望每一位过往的人都能亲手推开到室内来一探究竟。
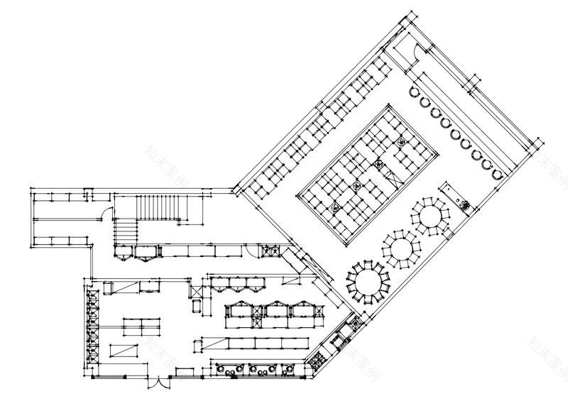
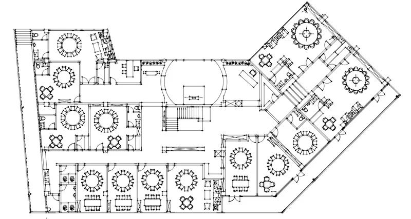
【设计图纸】
【空间简述】
进门大厅整体预先构思的是一个天井的概念,用现代手法和多样的材质来表达的是一个传统天圆地方、藏风聚气的整体布局。顶面用大面积的镜面板表现的是一个激起涟漪的水面效果,周围环绕一圈水墨山水画,配合镜面的效果,倒影成真,实体却成为了水面下的倒影,亦真亦幻。
大厅的中央我们放置了一座齐天大圣孙悟空的雕塑,背面用放置了两块青石假山浮于大幅水墨画之上作为背景。本案的业主是一位在外漂泊多年的加拿大海归,回国后从事金融贸易,农业科技,影视娱乐,快捷餐饮等多项创业,阅历丰富,这次回到家乡开启了此次项目,希望做一个本地高端餐饮文化的领头人,改革本地陈旧的餐饮文化。也正是我们想表达的大圣归来的主题,业主在外辗转多年,也历经不知多少风风雨雨,最终归到家乡的怀抱正是和历经九九八十一难最后修成正果的悟空有异曲同工之妙,背面的青石假山也正是寓意悟空的家乡花果山。
栉风沐雨,大圣归来,正是我们这个项目的主题精神。周围环绕的是木质的花格和一些中式元素的装饰品,阵列的表现形式在中国红背景颜色映衬下格外显眼。地面铺设了一块汉白玉大理石雕刻的祥云浮雕,和周围灰色的地砖对比鲜明,更为突出。两侧入口放置两个古铜质感的门套,增强入口的仪式感和氛围。
大厅背面是我们整个项目空间的正中位置,也是整个餐厅动线的中心点位置,贯穿了整个空间上下左右两条轴线,所以我们将连接一二楼的楼梯放置在这个位置。顶面依然运用的中国红背景色,映衬悬挂在空中的木梁结构和下方黄铜质感的楼梯扶手,带给上下楼或者经过的食客不一样的感受和观赏内容,左边配备了一组装饰柜来增加空间的层次感,多样的古典瓷器和雕塑给停留驻足的客人带来更多的观赏性,也让整个餐厅空间的内容更丰富多样化。
过道部分我们采用的是大面积的深色护墙板,选用的颜色和纹理比较古朴,墙板的表面穿插了古铜色的铝条进行镶嵌,做出了一些中式的阵列造型,提升了整个空间的档次。为了避免重复的阵列造型会带来一些枯燥乏味的感受,所以在过道的中间穿插了一个由竹林白沙青石组成的小空间,中式园林局部的表现手法,分散的汀步石也减缓了来往食客的脚步与匆匆而过的状态,就像在高楼林立的大城市中放置了一处绿植遍地的公园,无疑会给每个人带来很不一般的感受,给焦躁匆忙的城市生活带来一些缓冲。
包间内我们分出了几个多样化的带着中式文化主题内容来呈现。《对应两张包间图》
这里运用阵列的形式突出黄铜质感的中式门扣元素搭配北宋青山绿水的画作,也是一种现代表现形式和古典文化的融合与对比。
将水墨画的素雅融入到墙面的造型当中,和户外公园内的景观也可以呼应开来,食江鲜美食滋味,品中式餐饮文化,赏户外无限风光,鉴空间设计创新。
时
系删除
:
---------------------------------
在变好
看
客服
消息
收藏
下载
最近























