查看完整案例


收藏

下载
【项目名称】:百年“黄天源”
【项目地点】:中国·江苏 苏州观前街
【项目面积】:330㎡
【设计单位】:CHAO巢羽设计事务所
【设计总监】:梁飞 王星
【参与设计】:易航飞 吴陶锴
【品牌视觉】:BOBRAND 播朴蓝设计机构
【项目摄影】: Song images建筑摄影 周浪行
【使用材料】:木饰面,镜面不锈钢,水磨石,亚克力,定制食模
【创意阐述】
“一代代中国人用心赋予食物以灵性,
他们将厚重的历史文化和植根华夏民族内心深处的情怀,
凝聚在食物中,做出了最精彩的点心。”
这是我们对“民以食为天”的尊重,也是美食的传承在我们心中重要价值的体现,黄天源堪称美食传承的百年代表之一。
上个世纪三十年代,黄天源进驻苏州观前街,经过了两次翻造,自上个世纪七十年代开始,形成了之后几十年基本没有变过的传统店铺的模样。
而随着市场的不断变化,客户对于空间的体验新的要求,更多的“中华老字号”如何在新的市场环境下寻求生存和转型显得尤为重要。此次CHAO接受黄天源的委托,对黄天源新一代店铺打造全新空间的体验。
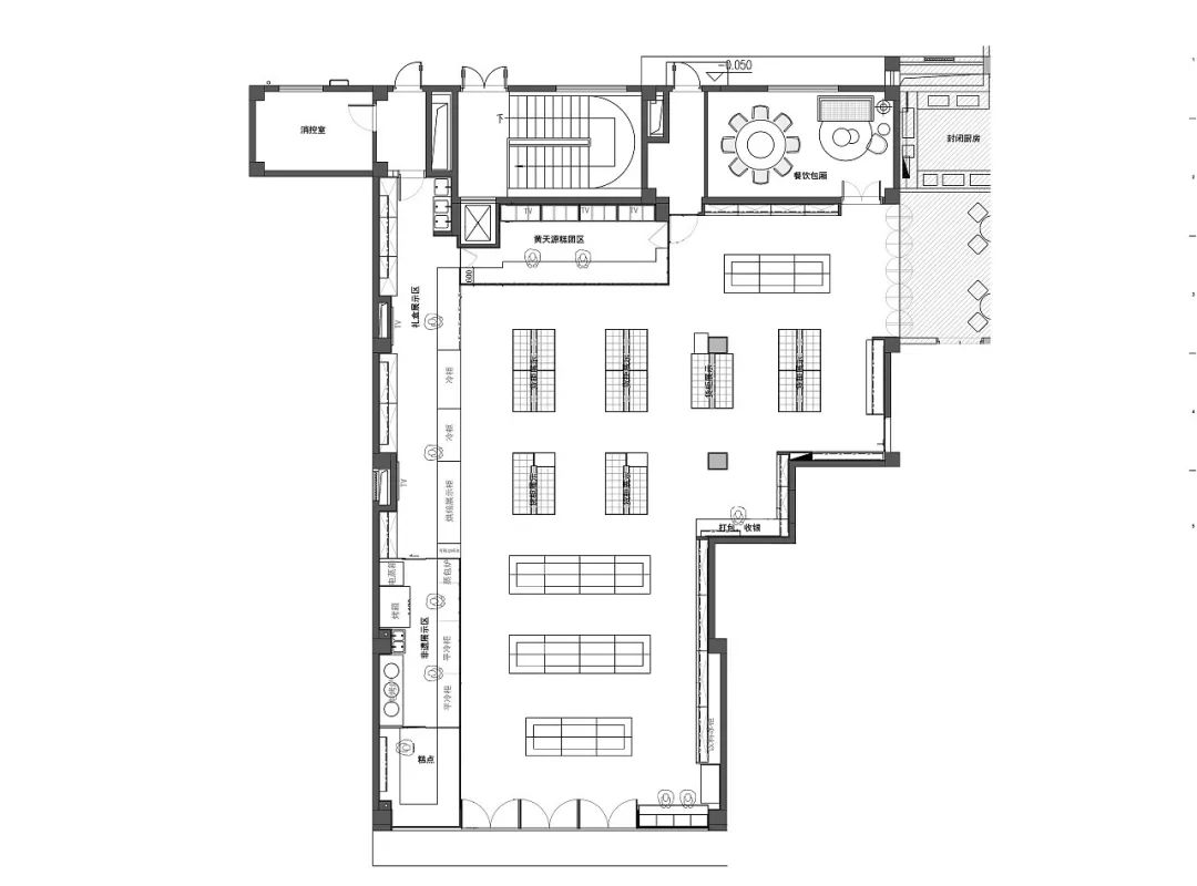
【设计图纸】
【空间简述】
中国末代皇帝爱新觉罗溥仪的弟弟溥任亲笔题词“黄天源糕团大王”,九十七高龄的著名书法家谢孝思题写的“中华名小吃”,吴门派著名的书法家杨鼎美题写的“米糯糕香”三块牌匾高挂于入口上方。
作为2009年江苏省首批“非物质文化遗产”传统糕团制作技艺的黄天源,新一代店铺空间传承百年老字号传统糕团“前店后坊、现做现卖”的模式,还增设苏式糕团制作技艺展销区、“非遗”传人表演区,以及各色糕团的自选区、礼品糕团苏州土特产销售区等功能区域。
空间不仅是产品物件展售摆放的场域,也是文化历史传承的地方。通过对两百年历史品牌的重新梳理,对其发展重要节点的文化提炼,贯穿整个空间。
作为苏州最具传统美食的代表之一,“黄天源”糕团深受市场追捧。空间中设置的大型糕团展示装置,灵感来源于传统古建筑的木结构的搭建方式,在26条大大小小的透明亚克力盒子内,放置近800个黄天源出品的经典糕团,在顶面镜面不锈钢的反射之下,形成纵横交错的糕团世界。也是在新的市场,新的人群需求之下的全新视觉传达。
黄天源作为2009年江苏省首批“非物质文化遗产”传统糕团制作技艺的品牌,理应在其空间场域来传承其制糕工艺。“非遗展示区”的玻璃面上,一道道制糕工艺,跃然于空间,让其看不见的工艺得以重现传承。
一月闹元宵、二月撑腰糕、三月清明团、四月神仙糕、五月端午粽、六月谢灶团、七月豇豆糕、八月食糍团、九月重阳糕、十月南瓜团、十一月冬至团、十二月糖年糕。黄天源的时令特色糕团很是畅销。
世界上最伟大的艺术和最优征服力的武器是语言,人类的进步与文明就是从拥有语言沟通开始的。空间中随处可见的关于苏州味道的言语,是空间给予人的温暖。在这里,让每个人都能寻找内心深处的对话。
时
系删除
:
---------------------------------
在变好
看
客服
消息
收藏
下载
最近







































