查看完整案例


收藏

下载
【项目名称】:鲜入唯煮餐厅室内设计
【项目地址】:北京市朝阳区三里屯北区
【建筑面积】:约500㎡
【项目设计】:多夕建筑
【主创团队】:刘蕴涵、何静
【摄影版权】:金伟琦
【装修主材】:水磨石、石材、硅藻泥、金属板
【设计阐述】
本案的业主是北京的“鲜入唯煮”港式火锅餐厅,一家对于食材的“真”、“鲜”和烹饪的精细都有着极度品质要求的餐厅。在追求网红经济的今天,能够如此本真的打造品牌有点特立独行的意味。
【设计图纸】
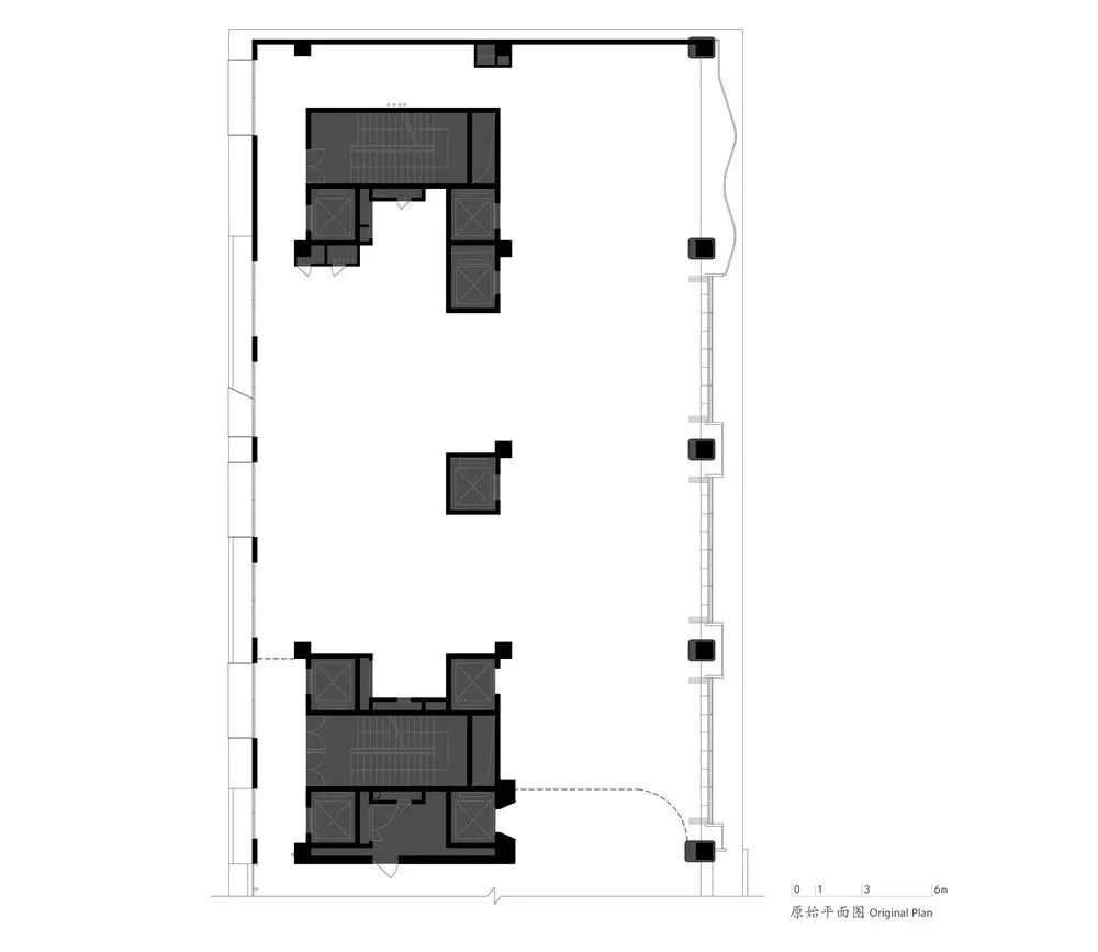
▲原始平面图
▲平面图
▲剖面图
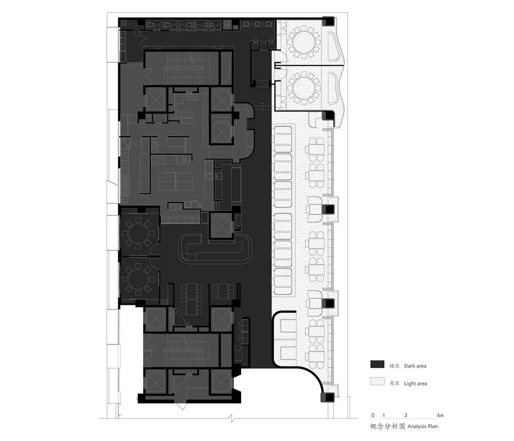
▲概念分析图
【空间简述】
新店选址位于北京时尚和热闹的三里屯太古里北区,现状空间的基础条件较为普通,是一个仅有4米层高的平常空间。
空间策略上我们希望突出场地东侧临窗无柱大空间,这里作为主要的堂食区域。东北端头由于建筑立面为不可开启的弧形玻璃,更加私密,因此将其设计为包间。同时也作为纵向空间的结尾,创造一个等级更高的空间高潮。卫生间、厨房、明档、吧台、部分卡座等布置在被电梯井打断的中部区域,结合西侧临窗设置了两个小包间。这样因地就势构成了整体布局。
▲包间
▲半包区
诗人、小说家格特鲁德·斯泰因(Gertrude Stein)有句名言 “Rose is a rose is a rose is a rose……”意指在认知的法则中,物自身与再现的形式之间辩证关系。本案的空间设计并没有做过多的修饰手法,而是无为而治,明确空间属性,梳理空间架构,让明亮的区域开敞明快,私密的区域静谧深远,让光明成为光明,阴翳成为阴翳。保证每一个独立空间都有明确而高质量的空间品质即是本案的设计初衷,也是动人之处。
▲吧台
▲吧台望向大厅
如何塑造东侧主空间成为定义整个空间氛围的主线。这里我们产生了一个有趣的讨论,也引起了很多持续性的思考。灵感来源于两跑楼梯,既有正负,空间又是延续的。我们用“一分为二”的手法修正了空间比例,也暗示了使用的流线,同时形成了鲜明的视觉景观,加强了南北方向的空间张力。
▲概念分析图
“一分为二”创造了清晰的空间秩序。
“一分为二”形成的视觉边界而非行为边界,大厅还是一个完整的大空间。
但其存在感又是如此的强势和明确,影响了一系列的设计判断。
如明亮的一侧材质选用明快清脆的材料,暗色一侧材料选用则强调厚重感和重量。
因此这一动作即是对于上面提到的“物自身与再现形式”之间的辩证关系的细化,又是用最简单的方式塑造空间性格的尝试。
▲大厅
▲明档
▲海鲜池
另外值得一提的是,在大包间入口处和卫生间走廊两个小空间设置了三组不锈钢镜面艺术装置。通过镜面的反复反射形成了真实与幻想交织复述的视觉体验。在形式上,这与火锅丰富食材以及浓郁醇厚的汤锅不谋而合。
▲走廊
▲艺术装置
时
系删除
:
---------------------------------
在变好
看
客服
消息
收藏
下载
最近

























