查看完整案例


收藏

下载
【项目名称】: Mini Cuppa上海大宁茶饮店
【建筑设计】: RAAMS 建筑事务所
【项目位置】:中国·上海大宁广场
【项目面积】: 90㎡
【设计团队】: German Roig, Natalia Moreno, 陈卓然
【创意阐述】
过去,茶作为饮料,在中国主要被老一辈人饮用,而且大多为男性。位于上海人口密集的长宁区,Raams希望打造一家适合全年龄客群的茶饮店,并关注女性的需求,为打造一个可以会友、放松和喝茶的空间。
▼白色层叠模块构建上海奶茶店
上海和瓦伦西亚建筑工作室Raams在中国上海完成了第一家Mini Cuppa茶饮店。店供应新鲜牛奶和时令水果混合的奶盖茶,设计选用了白色方形模块作为店铺的主要建筑元素。
【设计图纸】
【空间简述】
Raams 建筑事务所重新诠释了弗兰克·劳埃德·赖特经典的工艺砌块模块化系统,用一个单一的建筑元素来定义茶饮店的尺度,创造了一个灵活且有质感的建筑室内空间。
▼模块墙
▼层叠的模块墙,展示架和台面转角细节
这些模块用磁铁吸附,平行的堆叠在彼此之上。这样简单的构造系统可以适应品牌未来的空间需求,从而创造出无限多种布局,并使每一家品牌店铺似曾相识,实则新颖独特。
▼模块墙可以创造出无限多种布局
更大尺寸的模块还延伸到了店面外,配以三块玻璃橱窗划分店面。
“建筑师解释道:“XL尺寸的框架外立面是一个引人瞩目的元素,它可以吸引来往人群,并且将Mini Cuppa 与周边商铺区分开来。”
▼Mini Cuppa 白色室外装饰,XL尺寸的框架橱窗及雾面的玻璃旨在激发顾客的好奇心
该设计营造出一个平静又温馨的氛围,邀请人们进来放松心情,享受一杯茶。外部花园的斑驳绿色透过雾面玻璃被引入内部空间。
▼茶饮店一侧的镜面转角,内部雾面玻璃后的Loop椅和茶桌
为创造品牌独特的视觉化信息,选择使用“符号”作为一种隐秘的语言及艺术性的表达方式,创意总监German Roig 绘制了多达400个模板图案,这一系列手绘的专属图像是对人类感官和茶文化主题的表达。
占主导地位的白色内饰和品牌最主要的饮品元素——白色的奶盖遥相呼应,同时也是设计师自我表达的“画布”。
▼带图案的白色模块墙,Loop 高椅和咖啡桌
▼模块墙细节
店内的家具均由Ramms 建筑事务所设计并生产,包括大理石面的茶桌,带有靛青色织物软垫的Loop高椅和Loop椅。
这些极简设计风的家具独特且经久耐用,具有遵循品牌标识的女性化气息。
巨大的对页拼花粉色大理石板,放置于店铺后侧,成为蓝色长凳的背景,为整个空间增加了一抹柔软的质感。
▼定制家具上方:
对页拼花石墙
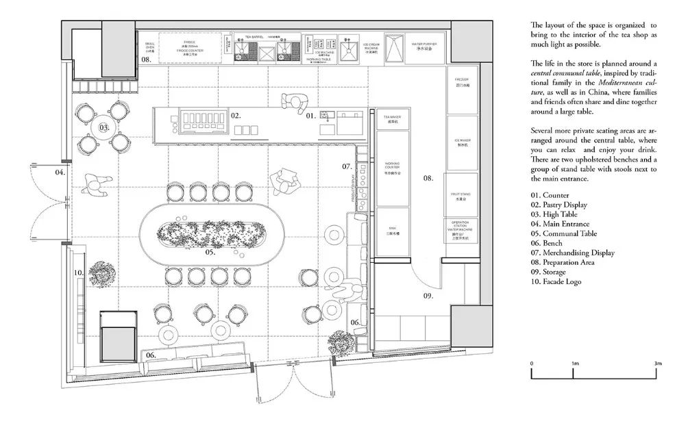
店铺的整体空间布置围绕着一张3.5米长的中央公共弧形桌进行规划,灵感源于传统的地中海家庭文化,在中国也同样如此,家人和朋友们通常围坐在一张大桌子旁。
▼带有野生绿植的对页拼花大理石公共桌
在桌子中间,专门定制的野生绿植花盆将自然带入了室内,并充当了一个半透明的视觉分区,为顾客提供了一定的私密性。Viabizzuno 吊灯为中央桌提供照明。
▼室内空间,厨房工作台
该茶饮店是融合了多学科设计的成功案例,它将图形、家具和室内设计的语汇融合进了餐饮商业中。
时
系删除
:
---------------------------------
在变好
看
客服
消息
收藏
下载
最近























