查看完整案例

收藏

下载
【项目名称】:匠王小院
【项目地点】:中国·宁夏 银川市
【建筑面积】:500㎡
【创意阐述】
本案位于银川文化街宁夏文联后院,原来的建筑曾是黄埔军校同盟会,后成为宁夏文史馆,通过设计师改造,让一个百年建筑重新焕发其生命活力和商业价值,力求用当代的设计手法去表达东方的文化与精神,是一个内观的空间。约翰.伍重曾经说过东方建筑的核心精神是屋顶下的灰空间,它因该是开放,通透的,一处与自然亲近对话的场所,这正是本案想要传递的设计哲学思想。
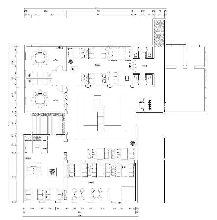
【设计图纸】
【空间简述】
设计只用了 四根柱子支撑起了内院的围廊部分最大限度的减少了客人的视觉干扰,并且靠近水景的东西內墙改为大面积的落地玻璃,开阔了客人在就餐时欣赏中央水景的视角,夏听雨,冬观雪,为客人就餐时带来赏心悦目的极致体验,透过落地玻璃,相互成为对方的风景。整个合院的改造也暗含了四水归堂的风水诉求。
设计的亮点在于合院中间的水景部分,微风吹过水面时荡起一层层涟漪,干净透明的水景会让人的内心生起清凉,它是整个设计想要表达的内核。
设计上我们选用了 一些朴实有温度有质感会呼吸的材质。譬如老砖贴片,木皮,以及地面的金砖,随着时间的推移,它们的肌理表情也会产生丰富的变化。设计保留了原老建筑的木质人字梁结构,增加了本案的人文气息和历史厚度。
用户体验非常棒,大家对于合院的改造非常认可,认为在闹市中有这么一处清凉地,非常意外,也很惊喜,匠王小院是目前银川此类餐饮项目的一个热点打卡地,它为老城区的一些旧建筑再利用做了新的启示。
时
系删除
:
---------------------------------
在变好
看
客服
消息
收藏
下载
最近



















