查看完整案例


收藏

下载
【项目名称】:TORI.S
【项目地址】:中国·上海
【建筑面积】:110㎡
【主创设计】:聂奇,赵瑞超
【施工单位】:言润装饰有限公司
【项目摄影】:云眠工作室
【主要材料】:金属烤漆、艺术漆、冲孔板、水磨石
【创意阐述】
Tori’s,我们所想象的,是悠闲地坐在花园一角,享受着甜点带来的幸福。
▲商场入口处,我们没有设置包围空间墙体或者玻璃门,用做旧红砖铺设这个区域,一是希望营造入口的花园感,二是使得空间上对外有个延续,让空间看起来更开阔。
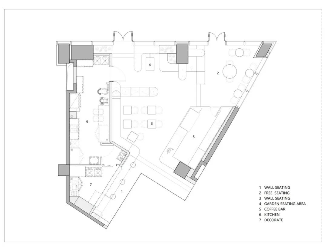
【设计图纸】
▲轴测分析图
▲平面图
【空间简述】
如何造就这充满幻想的花园,是我们对空间做的第一次尝试。在商场入口处以做旧红砖铺设围挡代替完全包围的墙体及玻璃门,空间序列在内外不断地流动延伸,使花园最初以打开的状态迎接客人。做旧红砖,艺术漆,手工砖大体量的铺设在空间内,粗糙的肌理感充满了自然的不确定性,同时锈红色浓郁的搭配也为花园带来一种时间韵味。
▲靠近玻璃幕墙的区域我们设置为卡座区域,在轻盈的冲孔顶棚下,不规则的台阶和花盆堆砌在一起,更像是户外的花园卡座区
营造了一个更具私密感的用餐空间。
空间内反复出现的拱形灵感来自于温室顶棚的造型,给予花园保护与庇佑。
▲材质分析
▲商场另一处入口由外墙进入,我们用同样的地面材质,划分区域,营造户外感
同一材料反复多次的出现在空间内,从墙面延伸至地面,从内部到外部,以延伸的材料作为生长意象的载体。两个入口采用了同样的地铺划分区域,以营造户外氛围。我们保留了原始的建筑管道,以刷漆的形式呈现,希望可以表达出花园未经打磨的天然质感。
▲卡座区
白天,大面积的原始落地窗将自然光线最大限度地引入室内,内部与外部的视线毫无阻隔,温暖的自然光洒落在散座区域内,使其呈现出一种无限生长的生机。
▲空间局部细节
▲天色渐暗,室内2700k的照明条件使空间内的色彩在暖光中呈现另一种柔和的氛围
我们希望客人在夜晚用餐时,也能在花园内感到温暖与放松。运用不同材料的质感在空间内自然形成了进退关系,碰撞在一起也极具戏剧性。Tori’s品牌调性是优雅,安静但富有活力的,我们在空间内也希望如此呈现。
时
系删除
:
---------------------------------
在变好看
客服
消息
收藏
下载
最近
























