查看完整案例


收藏

下载
©Triệu Chiến
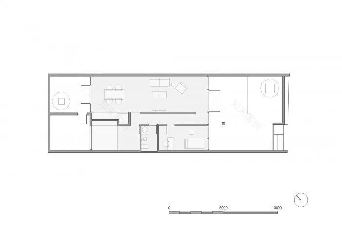
该项目是在Thanh Tri- Ha Noi为一个三口之家建造的一楼小房子。位于越南北部。它是一个处于潮湿的热带季风气候的地方。我们确定通风的因素和自然风很重要。我们提供的解决方案是为房子安排两个院子,前院和后院,以帮助空气在生活空间中轻松流动。
Triệu Chiến
Triệu Chiến
▲平面图
Triệu Chiến
为了能从居住空间到前院和后院一览无余,我们使用了两块大玻璃板来消除内部-外部的界限,内部-自然的界限。前面的屋顶突出了2.4米,后面的屋顶突出了1.5米,以减少刺眼的阳光直接照射在玻璃片上,使房子在夏天变热。
Triệu Chiến
为了保证私人空间,我们设计了办公室;卧室和厕所用2.2米高的混凝土墙与居住空间隔开。为了在夏天给房子降温,屋顶的设计增加了一个独立的层,直接从太阳上照射。
Triệu Chiến
这是一层铺在上面的网和石头,与混凝土形成一个缝隙,帮助热量在太阳出来时迅速释放。在餐厅旁边,我们种植了一棵柚子树,它将在早春开花。它将在那里,与家庭成员一起生活,分享悲伤,见证孩子的成年。那棵柚子树将成为这个小家庭的新成员。
Triệu Chiến
▲剖面图
Triệu Chiến
Triệu Chiến
Triệu Chiến
Triệu Chiến
Triệu Chiến
Triệu Chiến
Triệu Chiến
Triệu Chiến
Triệu Chiến
项目图纸
▲区位图
▲平面图
▲屋顶平面图
▲详图
项目信息
建筑师:Nguyen Thanh Trung Architects
面积:120 m²
年份:2019年
照片: Triệu Chiến
制造商: AutoDesk, Hoa Phat, Son Ha
首席建筑师: Nguyen Thanh Trung
设计团队:Doan Thi Thu Trang, Nguyen Thanh Trung
客户:Nguyen Phuong Linh
工程设计:Doan Thi Thu Trang
景观:Doan Thi Thu Trang
城市:Duyên Hà
国家:越南
客服
消息
收藏
下载
最近

























