查看完整案例


收藏

下载
本案坐落于天津市河西区板块,
设计以光线作为设计,从序列感的形式出发,将宋氏建筑风格引入到空间内,无限接近人们的心灵空间,希望通过空间的沉浸体验,赋予参观者大隐隐于市的体验感,原始与新生的沉静体验,不同文化融合后的新意风格,重新给予空间生命,让其呈现超越之美。
繁简|有无相生,东西相成
“梨花院落溶溶月,柳絮池塘淡淡风。”
接待前厅设计灵感来源于对人与自然的重新思考,人必须知道自己身在何处,同时在环境中认同自己才能获得自己的立足点。对称的镜像布局,锯齿叠线的序列,朴素空间中散发出神性的光芒。
宋人文化与西方建筑,结构之美和哲学之思,在环境的探寻中,获得充分的认同感和归属感。
静心走廊,宾至如归。中轴对称的布置,序列排布的廊柱,艺术设计别出心裁。以一条线为中心,在此穿行而过的每一位参观者,都可以在解构主义手法中,产生对色彩、影调、结构、空间的认同。
空间以简约的木质风格为主,精致而不铺陈,充分散发出自然光的美感,达至平衡和谐。
在现代东方美学中,融合艺术意境,辽阔大气映衬柔美婉约。
回归 | 让美更近一步
“东风袅袅泛崇光,夜色空蒙月转廊。”
沙盘区将几何视觉引入,“让光线做设计。”半高空间错落有致,几何线条堆叠吊顶,金属屏风气势恢弘。空间深处散发出光线与阴影,对称手法凸显空间的纵深感。在规则之中打破规则,使平淡的空间不再平淡。金色与天青色呼应,晕染着江南烟雨的气息。
建筑结构与陈设布置,已成为一个和谐的整体,室内设计对廓型、对称,美的表达,延展无尽的想象。
洽谈区的屋顶使用发光软膜,柔和了整个空间的光影。在这里剥离建筑张力,建立纯粹立体的空间质感。在洗礼、沉淀的同时,寻找静谧深邃的安宁之境。
大面积灰白棕色调,比例组建出最美的搭配。艺术灯饰简约中透露一份优雅的姿态,铺陈空间的特有格调。
水吧区使用原木色主调,在笔直空间中穿插流线装饰,温润圆弧与方正造型相得益彰。虚实空间中,感知宋代的人文雅致。墙面加入青色纹样,为空间带来更多通透、清凉之感,宽敞大气又不乏别致表达,从而构成视觉上的韵律感,诉说着品质生活的追求。
探寻 | 雅致的创新表达
“画栋朝飞南浦云,珠帘暮卷西山雨。”
推门而入,进入VIP会客室,简约大气的设计理念,一切的美均与秩序结合。咖色与米色双拼沙发,在壁炉火光的映照中,为谈话营造宾主融洽的氛围。四周的对称灯具,增强了空间的层次感。大面积的白色与香槟色搭配,更显几分温暖和雅致。
各个空间以更加自然的本源,超越形而上之本体,将花艺与器物融入建筑内部,达成自然与人文的共生。
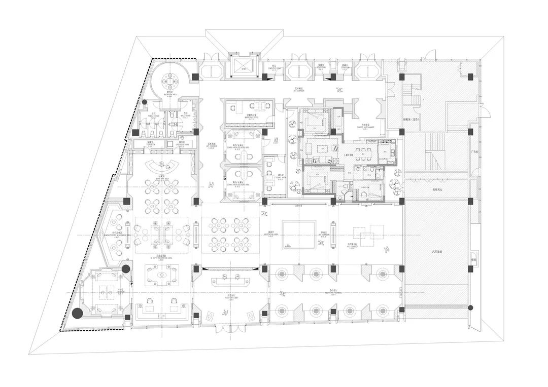
平面布置图
推广案名:天津绿城 诚园
业主单位:天津瑞致房地产开发有限公司
硬装单位:矩阵纵横
软装单位:绿城家居
项目摄影:释象万合
设计面积:1000平米
硬装造价:3000元/平米
软装造价:2000元/平米
客服
消息
收藏
下载
最近




















