查看完整案例


收藏

下载
济宁市公共卫生中心项目是在2019年疫情之后济宁市针对大规模传染病防范所建立的一座区域性传染病医院。
应对大规模公共卫生事件与平时作为正常运转的综合医院如何平衡,如何共生,是本项目的核心课题。
区别于传统的如小汤山、火神山的传染病医院的联排类型排布,本项目采用了另一类传染病医院布局类型-庭院式,此种类型的典型代表有南京市公共卫生医疗中心 。庭院式的布局适应性极强,允许医院在运营中拥有最大的变通与置换余地,同时将景观、绿化与阳光充分带入建筑內部,无论是地上空间还是地下空间,都将充满阳光与绿化。
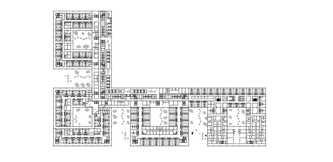
总平面
可拓展性
人视效果
L形建筑群的西侧是传染病区,南侧为综合医院与科研教学及值班宿舍。中心的广场与绿化将洁净区与污染区清晰地拉开距离,而道路转角的部分则可以根据战时或平时的需要归为普通医疗区或传染病区使用,从而大幅提升医疗资源平战结合的使用率。
设计原理采用三区三通道式,东侧的洁区,中心的半污染区与西侧的污染区共同形成传染病中心,南侧为非传染病区,东侧为科研教学中心。中心区的广场预留作为战时移动方舱的储备空间。
洁污分区
功能结构关系图
一层平面图
二层平面图
三层平面图
人视效果
外部污道外侧由防蚊虫的遮阳金属纱网形成的折动的立面为建筑带来轻柔的感受,降低了传染病医院所可能带来的恐惧压力。一连串简约轻盈,如同纸灯笼的建筑群在夜晚照亮黑暗,温暖人心。
人视效果
立面图
立面细节
适应性强的方正花园庭院、无风雨工作流,清晰便捷的洁污分区,最重要的是平時和公共卫生爆发期的多重应对能力,让这里成为一座安全、朴素、亲和的平战结合的综合性传染病医院。
人视效果
BIM轴测图
剖面图
项目地点 :中国山东省济宁市任城区长兴路以东,晨阳路以北,日兰高速以南
占地面积:118,000 m²
建筑面积:159,100 m²
床位数 :900
客户:济宁市传染病医院
项目投资:12.27亿人民币
项目现状:在建
项目设计:瑞盟设计
主创建筑师:张万桑 Vincent Zhengmao Zhang
医疗功能规划、医疗流程设计:张万桑 Vincent Zhengmao Zhang, Daniel Pauli
其他设计团队成员:林振展,董卫彬,孙荃,王立程,王适远
项目设计时间:2020
工作内容 : 规划设计、医疗功能规划、医疗流程设计、概念方案设计、建筑方案设计
甲级设计院:
天津市城市规划设计研究总院有限公司
客服
消息
收藏
下载
最近


















