查看完整案例


收藏

下载
岷江的雪山之水南出灌口,流向成都平原;途经温江,忽然收敛了奔腾的寒气,变暖、变得温润如玉,滋润得温江的大街小巷、窗前露台处处花繁柳绿。
温江是 4000 年前古蜀国鱼凫王国领地,因遍植杨柳而被称为“柳都”;温江是都江堰下游的第一个地区,上风上水,有四条大河润泽城市。
城中繁花似锦生活安宁,城外雪山连绵山河绝色,即便是富饶的成都人,也十分依恋温江的生活气息,称这座国际花园城市为“金温江”。
设计师第一次接到景瑞·誉璟风华这个项目,眼前缓缓展开的,就是这样一幅美丽而隽永的风景画。
圆形是不规则平面中的最优图形。
温江上风上水,区域内四条大河润泽城市。
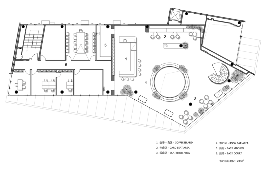
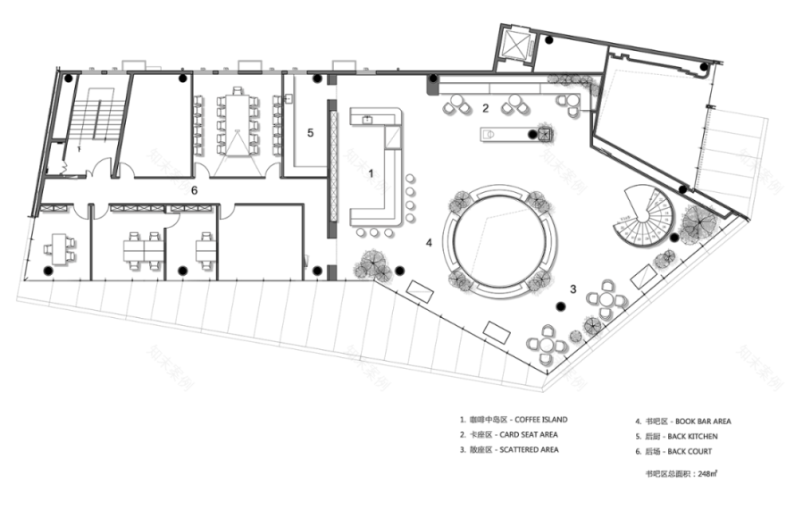
生活馆的外形如同一艘船,在不规则平面上,上下两层楼。设计师用 10 个圆形,分别区分出旋梯、沙盘、咖啡岛、洽谈区等不同区域。
这种圆形,不仅提取了城市河流水波的元素,用曲线融合了城市关于水和船的文化印记,也从空间美学的角度,用柔和的弧度消解了不规则平面内较多的角度,让整个空间变得更加平衡。
△首层平面图
△二层平面图
首层和二层之间用一个圆洞联结,圆洞、沙盘和吊灯,形成同心圆的关系,有贯通,不对称立体中轴关系让整个空间显得更加生动。
黑色氟碳漆楼梯,钢构一体成型的“螺旋圆”,穿过柔美的旋转楼梯盘旋而上,人们行走其间,不仅能够看、更能感受。为了让整个空间更加轻盈,设计师将钢构一体的楼梯扶手厚度缩减到一公分,让曲线的视觉感更加流畅。
△洽谈区沙发的围合圆
首先是一艘船,让植物自然生长,然后做减法。设计师将售楼部构建成一艘船,这艘船不是一个呆板的、字面意义上的船,要让它变得“活起来”,于是给了它很多自然形态的植物。最初设计师在空间内给了它很多绿色的植物,将咖啡岛也做成一棵大树的模样。
△效果图
但是过多的绿色,让空间显得不够简洁,设计师决定先抽去过多的颜色,保留植物叶片的晶莹光芒和植物的生长形态。当大片的颜色被抽离之后,空间变得更加干净。咖啡岛变得更像“一棵树”。
屏风用亚克力的盒子做成,更具当代感;镂空的小盒子有折射面的光影和薄色微光的变化,营造了流动灵性的空间秩序,让空间更具艺术性。
关于光线,关于梦想
建筑大师萨夫迪认为,建筑是居住者诗意理想的栖居之所,也将承载一座城市的财富和梦想。
誉璟风华生活馆也是金温江的梦想之所。
方正的入口,落地玻璃围合,空间设计尊重建筑逻辑,保留建筑给予的天光,阳光从四面洒落,光线变化,脑海中缓缓打开画卷——
一个扛着蒲公英的小女孩踏风而来,灯带环绕盘旋,折射的光晕、女孩的雀跃,一起奔赴城市的梦想!画外音响起“岷江的雪山之水南出灌口,流向成都平原;途经温江,忽然收敛了奔腾的寒气,变暖、变得温润如玉,滋润得温江的大街小巷、窗前露台处处花繁柳绿”。
项目信息
项目名称:景瑞·誉璟风华城市生活馆
项目地址:成都·温江
甲方单位:景瑞地产成渝区域公司
设计公司:AGH 年代元禾艺术设计
设计人员:夏洋 刘露 周汉建 聂睿 陈浩
软装单位:元禾大千
空间面积:860㎡
完工时间:2021.05
摄影团队:冷風。
夏洋 AGH 年代元禾创始人
刘露 AGH 年代元禾设计总监
AGH 艺术设计秉承“设计即服务”的理念,在与项目相关方的互动中,强调服务意识,高度重视对设计过程的把控以及对成果的控制能力,用高效的执行能力及严谨的态度为用户提供服务。
空间以人为本。好的设计致力于满足用户的经营需求,为用户创造良好的商业价值。
曾为龙湖、金科、金地、中粮、万科、华侨城、世茂、融创、保利、科华等一流品牌企业提供专业空间设计服务,业务范畴从地产样板房、营销中心、会所等传统优势项目到架空层等新兴项目,并拓展到精品酒店、办公空间、艺术展厅等高端体验空间。
近期作品
△科华江山和鸣
兰州中车共享城
△深圳·九州办公空间
客服
消息
收藏
下载
最近





















































