查看完整案例


收藏

下载
【项目名称】:
南昌土耳其轰趴馆
【项目位置】:中国·江西 南昌
【设计公司】:工墨设计
【主创设计】:黄灿
【参与设计】:汪骏、张禹、黄雅芬、郑尧秀
【建筑面积】:180㎡+
【完成年份】:2018年11月
【摄影版权】:杨欣丹
【主要材料】:墙面树脂漆、水磨石、水泥、钢丝网等
【创意阐述】
本案是由两间 Loft 改造而来的。除了满足传统轰趴的聚会和娱乐的基本诉求外,更将这里打造成一个充满异域艺术气息的多彩空间,尝试成为一个跨界的社交综合体,这么优秀的项目和本案业主的个人审美情趣息息相关,他是一位热爱生活、喜欢旅行的建筑师,希望把旅途中的美好片段和令人惊叹的建筑艺术风格都容纳在这个美妙的空间里,这也成为本案设计灵感的原点。
本案是这个系列产品的第一站,设计师选择了烂漫土耳其作为设计主题,色彩丰富、个性活跃且时尚的“孟菲斯风格”成为了设计的首选。
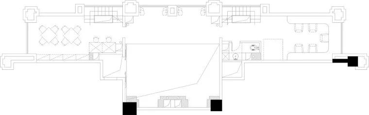
【设计图纸】
【空间简述】
大厅中央是弧形的舞台,舞台的两边对称的吊着地中海风格的镂空仿铜灯,夜幕降临后斑驳的灯光在墙面摇曳。大厅挑空部分由两个弧形的吊顶组成,仿佛圣索菲亚大教堂的穹顶。
大厅的左右两侧是简化的弧形拱门,以及由马赛克包裹的圆柱。
穿过两侧的拱门进入的分别是KTV和体感游戏区,且分别有两个转角楼梯通往二楼的电竞室和桌游室。
转角的楼梯间的设计灵感来源于地中海区域的著名建筑 La Muralla Roja | 红墙 ,强烈对比的红蓝色块,跳跃的颜色和简约的线条勾勒出空间灵动时尚的氛围。
靠窗部分是用钢丝网水泥塑性的隔层,起到连接桌游区和电竞区的作用,同时是一个可以供多人游戏、活动和休息的区域,也是本案设计的亮点之一,其灵感来源于土耳其 | 棉花堡 Hierapolis 的石灰岩温泉池,“溶洞”内铺陈着充满土耳其异域风情的手工地毯和抱枕,置身其中能感觉时间变慢,仿佛沉浸在棉花堡的温泉里一般。
“轻松感”正是土耳其·轰趴馆期望传递的理念之一。
年轻人的活力和躁动在这里绽放,并溢满整个空间。
时尚复古的装饰手法和异域风情的软装元素在这里交融,简洁的空间形态与对比强烈的大面积色块发生冲突,正是这个空间无限创意的火花。
----------------------------------
:
---------------------------------
客服
消息
收藏
下载
最近






















