查看完整案例


收藏

下载
公司:非静止建筑设计类型:艺术地区:中国
这次我们的参展作品名为“编织丛林”,受启发于手工编织,意在对竹材的内在材料特性进行形态上的探究。竹子吸收大量碳元素,是一种生长速度最快的自然材质。我们通常以材料为起点,尝试理解我们应如何利用和平衡材料特质,再将这种研究运用于形态设计。我们发现竹子有极高的韧性和灵活性,但在经过外力编织后,这种结构在轻质的同时又是刚性的。在“材料驱动设计”的理念下,我们无须迫使材料去做什么,而仅仅需要顺从或模拟材料表现的特性和状态。这件作品挑战了传统的设计和建造手法,呈现一种潜在的路径,一种“极少阻力”的路径。在这种意义上,老套的“人vs自然”的说法不再站得住脚。一种新的哲学由此产生——“自然中的人性”。
This project is entitled “Woven Grove,” and is an exploration of the inherent material behaviors of bamboo and inspired by the craft-based practice of weaving. As bamboo is one of the most rapid growing natural materials and is capable of absorbing vast amounts of carbon in the process of growth, it seemed to us to be a very natural material to begin exploring. We often begin with a material and try to develop an understanding of how we might best leverage the material for its inherent properties and behaviors and allow those studies to drive our design. In this case we found that the bamboo was highly pliable and flexible, however, when these forces are woven together we are able to achieve a highly rigid and lightweight structure. Following the natural behavior of the material as a driver for design, we don’t as much tell the material what to do, but rather allow the form to emerge through behavioral simulations. This work is meant to challenge and question our conventional means of construction and design, suggests that there are potential avenues and processes which take a path of less resistance, in this sense we are suggesting that the outdated trope of “Man vs Nature” is no longer valid in so many ways, and instead seek to promote the idea of “Humanity within Nature.”
©AntiStatics
©Design China
©AntiStatics
©Design China
"形态顺从材料物理特性"这种几何性的设计原则,即是新理念,又是老生常谈的话题了。不同于"先形后材"的传统设计步骤,我们此次的作品始于对自然竹材特质的严谨研究,以决策何种形态的依据。这本质是一种"自下而上"的哲学,但实则与"仿生"的理念相一致,两者都是一种由具象到抽象的方法,两者也都是从无到有、通过生长和演变而最终成型的机制。
This project is an initial step towards the development of a much larger design methodology. Looking forward to ever advancing emerging technologies, the work drives towards a potential for increasing integration between the many spheres of making and design. While the work is created through increasingly advanced technological innovations, it finds its execution within the natural realm of sustainable material and formal characteristics. In this way, the work does not suggest that there is a singular way forward through technology but rather an evolutionary process which is capable of including an ever more diverse array of parameters within its environment.
©AntiStatics
©AntiStatics
©AntiStatics
©Design Chian
©AntiStatics
©Design Chian
©AntiStatics
©AntiStatics
©AntiStatics
先利用自定义的智能算法去生成形态,再用电脑测试区模拟真实物理世界的材料表现特征,最终得到合理的制造步骤和逻辑,这是当代设计的基本套路。Antoni Gaudi说过,真实的自然界是不存在完美直线的,这也就解释了我们的作品虽然由自然特性启发,但也并非一比一复制了自然形态,而是将那些自然属性融入了既定的建筑语言。这种逻辑既简单又复杂,但在当下的设计领域里,我们一定需要依靠计算机算法去解决问题。如今,在设计的最后一步即实际制造组装这一环节已经不再需要传统的施工图纸或模型作为参考了;组装的步骤早已在设计环节,由算法植入材料本身,这使得建造者拿到材料和各部分零件的时候,组装的逻辑已经可以显而易见地呈现出来,而这种过程也是极为精确的。
Utilizing customized artificial intelligence algorithms as a means of generating form, simulating behavior and creating fabrication logics the work suggests a new model for contemporary design. Antoni Gaudi declared that nature does not create straight lines, the formal behavior of this work is inspired from nature but not taken, co-opting the principles and ideas into an architectural language. To achieve these forms complex yet simple rule sets are created and fed through artificially intelligent algorithms. Lastly, the final fabrication is completed through a process in which the assembly logics are embedded within the material itself rather than requiring additional referential assembly and construction drawings.
▼项目模型
©AntiStatics
▼项目效果图
©AntiStatics
▼项目效果图
©AntiStatics
▼项目效果图
©AntiStatics
©AntiStatics
©AntiStatics
这个作品是为了完成更大尺度有机设计的一次方法论上的尝试。目前,诸多技术层出不穷、代代更新,助力于设计过程和筑造过程的整合。当一件作品的主要创造性价值来源于技术时,它的完成过程一定是在自然范畴的可持续材料与人为赋予的形式特征的融合内的。从这个角度讲,一件作品并非仅由技术向前推进,而是在在多维度的参量交互下实现的演变。
Both foreign and familiar, the geometric principles of the materials behavior are leveraged to find a formal strategy in sync with inherent physical properties. This work proposes a new approach to how structural elements are created, beginning with rigorous study of the natural bamboo as the primary driver for formal determination as opposed to conventional processes which define a design space then seek to force materials to match that form. Across the scales of the work biomimetic principles define the design approach through a bottom up generative propagation.
©Design China
©Design China
©Design China
©Design China
▼项目细节
▼项目细节
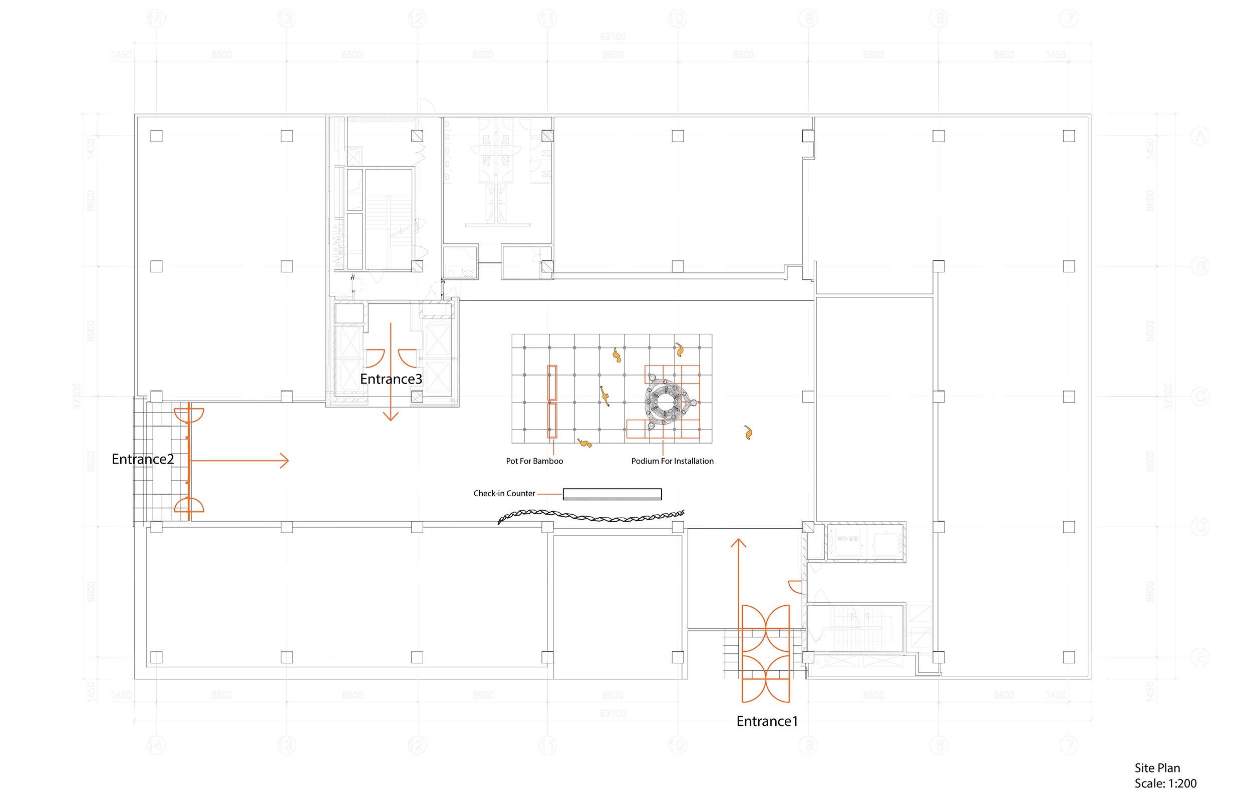
▼项目平面图
▼项目立面剖面图
▼项目总平
主创建筑师: Martin Miller(美)、郑默
主要设计团队: Yoyo 李越垚, ZhongXin 钟心,Amber 朱宇珩,Theodorius E. D. Santoso (印尼) ,Christopher Beckett (英), Yasser Hafizs (印尼), Annie Liu 刘宣灼,Arthur Yang杨轩
项目详细地址: 瑜舍酒店大堂,三里屯太古里北区,北京
项目完成年份: 2019年9月
建筑面积(平方米): 6.8米X 3.5米X 3.5米
摄影师:非静止建筑+设计中国
其他参与者:项目组织者:设计中国北京+瑜舍
视频制作:Martin Miller, Theodorius E. D. Santoso
材料供应商:寄予竹材Seamboo
Lead Architects: (in ‘first name last name’ order)Martin Miller, Mo Zheng
Team: Yoyo Li, Zhong Xin, Luke Theodorius Erick DWI, Amber Zhu, Christopher Beckett, Yasser Hafizs, Annie Liu, Arthur Yang
Project location: The Opposite House, Taikoo Li, Beijing
Completion Year:2019.09
Gross Built Area (square meters): 6.8mx3.5mx3.5m
Photo credits:(in ‘first name last name’ order)AntiStatics Architecture, Design China
Other participants(eg. collaborators, clients, consultants, etc):Organizer: Design China Beijing, Opposite HouseVideos (youtube or vimeo links, if any):Video credits:Martin Miller,Theodorius E. D. Santoso
Brands / Products
List of materials and brands (at least 3) used in your project.
(e.g: Saint Gobain - Dual lacquered laminated glass ’PLANILAQUE STADIP- in that order).
Material Supplier: Bamboo bySeamboo
客服
消息
收藏
下载
最近






























