查看完整案例

收藏

下载
建筑与自然交织、室内与室外、光影与空间交织的乡村会议空间……
The project is a countryside conference center where architecture and nature, indoors and outdoors, light and space are interwoven.
▼建筑南立面,South facade © Peter Dixie(英)/ 洛唐建筑摄影
项目位于昆山锦溪计家墩村,曾经为村委办公大楼,后经改造作为“村民”的公共活动空间。承载、餐饮、展示与接待功能。一楼为展示、接待等功能、二楼则作为餐厅在使用。如今因为功能使用调整,场所将重新进行改造与更新。建筑师接到任务时,使用方要求建筑上不要做太大的拆改,希望能够在满足所需功能及美学的前提下最大化利用原有材质及墙体。
Located in Jijiadun Village, Jinxi Town, Kunshan, the site used to be the office building of the village committee, and was later transformed into a public activity space for local villagers. The first floor used to be catering and reception space and the second floor served as a restaurant. For functional adjustment, the building again needed to be transformed and upgraded. The client hoped to limit demolition and maximize the reuse of materials and walls while achieving functional and aesthetic upgrade.
▼项目区位轴测图,Site location (axonometric diagram) © y.ad studio
在勘查场地后建筑师对于原有建筑多处既内且外、既彼又此及所营造的室内与室外交织、建筑与自然交织的空间体验印象深刻。决定在建筑外立面改造上尽可能保留原有建筑形式,以一种微介入和局部更新的方式进行改造,同时将重心围绕原有多处既内且外的景观中庭空间来展开。
▼改造前,Before transformation © y.ad studio
▼改造策略轴测演示图,Transformation strategy (axonometric diagram) © y.ad studio
During site investigation, the architects were impressed by the harmonious fusion between indoor and outdoor spaces, architecture and nature. Consequently, the team decided to retain the original form as much as possible for facade renovation through an approach of micro intervention and partial renewal, while focusing on the existing atrium space that blurs the boundaries between indoors and outdoors.
▼改造后建筑南立面,South facade after transformation © Peter Dixie(英)/洛唐建筑摄影
▼南立面局部,South facade partial view © Peter Dixie(英)/ 洛唐建筑摄影
01. 形式追随功能
Form follows function
经过梳理后建筑师将空间重新分配,以便满足使用方所需的各类会议及使用要求。
首先重新定义入口,原建筑所营造的房子、墙和庭院绵延交错的布局。让建筑没有内外界限,可以从任何一个方向进入的同时但也弱化了主入口的机能。入口处通过院墙的开口营造的院落空间,因为过于曲折及尺寸过小,则没有明显的主入口标识性。而此时建筑功能改变为会议功能使用时,则需要一个清晰而具有引导性的进入方式。所以建筑师拆除了原南面众多具有趣味及曲折的院墙及开口,在封堵了局部廊道的同时扩宽了进入主体建筑的道路空间,原水池的廊桥也做了扩宽处理,以此来凸显主要入口的辨识性。
After careful analysis, the architects reorganized the space so as to meet the client’s various functional needs for conferences and other events.
The first step was to redefine the entrance. The original interweaving layout of building, walls and courtyard eliminated the boundaries between indoor and outdoor spaces, so that the building could be entered from any direction. However, this weakened the presence of the main entrance. The original main entrance was a semi-enclosed courtyard space, which was winding and narrow, lacking visual identity. As the architecture was planned to be repurposed for conference use, it needs a clear and guided entrance. To that end, the architects removed the many enchanting courtyard walls and openings on the south side, widened the way into the main building, and blocked partial corridors. The existing bridge over the pool was also widened, so as to highlight the main entrance.
▼改造后南主入口,South main entrance after transformation © Peter Dixie(英)/ 洛唐建筑摄影
▼改造后东立面,East facade after transformation © Peter Dixie(英)/ 洛唐建筑摄影
其次将空间重新进行了分配。在保留原二楼餐厅的同时,将大小不一,需求不同的会议空间重新做了搭配与布局,以便能满足不同会议需求使用。同时也结合庭院空间将茶水、咖啡、休憩、办公等空间进行融合。北侧原作为半户外廊道使用的空间则被收纳进室内,以此来满足作为大会议及多功能活动空间的使用机能。
Secondly, the space was redistributed. On the second floor, the original restaurant is preserved, and conference rooms of various sizes are reconfigured to cater to different needs. Meanwhile, the courtyard is integrated with space for tea, coffee, resting, and work. On the north side, the original semi-outdoor corridor is incorporated into the indoors to form a large multifunctional conference space.
▼功能分布轴测图,Functional axonometric diagram © y.ad studio
▼1F咖啡休闲空间,Coffee & leisure area on 1F © Peter Dixie(英)/ 洛唐建筑摄影
▼座位区,Seating area © Peter Dixie(英)/ 洛唐建筑摄影
02. 会议的多种形式
Diversified conference modes
作为在乡村中的会议活动空间,建筑师希望打破很多既定的会议使用模式,希望通过不同的空间形式或使用方式来营造一种比较有趣、随性、舒适及放松的会议空间氛围。
For this village-based conference space, the architects wanted to break some established patterns of conferences and to create an interesting, comfortable and relaxing atmosphere through different forms of space and usage.
▼会议模式轴侧分析图,Conference modes (axonometric diagram) © y.ad studio
▼多功能室使用演示图,Multifunctional room diagram © y.ad studio
▼多功能会议空间,Multifunctional conference room © Peter Dixie(英)/ 洛唐建筑摄影
▼多功能会议空间,Multifunctional conference room © 严旸
▼空间细节,Interior detailed view © Peter Dixie(英)/ 洛唐建筑摄影
▼2F大会议室 ,Large meeting room on 2F © Peter Dixie(英)/ 洛唐建筑摄影
▼2F小会议室,Small meeting room on 2F © Peter Dixie(英)/ 洛唐建筑摄影
03. 动线的重新梳理
Reorganization of circulation routes
原建筑在二层的两处屋顶平台与空中连廊之间形成了室内外的游走环线。该环线同时连通了室外的一系列天井和二层室内平台,本来是希望制造一种迷宫似的漫游体验。但因为原一楼展示大厅变更多功能会议活动室环线被打断,同时置于原展示厅区域的空中廊道与上下垂直楼梯被拆除。而原来二楼要通过室外露台再串联室内的动线也变的有点不便捷,所以建筑师重新规划了空间动线。重新在中庭处结合景观新增了垂直楼梯,其余上下动线仍然保留。二楼原来需要穿行户外露台进入室内的动线,则通过开窗架梯的形式让其直接进入二层室内。主入口则在进入前厅后分成三个方向。往前进入多功能会议活动室、往左通过景观中庭进入办公室区域或二楼的会议室空间,往右则进入咖啡厅和二楼餐厅区域。在制造主动线的同时仍然保留原来空间的游走体验。
▼原始动线分析图,Original circulation routes diagram © y.ad studio
Originally, there was an indoor-outdoor circulation loop connecting the two roof platforms on 2F and the suspended corridor. It also linked a series of outdoor atriums and the indoor terraces on the second floor, which created a maze-like experience. However, the loop was interrupted when the former exhibition hall was transformed into a multifunctional conference room, and the suspended corridor and vertical staircase in the hall were subsequently removed. The architects reorganized the circulation routes because it became inconvenient to connect the second floor to the indoor space through the outdoor terrace. And a new vertical staircase compatible with the landscape is added in the atrium, while the rest of the vertical circulation routes remain unchanged. Originally leading to the interior through an outdoor terrace, the previous circulation route on 2F is made connected to the indoor space directly by opening windows and adding a staircase. The main entrance leads to functional areas in three directions: forward into the multi-functional conference room, left into the office area or the conference rooms on 2F through the atrium, and right into the café and restaurant area on 2F. The architects created a new main circulation route while also maintaining the walking experience of the original space.
▼1F中庭新增楼梯
Newly added staircase in 1F atrium © 严旸
▼2F阳光中庭空间
Sunshine-filled atrium space on 2F © Peter Dixie(英)/ 洛唐建筑摄影
▼2F半户外廊道楼梯空间
Semi-open corridor & stairs on 2F © Peter Dixie(英)/ 洛唐建筑摄影
▼2F半户外廊道楼梯空间,Semi-open corridor & stairs on 2F © Peter Dixie(英)/ 洛唐建筑摄影
04. 灰空间的重塑
Reshaping of transitional space
原建筑空间多个既内且外走道及庭院空间,在经过分析后将其分别塑造成不同观感与功能的灰空间,在最大限度保留原有状态的同时让其更自然的形成过度及融合。
Internal, external walkways and courtyard spaces in the original architectural space are converted into transitional spaces with varying visual effects and functions. The architects retained the original state of those spaces to the maximum extent, whilst enabling them to shift and integrate more naturally.
▼植物采光庭,Plants-featured daylighting atrium © Peter Dixie(英)/ 洛唐建筑摄影
室内外与自然交织 | Interweaving of interior and outdoors
室内与室外交织、建筑与自然交织。建筑师最大限度的保留了原来交织在建筑中的呼吸空间及自然植物,用既隔绝又交融的方式通过制造框景与互动的方式进行并置。
The indoor and outdoor spaces are interwoven, in the same manner the architecture blends with nature. The architects have preserved the breathing spaces and plants in the original building as much as possible and juxtaposed them in a way that both isolate and intermingle by creating framed views.
▼2F植物采光庭
Plants-featured daylighting atrium on 2F © Peter Dixie(英)/ 洛唐建筑摄影
看与被看的视角 | “Viewing and being viewed”
在功能被重新分配后,建筑师不希望空间被相互隔绝与独立。希望可通过多功能会议室与中庭之间产生更多关联。而且在实际勘查中发现中间的这堵墙厚度超乎异常的厚重,足足有60公分厚。于是建筑师决定通过上下或横向开孔的形式,制造不同视角的取景框,企图让各个空间在结合景观、对景的形式下产生一种“看与被看”的视觉感,同时也希望让空间可以更为流动与交织。
The architects did not want the spaces to be separated from each other after repurposing, but intended to create more connections between the multifunctional conference room and the atrium. During site investigation, the team found that the wall in the middle was quite massive with a thickness of 60cm, and hence decided to carve out vertical and horizontal openings to create frames with different viewing angles, in an attempt to create a visual effect of “viewing and being viewed” in the space by combining landscape and opposite views. In this way, the spaces become more fluid and interconnected.
▼2F横向长取景框,Long horizontal view frame on 2F © 严旸
▼不同视角的框景,Framed view © 严旸
光的空间 | Space awash with daylight
原有采光中庭的空间,建筑师在保留的同时通过设计干预分别赋予了他不同的空间光感及表现形式。
The existing daylighting atrium is preserved and given a different light atmosphere and expressions through design intervention.
▼光影下的多功能会议空间,Multifunctional conference room under light and shadows © 严旸
▼光影下的多功能会议空间
Multifunctional conference room under light and shadows © 严旸
▼光影下的茶歇空间
Break room under light and shadows © 严旸
▼光影下的廊道空间
Corridor under light and shadows © 严旸
05. 制造冲突与新旧并置
Contrast and integration of the old and new
粗糙的水泥柱与老旧的木头原本计划拆除或重新修葺,但是在建造过程中发现有些痕迹也不需要去掩饰与更新,于是便保留了下来。粗狂的混泥土柱子与细腻天花所呈现出的冲突与对比感,旧木柜体与周边新墙体之间的时空对话感。这种原始与细腻、新与旧并置状态下呈现出的冲击与视觉,反而好像更具有一种意想不到的观感、美感与复杂性。
The rough cement columns and old timber were preliminarily planned to be demolished or repaired. Nevertheless, during the construction process, it was discovered that some traces need not to be covered up or updated and hence were kept as before. The contrast between the rough cement columns and the delicate ceiling, along with the dialogue between the old wooden cabinet and the renovated walls, creates a dramatic visual impact, revealing unexpected appeal, aesthetics and complexity.
▼多功能室保留的粗犷水泥柱 © 严旸
Retained rough cement columns in the multifunctional conference room
▼2F餐厅入口老旧的木头,Old timber at the restaurant entrance on 2F © Peter Dixie(英)/ 洛唐建筑摄影
▼1F原始平面图,1F plan before transformation © y.ad studio
▼2F原始平面图,2F plan before transformation © y.ad studio
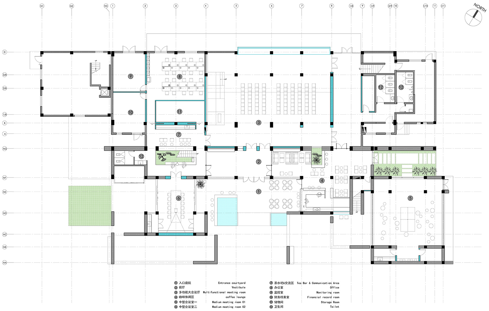
▼1F设计平面图,1F plan after transformation © y.ad studio
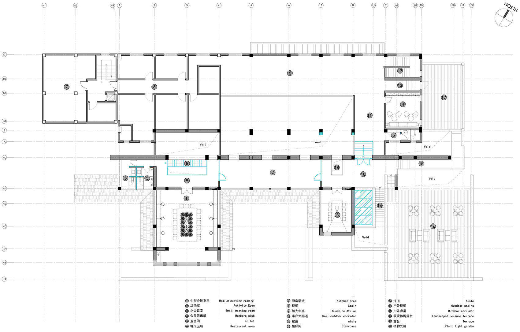
▼2F设计平面图,2F plan after transformation © y.ad studio
▼剖立面图1,Sectional elevation 1 © y.ad studio
▼剖立面图2,Sectional elevation 2 © y.ad studio
项目名称:昆山计家墩村会议中心
设计委托:昆山乡伴计家墩文化发展有限公司
设计单位:y.ad studio | 上海严旸建筑设计工作室
建筑面积:2188平方米
主要材质:水泥砖、水磨石砖、水泥肌理漆、穿孔铝板、橡木木饰面、白色涂料
设计时间:2020/12-2021/01
建造时间:2021/02-2021/05
摄影版权:Peter Dixie(英)/洛唐建筑摄影、严旸
Project name: Jijiadun Village Conference Center, Kunshan
Client: Kunshan Xband Jijiadun Cultural Development Co., Ltd.
Project area: 2,188 square meters
Main materials: cement brick, terrazzo, cement-texture paint, perforated aluminum panel, oak wood veneer, white paint
Design period: December 2020 – January 2021
Construction period: February 2021 – May 2021
Photo copyrights: Peter Dixie / Lotan Architectural Photography, Yan Yang
客服
消息
收藏
下载
最近















































